服务顾问 金盘网-黄小姐
(4 年行业相关经验)
扫码,加微信好友
金盘网APP
金盘网公众号
金盘网小程序
案例分享





—
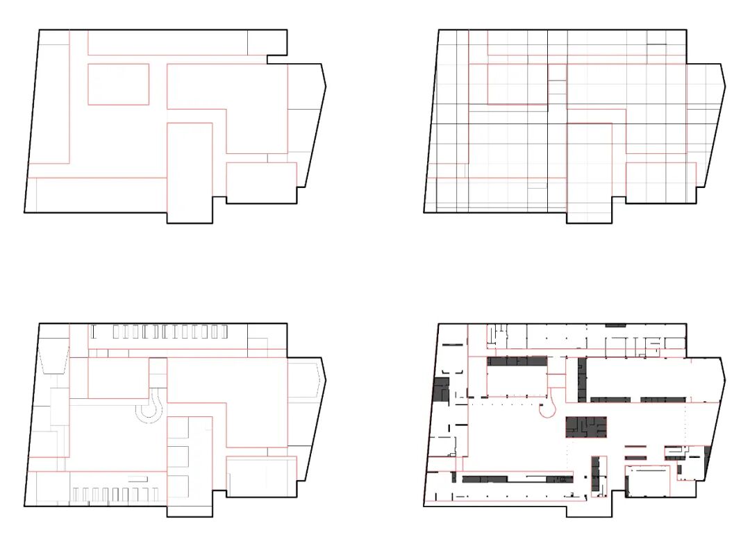
尺度的原型














二
尺度的层级







020-38182178
微信:kinpan2019
QQ:1822772365
邮箱:sunxb@kinpan.com
下载APP 随时随地看项目
有问题找我
粤ICP备2022080590号
Copyright © 2008-现在 广州金盘网络科技有限公司,All Rights Reserved