杭州联发·藏珑大境
项目位于浙江杭州良渚文化村旁的良渚新城核心,周边居住氛围浓厚,周边文化资源丰富,文化底蕴深厚。沿项目所在地北面的良渚港(俗称小运河)向西北溯源,六公里开外即是良渚文化遗址,而西南两公里翻过山脉即是良渚博物院所在地——美丽洲森林公园。
- 项目名称:杭州联发·藏珑大境
- 项目地点:浙江省 杭州市良渚大道与良平路交叉口
- 开发商:联发集团
- 销售参考价:¥56160/㎡
- 项目类型:别墅
- 形态:大区
- 市场定位:高端系
- 建成时间:2022年
- 风格:现代
- 主力户型:叠拼 180-210㎡ 4室 2厅 3卫
- 占地面积:220000㎡
- 建筑面积: 218214㎡
- 容积率:1.2
- 装修类别:毛坯
- 发布日期:2022-10-07
- 最近更新:2022-10-12 16:49

▲项目区位
聚焦设计场地,其南北正向呈四边形,两侧临路、两侧临河,毗邻良渚港,隔路相望山水,且周边规划条件竞争大,设计面临诸多难点。基于此,设计剖析用地居住价值,从产品维度呈现规则用地下的低密社区定制。

▲周边景观资源©图片来源于网络
项目所处场地双面环河,山水情缘近在咫尺,历千年而未改,设计对山水田园的寄情与向往也应运而生。团队力求打造户户独门独院的园林天地,将人居理想浓缩在层次丰富的院落生活之中,结合更具产品力的创新型产品,以塑造更具价值品质、竞争能力的低密住区。

▲园林式生活意象©图片来源于网络

为与周边同质化的高层社区相区别,业主希望打造一个符合容积率1.2、密度30%、限高15m的低密大盘,以符合城市经济结构的优化进程,满足类墅产品潜在客群需求,在苛刻条件下依然实现户户有院。团队分别考虑了纯叠院、洋房+合院、洋房+叠拼+合院以及叠拼+合院的组合,最终确定了“洋房最优化、叠院别墅化、合院庭院最大化”的产品搭配,并根据产品进行分类布局,让合院与叠院各自独立形成完整的组团空间。

▲产品搭配方案比较
在确定场地组团布局的组构形式后,团队根据江南传统院落文化中的理念,首先确立主要景观轴线作为第一层级,形成大区中轴对称的格局,每个组团内的中轴设置第二层的景观节点,最终以轴对称的布局形成了由外及内、由大及小、层层推进归家景观线路,提供移步异景的生活美感,以独有的山水意境容纳一方世界,让设计依托周边丰富的历史文化底蕴,力求融山水于空间、化诗意于有形。
▲住区布局生成


▲与自然紧密交织的社区氛围©CreatAR

▲舒适有序的景观式步道©CreatAR

在“洋房+叠院+合院”的组合中,设计对叠院进行了进一步的研发提升,使叠院不是产品中简单的过渡,而是做到充分满足业主低密高效的开发诉求与使用者的类墅生活诉求,并在传统叠院产品面对住宅环境私密、中叠夹心无法高效利用的痛点问题上,采用微创新手法,令叠院的庭院兼顾美感提升与生活诉求。

▲传统叠加产品
▲创新叠院产品

设计通过层层有退台的形式,让每一层都有空中露台式的院落,并为每一户都提供落地的入户地面庭院,退台与地面庭院共存的落位构成产品的垂直庭院系统,原本平面化的庭院感受变为立体式的院落生活,让叠院的每一户不仅做到家家有院,更实现有天有地。

▲有天有地的垂直式庭院层层落位

▲每户尽享的落地庭院

结合独门独院的生活理念诉求,产品还为每一户提供了一院一户、一梯一户的全独立入户系统,不仅为每一户配备私家地面入户花园,更针对在传统叠院产品中缺少私属体验感的中上叠开辟独立电梯系统,实现入户全体验均享独梯独院的感受。

▲一梯、一户、一庭院

▲地面私享入户花园©CreatAR


叠院产品是项目的主力户型之一,针对传统叠院产品上下两层整跃,导致大面积户型与潜在客群诉求不匹配的情况,项目采用乐高式错跃叠加的方式,通过微创新实现控制总价,避免下叠户型面积过大,降低底层销售难度,利好产品在市场上的竞争力。

▲叠院叠加方式对比

通过乐高式错跃叠加的方式,产品充分保证了所有户型都拥有合适的南向面宽,在使用尺度和采光格局的方面提升使用品质,让每一叠都拥有合适的南向开间数,均衡提升产品溢价,让居住者充分体验舒适公区与适宜的个人私属空间。中叠C户型就在保持约144平方米面积段的前提下,享有双层4间南向开间与一层内就有11.5米南向面宽的舒适生活。



▲突破面积的奢阔体验

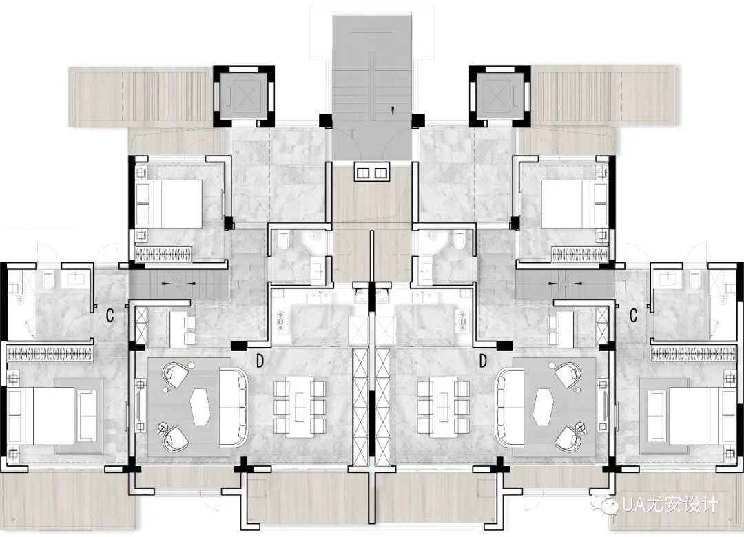
▲一层平面图(非最终输出结果)

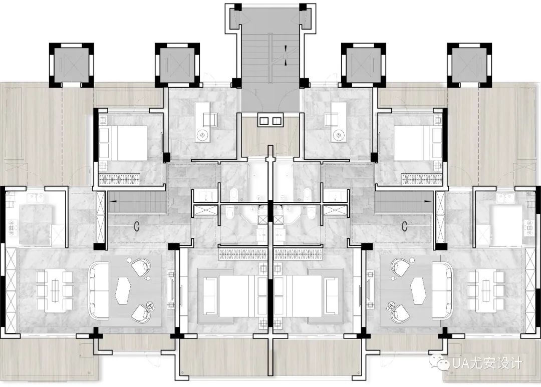
▲二层平面图(非最终输出结果)

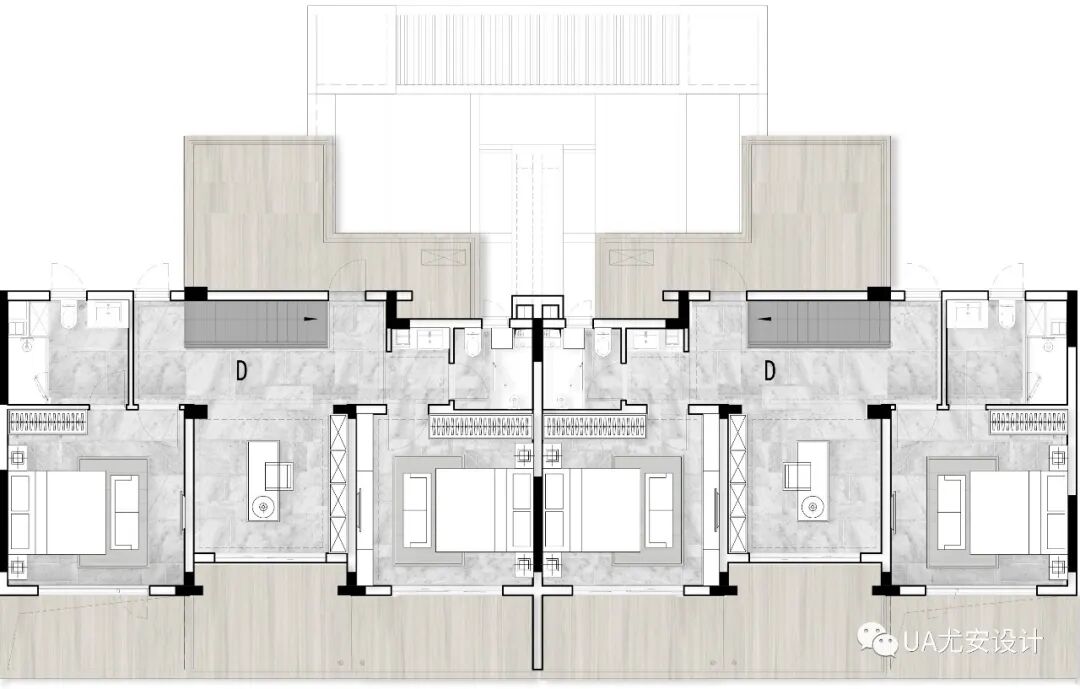
▲三层平面图(非最终输出结果)

▲四层平面图(非最终输出结果)

▲五层平面图(非最终输出结果)

微创新的乐高式叠加产品,也为建筑造型设计、结构设计及落地性上提出了更高的要求,团队围绕产品创新亮点,对建筑设计进行系统性优化,使建筑在设计上符合富有文化底蕴的社区板块气质,在推进中兼容降本增效与可落地性。

项目设计风格融入良渚当地质朴悠久的历史文化脉络之中,由于叠院产品在错跃形式上进行的创新,相较于传统产品,以乐高式叠院产品为出发点的造型,面临更多因露台突出等先期因素造成的视觉问题。因此团队对立面整体造型进行了一定整理,利用构建框线轮廓的手法,将北立面复杂的露台与入户电梯系统纳于其中,令立面不显凌乱,更添优雅。

▲叠院北立面图
立面材质上也以浅色的仿石涂料为主,配合铝板、石材挂板、塑木板、金属漆等材料,与石材浮雕、陶构件、铝板装饰等,令造型呈现典雅的氛围。

▲立面材质分析

产品多样化的退台,也为结构提出了更具难度的要求。团队通过定制化的结构设计手法,保证房间内部顶板无多余梁凸出,室内空间完整,降低造价,巧妙的满足结构与功能的双重要求。虽然退台较多,但叠院的楼梯间被推敲为上下直通的形式,得以以最经济的形式,满足叠院中四种各不相同的多样化产品。

▲管井与电梯井的连通设置
传统户型产品多使用墙体结构。为了能灵活调整上下叠户型,使房间结构不冲突,设计将内部横墙改成柱结构,外围仍由剪力墙围合。

▲墙体柱结构设置

在方案深化阶段,设计团队与业主共同针对可实现性与经济性进行了一定推敲。立面调整为线条龙骨幕墙+墙面仿石漆,团队以细节推敲令立面达到幕墙化的效果;同时对线脚进行优化,令细部更显精致品质。

▲立面图纸深化处理

▲线脚图纸深化处理
巡场反馈阶段,设计团队进一步根据现场情况进行调整,对落地材质与细部还原不断推敲与优化,最终推动住宅的高品质落地。

▲优化合院底部分缝质感

▲优化叠院电梯外墙线脚



金盘网APP
金盘网公众号
金盘网小程序


