上海金融街美兰金悦府
在与家人相处时,如果需要一隅私密独处空间,那么书房最合适不过。具有纪念意义的游戏手柄,超长带鱼屏游戏电脑,在灰白色背景下更凸显科技感。疲惫时来此给予精神片刻喘息,以便休整身心重拾爱生活的自己。
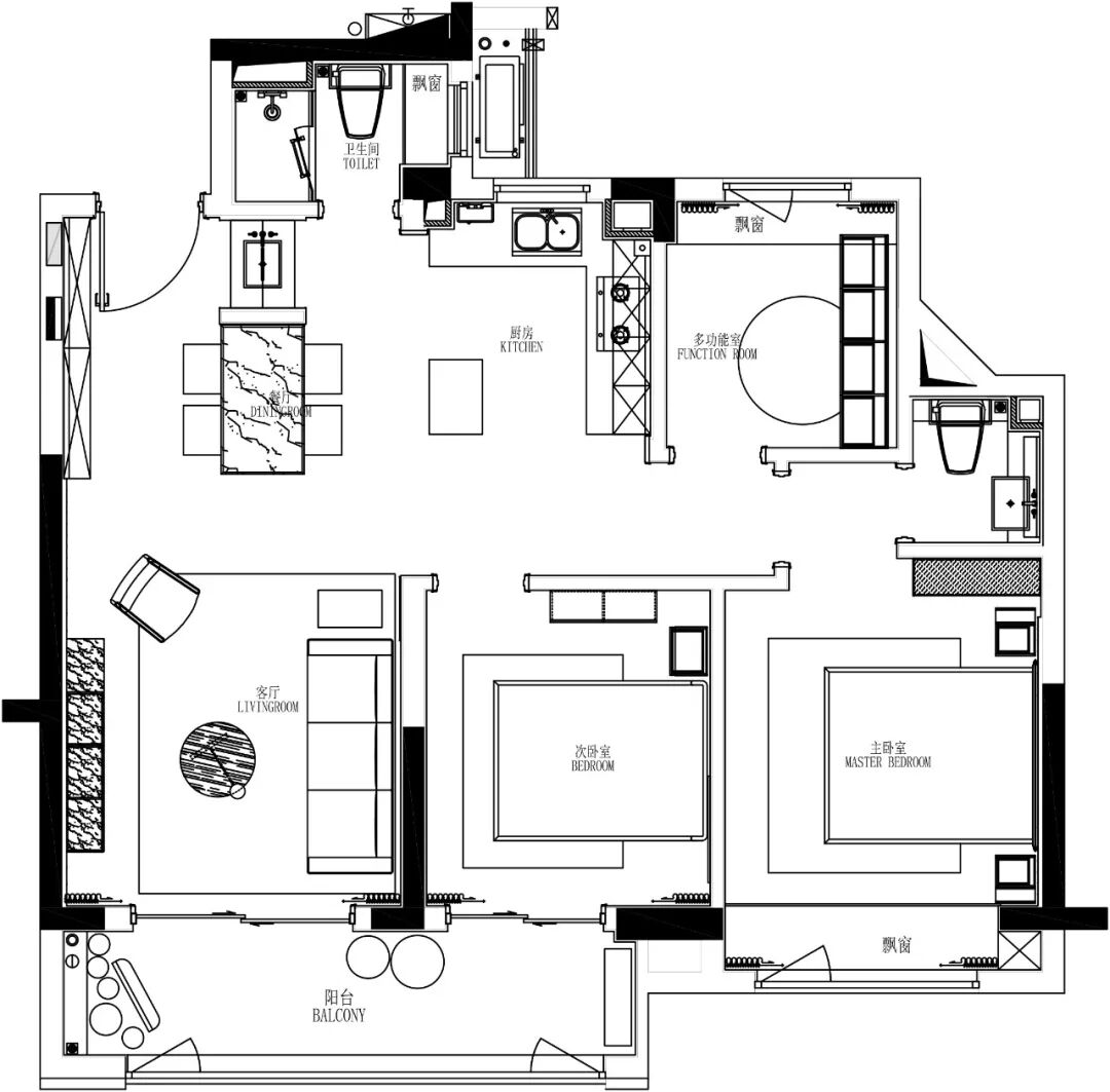
- 项目名称:上海金融街美兰金悦府
- 项目地点:上海市 上海市宝山潘泾路1398弄2支弄
- 开发商:金融街
- 销售参考价:¥42733/㎡
- 项目类型:住宅
- 形态:示范区
- 市场定位:改善系
- 建成时间:2021年
- 风格:现代
- 主力户型:高层 平层 50㎡以下 3室 2厅 2卫
- 占地面积:35675㎡
- 建筑面积: 100000㎡
- 容积率:2
- 装修类别:精装修
- 发布日期:2022-08-20
- 最近更新:2023-09-21 11:12






纯净之蓝,自然之色。受波兰先锋派艺术家爱德华·克拉辛斯基的启发,设计师将蓝色注入家的每一个角落,在空间往来穿梭,描绘出“快时代”里的精致“慢生活”。













金盘网APP
金盘网公众号
金盘网小程序



