福州融创未来海
一线江景的自然资源优势、未来海以奢阔的空间尺度,开阔的观景视野,通过极简主义的创新演绎,呈现通透、现代、雅致的建筑气质,营造丰富多彩的多功能生活空间。
服务范围:地产开发-住宅
销售参考价: 15695 元/平方米闽桂琼地区住宅
入围项目
- 项目名称:福州融创未来海
- 项目地点:福建省 福州市 闽侯县上街镇新洲村地...
- 开发商:融创集团
- 销售参考价:¥15695/㎡
- 项目类型:住宅
- 形态:大区
- 市场定位:刚改系
- 建成时间:2021年
- 风格:现代
- 主力户型:高层 平层 120-144㎡ 3室 2厅 2卫
- 占地面积:26164.05㎡
- 建筑面积: 136000㎡
- 容积率:3.8
- 发布日期:2022-11-14
- 最近更新:2022-11-14 16:19
融创 • 未来海
FUTURE SEA • SUNAC
墙的另一边,是一望无际的“海”。让人想起肉眼无法看到的世界,诉说着人们内心的事物。这也是我理想中的建筑形态……
——安藤忠雄
一线江景的自然资源优势、未来海以奢阔的空间尺度,开阔的观景视野,通过极简主义的创新演绎,呈现通透、现代、雅致的建筑气质,营造丰富多彩的多功能生活空间。
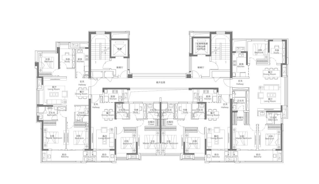
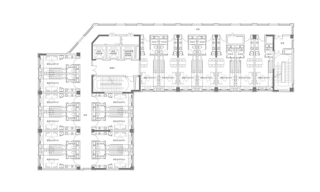
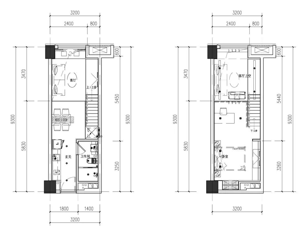
#01 江景与建筑 ©融创东南区域 项目位于福州高新区,海西园区中部偏北位置,东侧为宝贵的乌龙江江景资源,周边交通便捷,拥有极佳的景观视野。 福州城市空间结构定位为“一区两翼、双轴多极”,中心城区按照“东进南下、沿江向海”的城市发展方向发展,早在1991年就获批国家级新区的福州高新区,是乌龙江岸上最璀璨的明珠,未来海所处的海西高新技术产业园更是汇集福州未来城市发展活力。 规划根据周边条件地块内南侧沿街建筑呈南北向布置,保证城市界面的通透性,并形成一定序列感。适当增加空间开敞度,保证城市设计中的主要景观轴线及视觉通廊贯通。临江建筑高低错落,形成“滨水低腹地高,错落有致”的形态, 与周围建筑相组合,形成一道完美的城市天际线。 #02 多功能混合社区 项目规划5栋高层住宅、2栋商务办公SOHO、1栋2层商业沿西侧道路沿街布置,通过住宅、公寓办公、商业多种业态的分区组合,各功能区既相对独立,避免交叉干扰,又紧密连接,打造出生活便利、环境舒适、富有活力的混合社区。 地块内部结合周边日照情况及景观朝向,建筑整体沿适当偏转,呈南偏东朝向布置。住宅分布在小区的南侧,并围合出独立的中心大花园,保证相对独立性与均好性;沿街建筑界面完整,有效形成序列感,强调建筑群整体气势,又提升了城市整体景观价值。 #03 中央大花园 小区由高层住宅适当偏转围合式布局,顺应周边城市界面朝向,并利用建筑高层的偏转及错落围合出中庭景观资源,做到户户有景,步移景异,形成既有共享性又有私密性的园中园环境空间。 设计依托中心景观绿地、带状景观绿地、形成片区生活景观环;商业空间、小区步道、小区绿地、中心花园共同构成丰富的立体公共空间体系。 #04 现代极简立面 建筑采用现代风格,强调形体拉平、规整对称、经典的三段式立面、横线条贯通,立足几何美学与精工细作,呈现跟周边建筑和而不同的气质。极具辨识度的“铂金灰”,组合大面积的玻璃窗,形成通透、简洁、优雅的建筑气质,独具国际风尚。 小区整体色彩调整为浅色为主,与周围城市肌理形成良好呼应的同时又增强了小区的整体性。 坡屋顶形式充分展现福州地域特色和建筑文化,是传统与现代手法的融合,框架化的铂金灰线条、立面精致的洞口细节,配合大面积玻璃栏板,均体现出建筑的现代、精致和新锐。 ©融创东南区域 住宅底层架空结合绿化,增加公共休闲活动功能,设计承袭融创“归心社区”营造理念,打造书享、果壳、足迹等归心空间,为业主营造丰富多彩的人文活动交流空间。 设计图纸 △ SOHO北立面 △ 住宅北立面 △ 住宅南立面 △ SOHO住宅平面 △ SOHO标准层平面 △SOHO公寓首层平面 △SOHO公寓夹层平面



























金盘网APP
金盘网公众号
金盘网小程序





