保定新城控股金樾万象示范区
莲池区,得名于莲池书院,浸润百年诗书,流传千篇佳话。项目坐落于保定市莲池区核心区域,周边聚集数所高等院校。示范区的前身是一座一层的造纸厂,红砖砌筑的外立面,建筑保存情况较为良好。
服务范围:地产开发-住宅
销售参考价: 价格待定京津冀地区预售楼盘
入围项目
- 项目名称:保定新城控股金樾万象示范区
- 项目地点:河北省 保定市 北市区金樾万象展示中心
- 开发商:新城控股
- 项目类型:住宅
- 形态:示范区
- 市场定位:改善系
- 建成时间:2021年
- 风格:现代
- 占地面积:53955㎡
- 建筑面积: 213074㎡
- 容积率:2.8
- 发布日期:2022-10-25
- 最近更新:2022-11-29 14:32
“一座建筑,承载着历史与现代的交互碰撞”

前言
设计师希望通过对老造纸厂的改造,赋予空间新的生命,使之从废弃状态重新复活,以新的人文面貌,为城市提供一处具有品味和调性的精致生活场所。

背景原貌

“西巡回诸郡城边,便幸莲池读爱莲。
不必有花识君子,所欣此地育英才。”
莲池区,得名于莲池书院,浸润百年诗书,流传千篇佳话。项目坐落于保定市莲池区核心区域,周边聚集数所高等院校。

示范区的前身是一座一层的造纸厂,红砖砌筑的外立面,建筑保存情况较为良好。

场
城市更新最大的难点是在有限建设预算的前提下,重新赋予老建筑最适宜的新气质。从莲池独特的学院文化出发,结合旧工厂现状、引入“工业历史”,传承与激活新时代的“莲池书院”,是本次设计的关键词。

建筑的前场被景墙限定在极有限的空间内,设计师决定将建筑景观一体化处理,以统一的语言使建筑最大程度地融合于场地之中。



材
红砖带来的文化之感和温暖属性,使之成为历久弥新的经典立面元素。用自带历史感的红砖搭配深灰色铸铁,更能体现出历史的积淀感。既保留红砖铁皮的工业元素,又赋予建筑现代的美学属性。

其中,用砖砌形式的变化来丰富立面层次,即使采用大量单一材质的装饰,同样使得建筑被赋予纯净、肃穆的神圣感和稳固、亲切的安全感,带给人熟悉且震撼的感官感受。设计师反复推敲砖型,大小及颜色,建筑景观室内风格相统一,形成一个协调的文院氛围。(方案最后选定原始红砖尺寸300×150×100mm)

红砖尺寸对比过程 △
技
建筑立面借助陶砖幕墙的形式来实现。墙面上砖石的转角和错叠,是这栋建筑的显著特点。不断重复的单元结构的应用使得结构几何外形表现极具张力。而立面上不同形式排砖的转变,打破了墙面单一的整体感,呈现了凹凸转折的建筑肌理,制造视觉断点,丰富立面造型。


艺
红砖精细的砌法,以金属收边保证效果的精致。金属收边下方考虑泛光设计,柔美的暖黄色灯光,照在红砖上,在夜间形成另一种独特的细腻质感。少量金属的点缀成为场所中中以少胜多的建筑语汇,淋漓尽致地展现工业感的挺拔。

效果图 △
实景图 △
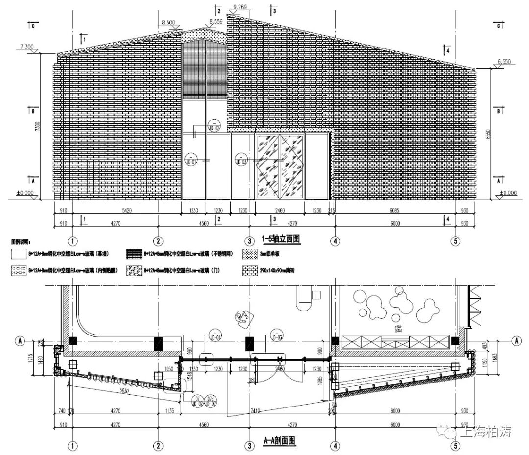
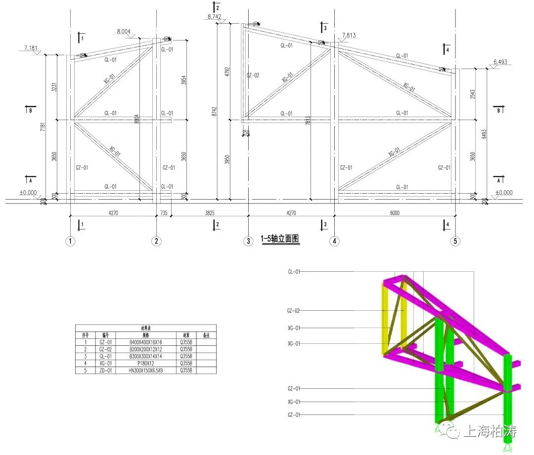
—— 技术图纸 ——



后记
设计突出整体性的空间形象塑造,在无序的现状中,通过将建筑景观化的手法重新塑造示范区的品格。既通过整体景观概念梳理出一条主线及脉络,又通过赋予售楼处一个鲜明且简洁的形象,将建筑个体重新回归到环境整体中去。

红砖艺术与工业时代的融合,回应千年书院文脉的绵延不息,展望如今太平盛世的繁华与美好。置身于此,仿佛是与时间的交汇点打了个照面,感受城市喧嚣中的一方浑厚书香与静谧。

金盘网APP
金盘网公众号
金盘网小程序





