福州龙湖云峰原著
无论文明的力量随着现实环境的变迁如何此消彼长,未来的方向终将导向于更高的生活理想,人们内心想要保留的,依然是城市里那些精致而温文尔雅的都市印记。 在本案中,设计师站在时代语境下,基于场域原生的生活势态,以栖心的理想居所为思想聚焦,在世界的繁杂...
服务范围:地产开发-住宅
销售参考价: 25000 元/平方米华南地区售楼空间
入围项目
- 项目名称:福州龙湖云峰原著
- 项目地点:福建省 福州市 晋安区晋安区五四北杨...
- 开发商:龙湖集团
- 销售参考价:¥25000/㎡
- 项目类型:住宅
- 形态:示范区
- 市场定位:改善系
- 建成时间:2021年
- 风格:现代
- 占地面积:51000㎡
- 建筑面积: 160000㎡
- 容积率:2.1
- 绿化率:35%
- 发布日期:2022-10-31
- 最近更新:2022-12-06 15:06

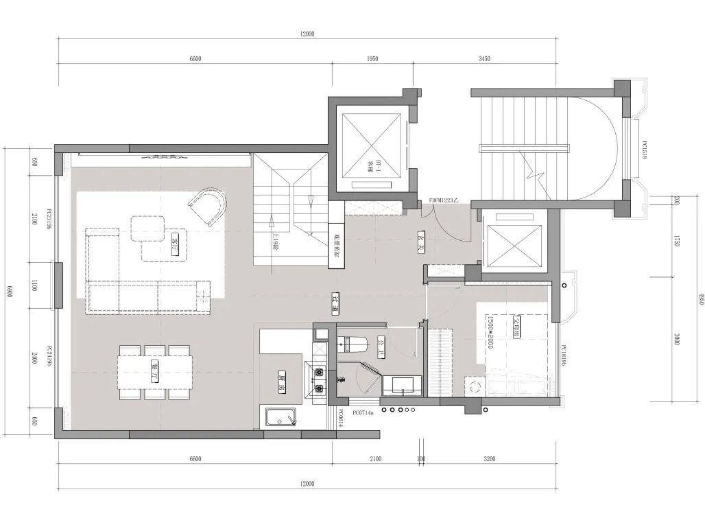
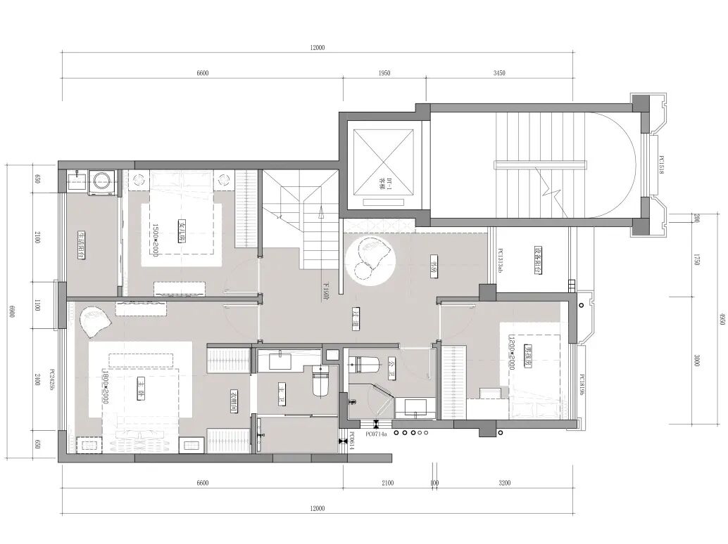
无论文明的力量随着现实环境的变迁如何此消彼长,未来的方向终将导向于更高的生活理想,人们内心想要保留的,依然是城市里那些精致而温文尔雅的都市印记。 在本案中,设计师站在时代语境下,基于场域原生的生活势态,以栖心的理想居所为思想聚焦,在世界的繁杂与内⼼的⾃洽中,寻找⽣活的平衡本质。 #01 生活的尺度 SCALE OF LIFE 横厅集待客、娱乐、休闲于贯穿一体,无缝对接多元生活方式。 在连贯的秩序下,客厅是带着橙白色调的配合带着清新的夏天气息,舒适的配色,精致的摆件,流光溢彩、气质精致的活动空间中,恰到好处的细节美学,更是时时刻刻冲击着新鲜的生活灵感迸发。 大森设计更注重内在的细节考量,现代地毯和大理石瓷砖,让空间呈现出和谐的层次感,用干净的线条和不同的空间体块提供了开放的流动空间,一片由现代气息构建的生活新篇,正在开启。 #02 意境的感官 SENSE OF MOOD 从厨房到餐厅,动线流畅完整,方便居者于其间慢品生活的质感。小射灯、创意的线性灯带,顶部通过不同灯光的组合,将温馨的灯光洒落至空间各个角落中。 #03 空间的摩登 MODERNITY OF SPACE 儿童房的氛围感则是以温馨甜美的视觉营造为主,装饰物丰富的细节和材质肌理,带着东方的浪漫雅致,打造丰盈的细节层次,同时也承载了对世界的好奇,能更好地激活孩子的想象力与生活乐趣的探索。 摩登格调的舒逸主卧,没有过多的修饰,视觉上也暗含着为生活留白的寓意。 柔和的色彩与考究的空间材质,用干净柔和的自然光和点状与条形的人工光渲染烘托,站在这个空间里更能以舒适的感知回应着当代人最向往的状态,陶醉于与空间的私密对话之中,亲近自我,趣味悠长。 卧室的家具在边⻆、不同材质的衔接处,以优美的形态,圆润的曲线,展现对完美主义的追求。材质温润,和谐静谧,稳重不失灵动,复古不失潮流。 东⽅⽓质美学的茶室,让你置身城市喧嚣之中也能感受生活的恬静;呼吸自然,氤氲⼀种令⼈愉悦的淡然的⾃然和艺术⽓息,让简单纯粹的生活方式安放躁动的心。 家不再只是有限的空间,成为了⼀个繁杂的城市生活中逃离的理想居所,独处、思考、容纳家⼈、友人交流,在庭院中环桌⽽坐,吃饭喝喝茶,谈笑风生…… DAS大森设计书写出城市命题下理想居所的答复,将生活体验感推向相融之界,在舍弃与精简之后,我们更关注保存和守护永恒存在的内涵与舒适感,那便是回归内心,从生活方式出发,呼应自然与自我,与生活相处共生。 项 目 信 息 ▲入户通道平面图 ▲茶室平面图 ▲三层平面图 ▲四层平面图





















金盘网APP
金盘网公众号
金盘网小程序





