佛山卓越蔚蓝星宸花园
色彩,是设计的灵魂,它将自然界中的五颜六色提取出来,架构出人类最向往的缤纷世界。居所的色彩是温暖且富有能量的,我们以色彩为出发点,构筑东莞蔚蓝星宸花园样板间,色彩的对话在这里拉开序幕。
服务范围:地产开发-住宅
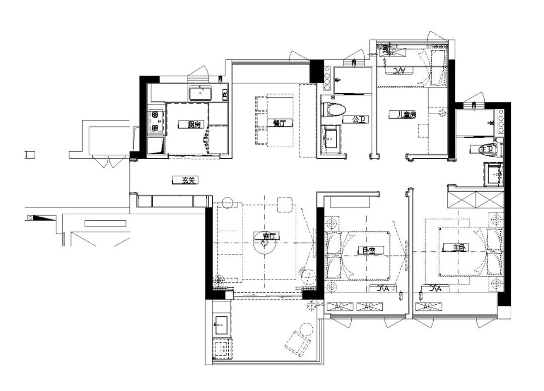
销售参考价: 8800 元/平方米华南地区主力户型空间
入围项目
- 项目名称:佛山卓越蔚蓝星宸花园
- 项目地点:广东省 佛山市 顺德区 顺德区勒流滨...
- 开发商:卓越集团
- 销售参考价:¥8800/㎡
- 项目类型:住宅
- 形态:示范区
- 市场定位:刚需系
- 建成时间:2021年
- 风格:现代
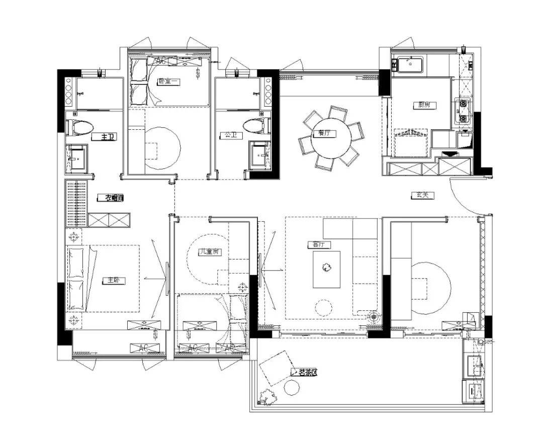
- 主力户型:高层 平层 90-120㎡ 3室 2厅 2卫
- 占地面积:42300㎡
- 建筑面积: 167200㎡
- 容积率:3
- 绿化率:30%
- 发布日期:2022-10-08
- 最近更新:2022-12-07 12:00
色彩,是设计的灵魂,它将自然界中的五颜六色提取出来,架构出人类最向往的缤纷世界。居所的色彩是温暖且富有能量的,我们以色彩为出发点,构筑东莞蔚蓝星宸花园样板间,色彩的对话在这里拉开序幕。
一屋秋色
97㎡
生活是自己的,放在一起觉得舒服才能有家的归属感。

设计师用东方传统美学演绎出当代的灵魂。空间以白色为主,秋色穿插其中。大理石与木饰面自然肌理纹路巧妙融合,构成层次丰富的写意空间。






餐厅是整个空间起承转合,自然连接了大门、厨房、客厅各个功能区域,同时也承载了家庭成员共同相处的大部分时间,营造出浓厚的家庭氛围。







































金盘网APP
金盘网公众号
金盘网小程序


