东莞道滘 · 阳光城翡丽湾样板间
本期项目雄踞道滘城央商政核心,前有西部干道连接万道路,周边配套一应俱全,拥有娱乐、餐饮、超市、银行、学校、医院等各项生活配套设施,项目自身配备大规模商业街,集美食、娱乐、购物等多种功能于一体。 “我们所理解的回归,不是倒回传统的起点,我们思索的东方...
服务范围:地产开发-住宅
销售参考价: 23990 元/平方米华南地区软装空间
入围项目
- 项目名称:东莞道滘 · 阳光城翡丽湾样板间
- 项目地点:广东省 东莞市金牛村二横路1号
- 开发商:阳光城
- 销售参考价:¥23990/㎡
- 项目类型:住宅
- 形态:示范区
- 市场定位:改善系
- 建成时间:2021年
- 风格:现代
-
主力户型:高层 平层 90-120㎡ 3室 2厅 2卫
高层 平层 90-120㎡ 4室 2厅 2卫 - 占地面积:10000㎡
- 建筑面积: 53000㎡
- 容积率:2
- 绿化率:25%
- 发布日期:2022-11-23
- 最近更新:2022-12-08 18:08

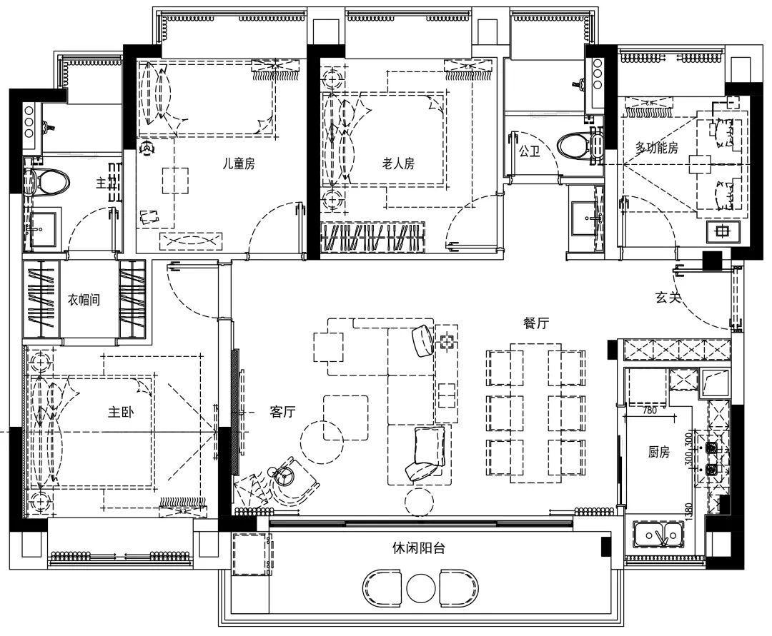
本期项目雄踞道滘城央商政核心,前有西部干道连接万道路,周边配套一应俱全,拥有娱乐、餐饮、超市、银行、学校、医院等各项生活配套设施,项目自身配备大规模商业街,集美食、娱乐、购物等多种功能于一体。 “我们所理解的回归,不是倒回传统的起点,我们思索的东方,也不是一味沿袭古制,而是带着深度认知的文化自觉,以相对艺术化的形式建构空间的国际化与当代性,共话当代美学、时代趋势。”摩登东方,是经过人文情韵和吸收了西方文化洗礼后转变的新式符号。 #01 摩登东方 ArtDeco 115户型我们定位为:三口之家。男主为36岁,中国书法家,喜欢收藏;女主33岁,则为演奏者,经常出国演奏。他们6岁的女儿活泼开朗,喜欢大提琴。男主人因工作原因,更偏爱于东方文化,女主则受出国留学经历影响,更喜欢西方的建筑风格。结合二者的需求,我们将东西方美学融成一个画镜,将东方美学贯入西方设计手法,实现空间的创意表达,打造具有自然气韵的生活空间。 壹 客 厅 客厅通过开放的空间设计与舒适的材料,营造轻松、精致又不失格调的氛围。黑白灰为基础色,点缀了几处“垂杨几处绿烟浓”的“绿烟”色(绿烟是指初春的杨柳泛出的如烟一般的绿色),既保留了绿色的生机又给人以平静的感觉,使空间独具韵味。 客厅与餐厅相连,我们减少视觉上的阻碍,家居饰品皆是简洁干练的造型,整个空间一览无余,极具延伸感。为使整个空间协调统一,主色调均以米白色高级灰为主,点缀一抹绿,品质十足的皮料,柔软的面料与现代感的金属色相碰撞,述说着空间别样的情怀。 贰 餐 厅 "唯有美食与爱不可辜负";餐厅延续了客厅的诗情绿意,精致的餐具错落有致,四方餐桌与餐椅方正排列有序,有层次感的椅背搭配白色大理石台面的餐桌,花瓶与餐布的绿,不多不少,整个用餐空间营造出自然健康舒适的氛围。 叁 主 卧 卧室是理性营造的积极生活所带来的幸福空间。我们仍以一抹绿意为主调,以柔软的布艺柔化空间的感觉,提升空间的舒适度。木地板细腻柔和的光泽感,仿佛是添加了一层柔光滤镜,床头垂挂两只极具艺术感的灯具,更加突显卧室的风情,温暖而舒服的大床,自然在其中悄然演绎,与平静有序的时光一同温存出优雅的韵味。 肆 次 卧 父母的房间我们则更追求功能上的舒适感,为了调和空间氛围,我们在空间中运用了许多“软”性材质及线条、暗纹等元素,通过融汇平和、自然、悠闲的淡雅意境,营造一种永恒的宁静与闲暇。 伍 书 房 书房是展现户主深层底蕴的场所,同时也是运筹帷幄的思考空间。设计上我们追求空间的主体性与实用性,墙面的挂画粘贴的是男主人随笔的工笔画,只为记录转瞬即逝的灵感,简洁干练造型的书桌,能让男主人在此尽情创作。 陆 儿 童 房 幻想的世界里,用一抹粉色来呈现柔和的梦幻童趣。保持这个美好的初衷,构成孩童富饶的精神世界。房间里摆放女孩最喜欢的小提琴与琴谱,用一个符号,晕染数段柔影,交织一片细腻纯粹的精神乐章。 #02 现代浪漫 Modern romance 当时间与光影,演绎成章...... 95户型我们定位也是:三口之家。男主为31岁,摄影师,有自己的工作室,有浓厚的艺术气息;女主28岁,平面模特,喜欢健康的生活态度。他们有个4岁的儿子,活泼开朗,喜欢太空星球。 客 厅 在恬静优雅的慢生活里思考生活的艺术,在舒适简单的空间里感受生活的张力。我们从视觉感官出发,以暖灰色为主色调,用暖黄色金色橘色作为点缀,勾勒出现代优雅的舒适空间。 客厅空间运用大面积留白处理,大理石墙面以及硬装基础的空间线条,让自然之色充盈流通于空间之中,搭配家具饰品及花艺的色彩,还原家的自然本身。 餐 厅 餐厅空间展现朴实不华之美,装饰挂画利落大方,装饰花艺与餐具将家的温馨感点亮,让美好的用餐时光更添一份温度感。 主 卧 主卧质朴的大地色充满着自然气息,你能联想的是古树和沙漠,自然界的多种美好形态被抽象为简朴的室内颜色,虽身处其中,但心却可以行至千里。 次 卧 次卧空间将颜色的饱和度降低一度,更趋于强调空间的温馨格调。高级灰打底,大地色系加以衬托,部分空间简练留白的表现手法在空间反复运用,虚实之间,将生活的纯粹完美呈现。 儿 童 房 儿童房充满童趣童真,契合整体空间的暖黄色床品和各式玩具,让整个简约的风格里加入了一丝俏皮,仿佛走进了梦幻的童话世界。 平面图 ▼ ▲ 115户型 ▲ 95户型




































金盘网APP
金盘网公众号
金盘网小程序




