湖州祥新大秦美学馆
以史为鉴,寻根溯源。祥新·大秦美学馆以秦韵文化为设计灵感,运用极简的设计语言将穿梭千年的盛世场景呈现于人们眼前,通过古与今的碰撞,带人们领略广阔的大秦文化,品味湖州独特的文化韵味。
服务范围:地产开发-住宅
销售参考价: 价格待定- 项目名称:湖州祥新大秦美学馆
- 项目地点:浙江省 湖州市 德清县德清
- 开发商:湖州祥新房地产开发有限公司
- 项目类型:住宅
- 形态:示范区
- 市场定位:改善系
- 建成时间:2020年
- 风格:中式
- 设计面积:800㎡
- 容积率:1.2
- 发布日期:2023-03-31
- 最近更新:2023-03-31 17:48
唯有天下一统,才能开得万世太平。
——《大秦赋》
湖州城建于春秋战国时期,原名菰城;秦一统天下之后,改菰城为乌程,由此开启湖州兴盛的历史。七国战雄、金戈铁马、秦皇称霸,大秦盛世的恢宏景象,于不经意间让人浮想联翩。
以史为鉴,寻根溯源。祥新·大秦美学馆以秦韵文化为设计灵感,运用极简的设计语言将穿梭千年的盛世场景呈现于人们眼前,通过古与今的碰撞,带人们领略广阔的大秦文化,品味湖州独特的文化韵味。


汉字是文化传播和继承的重要载体,是核心。汉字的统一,促进了大一统之下的政治文化事业的发展,对中国的统一具有非常重要和深远的影响。丹书铁卷的雕塑设计就是对秦始皇统一文字的生动诠释。







楼梯转角处的雕塑来自艺术家约瑟夫·沃尔什的作品,充分利用木材极大的可塑性,使其呈现出生命向外生长的状态,在原始生命源与静止状态之间找到了一种平衡,再现了大秦野蛮生长的时代特点。


战国时期的阴阳家邹衍,提出"五德终始"说,他运用五行生克来解释朝代的兴衰。五行中水能克火,秦朝属水,所以秦灭周 ,建立了中国历史上第一个封建集权制的国家。秦朝祟尚水德,百姓称黔首,皇帝与官员的服装均以黑色为主色调。

△ 水德
入户大堂提取秦朝帝王宫阙的经典元素,通过独特的挑空设计和极简线条营造出庄严肃穆、恢宏大气的宫殿气势,漫步其中可以切身感受大秦文化的尊崇礼序。





《长物志》中有载“居山水间者为上”,虽不可能完全追寻古代隐士的脚步“栖岩山谷”,但也力图在当下的时代重现大秦亭台有旷世之怀,斋阁有幽人之至的盛景。接待台背景墙石材选型是空间的亮点,烘托出整体深厚的文化质感。







不难发现,美学馆采用了少见的下沉式布局,楼梯高台搭配阶梯的设计还原皇室宫殿楼梯的宏大神韵,展现出大气凛然的非凡气质;陈列展品皆源自秦汉文化的珍稀文物,秦韵之气皆在此凝聚。





历经千年时光打磨,秦文化的光辉依旧熠熠闪光。从德治到法制,社会制度的不断完善也促进了文化的繁荣,礼序文化反映在空间设计上则是一种强烈的秩序感。



洽谈区用共通的设计语言描绘,提取秦朝文化代表之一的秦律内容进行升华,以书简为主题营造出浓厚的书香氛围。同时也加入了很多其他历史和传统的元素,将现代思维以一种舒适谦率地态度融入其中。









秦砖汉瓦是华夏文明宝库中一颗璀璨的明珠,其精美的文字、奇特的动物形象、华丽诡异的图案,在考古、历史等方面极具艺术欣赏和文化研究价值。名振千百年的阿房宫,其间雕梁画栋,壁画、壁饰充满各个角落,结构和装饰非常华美。传承艺术精华,设计师衍化出多种现代手法的继承演绎。



后场阶梯造型仿效汉秦汉建筑中瓦当的圆涡纹理,呈现出完美的几何螺旋结构,展现曲线之美;楼梯正对的墙面则采用了颇具历史感的不规则秦砖效果,整面墙的设计让人想起我们雄伟浩迈、气壮山河的万里长城。



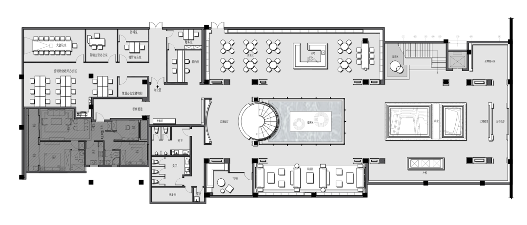
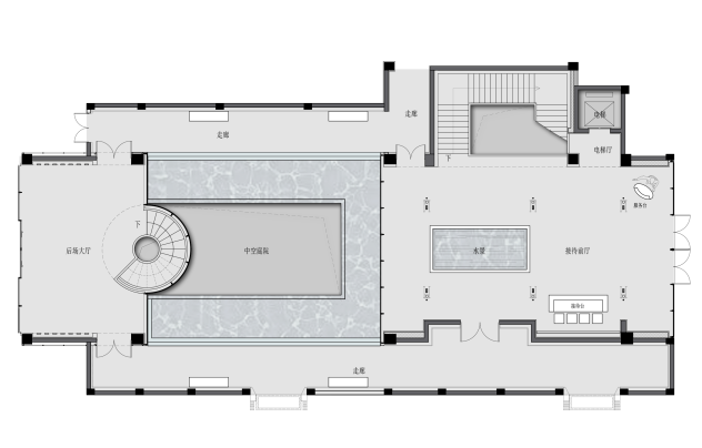
平面和效果图信息











项目名称 | 祥新·大秦美学馆
项目地址 | 中国·湖州
项目面积 | 1027㎡
竣工时间 | 2020年12月
空间设计 | 纳沃印未
陈设设计 | 纳沃佩思
项目摄影 | 黄书颖
特别鸣谢 | 祥新控股—陈砚 陶丽 徐涛
平面和效果图信息








金盘网APP
金盘网公众号
金盘网小程序


