北京龙湖御湖境
北京市龙湖·御湖境由北京顺龙兴瑞置业有限公司开发建设,项目坐落于望泉北街与前景南路交叉口西南角,占地面积69193.56平方米,建筑面积110709.69平方米
服务范围:地产开发-住宅
销售参考价: 48000 元/平方米- 项目名称:北京龙湖御湖境
- 项目地点:北京市望泉北街与前景南路交叉口西南角
- 开发商:龙湖集团
- 销售参考价:¥48000/㎡
- 项目类型:住宅
- 形态:示范区
- 市场定位:改善系
- 建成时间:未完工
- 风格:其他
-
主力户型:高层 平层 120-144㎡ 4室 2厅 2卫
高层 平层 180-210㎡ 4室 2厅 3卫 - 占地面积:69193.56㎡
- 建筑面积: 110709.69㎡
- 容积率:1.6
- 发布日期:2023-04-11
- 最近更新:2023-12-22 17:11



龙湖·御湖境,以「世界臻萃于此境」为核心,从「臻选城央、臻品美学、臻奢选材、臻享圈层」的「四大豪宅基因」精著豪宅作品。过去30年,龙湖对于产品的研磨和打造,受到了高净值群体的一致认可,甚至可以说「顺义豪宅史,半壁看龙湖」。基于此,龙湖顺义·御湖境Ⅱ期是龙湖在顺义城央臻罕贵脉之上,汇聚龙湖30载匠心打造的全新高定作品。





常年作为消费者优先选择的龙湖,在引领北京豪宅人居范式之路上,从滟澜山到御湖境,以一场跨越16年的对答,提问时间之外的意义。
当生活成为不可回避的议题,龙湖对人居的品牌理念和愿景深触众多高净值群体的居住诉求,重归顺义,龙湖选择以“世界臻萃于此境”为主题,刷新主城芯的生活封面,重塑生命向往的人居表达。

重塑高阶生活想象的空间哲学,黑白灰以优雅表现力营造诗性表达。



如场域中雕塑艺术品一般,空间的氛围营造从写实到意向的转变流露着东方文化的古韵,在泼墨挥毫间,写意生活投射于空间。



融景入室,现代冷静的时尚中表达唯美与浪漫,追求优雅的生活态度在线性空间的编辑中尽展于此。


流苏水晶灯盏之下,在地风物与展露人文历史的器皿塑造空间与人、人与美食的亲密对话,体恤居者对格调审美的高层次诉求,雅致华贵的大宅气息在自然绿意的映衬下对生活展开新的探索。

不一味在空间中表达设计技法,剖却繁复的装饰,探索功能串联空间中的艺术优雅,生机自然的材料与家居选品呈演生活图景,品质与艺术于此并行。



风格想象中的生活印记,呼应空间东方典雅气质,韵意随着大理石独特的肌理纹路得以呈现,干练而高级的美学静默且诗意地耸立空间之中。

感知时光铭刻的痕迹,空间犹如画者笔下文墨风流的水墨世界,行于山水间,坐享自然境。


向墨迹山水取色,虚与实、繁与简,以截然不同的表现形式,构成空间诗一般的休憩语言。


极具现代气息的吊灯家具、花器造景与挂画间的融合,富有东方美学的张力与现代简约之美共存。




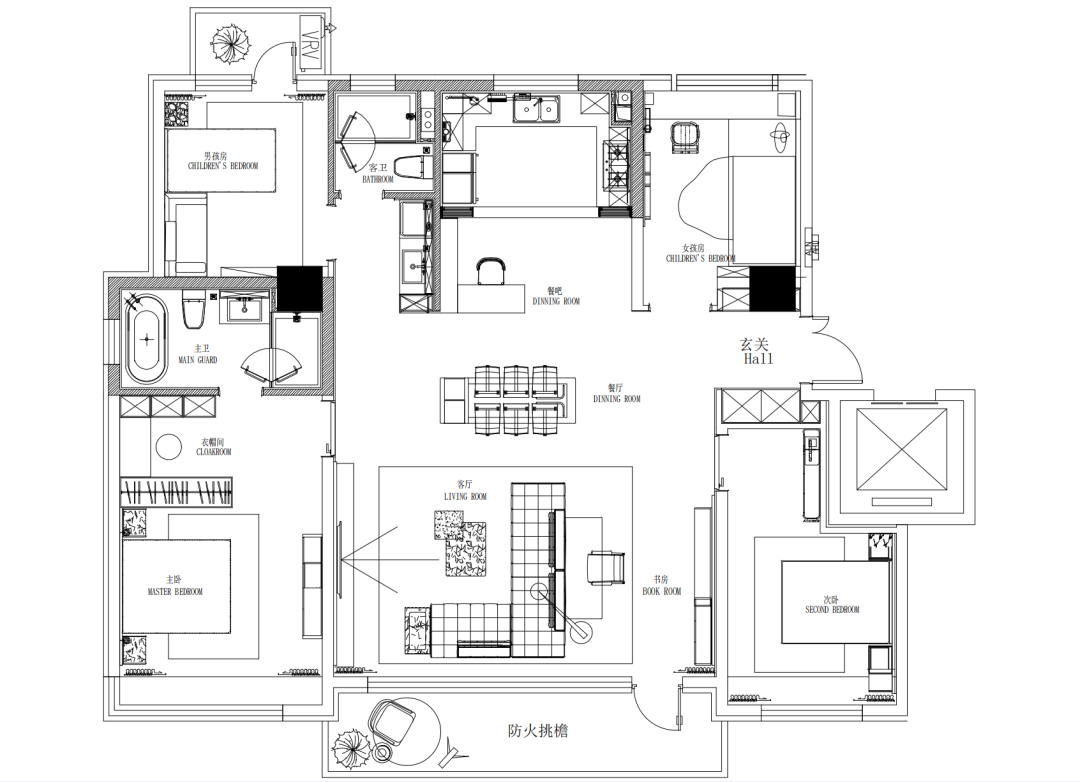
平面图
粗糙机理与现代撞色的墙面装置与花卉蝴蝶梦境中生长的雕塑呼应,渲染艺与梦结合的空间意境,在明朗柔和的成长空间中不断创造梦想人生。

推衍当代城市新贵的生活方式,明亮光线带来的氛围设想,成为生活形式恰当而宏伟的表现。


当理性与感性共生,利落的质感材质铺叙生活氛围,简洁清晰的线条还原生活本真,大气稳重与舒适雅致并重的生活方式,在现代家居与艺术品的的层叠错落间质感送达,交织摩登与优雅。


空间让步于光线,点亮蓬勃生机,大面积黑色布陈让光成为闪耀的焦点,逐光悦影中都市五口之家的生活向往与亲子之乐,沁入人心。



在阳台中与居者的爱好相逢,生活细节展露雅趣品质。



居于腔调空间,氛围与质感的碰撞,在棉麻家居与大地色系的设色中上演,编织感的布面、低调不掩奢华的环保皮草以柔软触达韵意,呼应由片堆叠组成的屏风墙体,点染空间属性下的精神归属。



卧室玄关摆放装饰主义风格的雕塑,将自然光线转换为艺术概念表达的装饰画成为感知空间的媒介,叶片的自然意象化为夜灯,深浅不一的雅灰设色在光线的照射里层次分明,晕染典雅空间。




在寂静夜晚仰望星空,勇气与好奇之下,追逐梦想的坚定意志成就男孩的闪闪太空梦。定制一体化的床体与床边软塌完善空间功能,成长空间的雅致吐露崭新内涵。



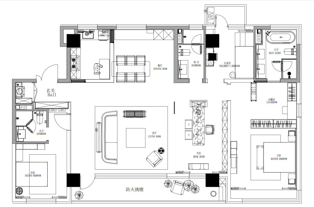
平面图
拥有艺术天赋的女孩在温柔空间中成长,站上舞台,尽情表演,李绿野的《黑洞系列——引力场》雕塑成为女孩梦想的展现,灵感激荡的时空表达留存一室。

作为居者各种生活行为的并集之地,设计师的落笔充实静谧、自然的场景体验。



东方气质中的温润构想于旁逸斜出的绿枝与空间极致留白的对比中展露,安然与舒适在此刻呈现丰富又多变的畅想。



黑与白不在是二元对立的存在,黑胡桃木打造结构的单椅、黑色纹理大理石的茶几、空间中可探寻到的黑色线条……毫无违和感的嵌入米白设色的会客空间。


悠然见南山的洒脱为烟火气息缭绕的日常提供三餐四季内的陪伴。

人文雅居的空间美学,体现在与氛围契合的艺术品选择与点睛空间的家居陈设中。


贯穿空间的留白蕴含自然意趣,当灯光顺延设定的路线洒下,美食美酒的用餐体验聚焦眼前。


步入式的场域将功能与审美结合,沿袭空间场景化统一的画艺系统设计,以化繁为简的当代集合绘画契合现代东方简约的休憩精神。


线条体块的阵列排布糅合斑驳绿影,在简洁留白的生活视野中,摇曳风情。



延续情感的生活记忆被妥帖安置,木质柔和的感官体验带来简单纯粹、与舒适共鸣的生活氛围,老旧照片与长久相伴的器物萦绕着除居者外鲜为人知的故事,于安然入睡的酣梦中,重温美好时光。




平面图


在整体空间安然宁静的起居氛围中刨除体现童稚感的元素,以速度激情展开的生活主题契合居者爱好,潮流玩趣的空间成为保护童心一路成长的驻留地。
【工程图】

项目名称 | 北京龙湖·御湖境样板间
项目地址 | 中国 北京
项目甲方 | 龙湖集团北京公司
甲方团队 | 樊悦、李建康、林倩、郭元蓉
软装设计 | 则灵艺术
项目拍摄 | 高腾云
工程资料(含设计、工程、材料)
材料及其应用场景
简一芬迪灰
保加利亚灰
云棕灰
金盘网APP
金盘网公众号
金盘网小程序





