Harmonious coexistence between man and nature
也许我们曾追逐潮流,曾向往奢华,也曾在璀璨都市中迷失自我;但在心灵深处,始终存在对理想栖息之所的渴望,源于自然而建立于当代艺术之上的乌托邦,承载着我们对未来空间的全部想象。
Maybe we once run after fashion, longed for luxury, and lost ourselves in the urban splendidness. But in the depths of our hearts, there is always flaming the desire for the ideal place to live. The Utopia, originated from nature and built on contemporary art, gives wings to all our imagination about future space.

千年长安,梦回大唐,在繁华落尽的街角,出现了理想中的乌托邦,在高速发展的都市中,仿若一方心灵净地,承载着曾经的向往与未来的期盼。
As the millennium Chang'an dreams about the Tang Dynasty, an ideal utopia emerges in a quiet street corner of the fast-growing metropolis, like a pure land for the souls to relive its past yearning and look forward to the future.
雅居乐常宁售楼处,坐落于长安区常宁新区,毗邻潏河湿地公园、文化景观中心,地处南部发展区边缘,为远郊“卧城”;南依终南山,北拥滈、潏两河,享城市臻稀生态环境,得古城底蕴熏陶。Agile Changning Sales Office is located in Changning New Area, Chang'an District, adjacent to the Yu River Wetland Park and the cultural landscape center. Nestling on the edge of the southern development area, it is oriented as a "dormitory town" in the outer suburbs. Backed by the Zhongnan Mountain in the south, facing the Hao River and Yu River in the north, it enjoys the city's rare ecological environment, drawing on the cultural legacy of the ancient city.
“它根植于自然,充满情境,同时又是谦逊和包容的。”从设计的角度出发,将自然和生态带入售楼部,成为本案的概念起点。
"It's rooted in nature, alive with human context, while humble and inclusive." The project proceeds from design, bringing nature and ecology into the sales department, and thus forming its conceptual starting-point.
Universal thriving, poetic inhabitation
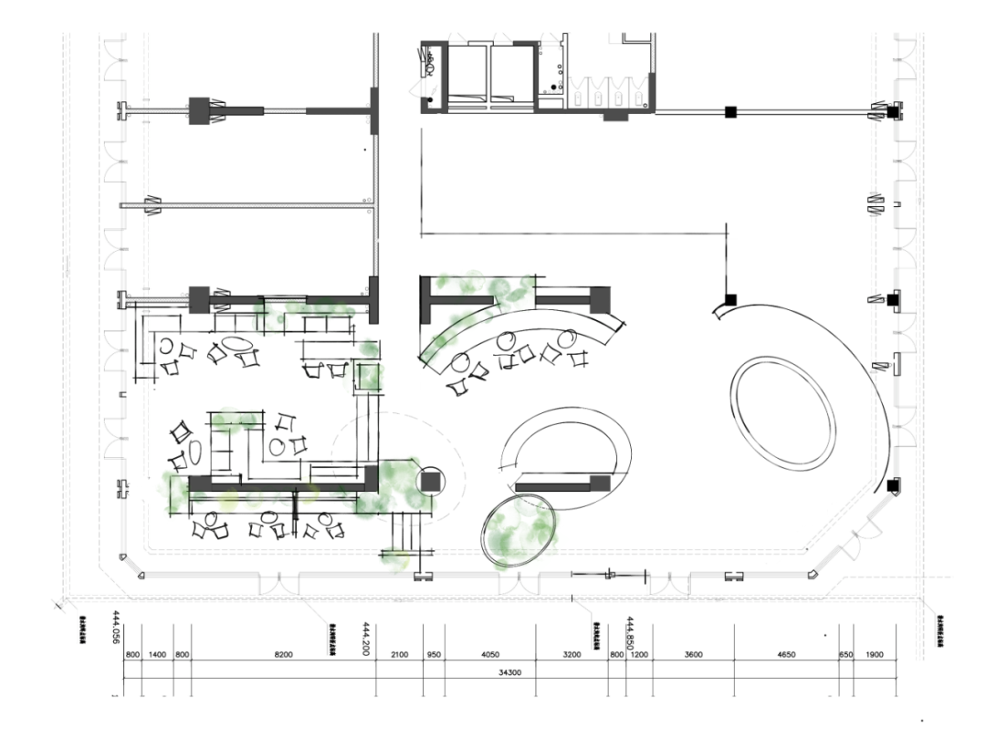
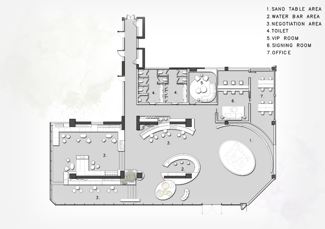
九度设计团队受邀担纲其室内设计,软硬装一体化方案构思,通过区域特质进行客群分析,从当代年轻人对生活品质、生活环境的需求出发,提出“品质、舒适、活跃、格调、时尚”等空间诉求。遵循现代、体块组合、简约等设计语言,打造集商业、公寓住宅、办公为一体的综合商业形态。
Our team, which has been invited to design the interior, by integrating soft and hard decoration when conceiving the project, conducting customer group analysis based on regional characteristics, catering to contemporary young people's demand for quality of life and living environment, has proposed such space appeals as quality, comfort, activity, style, and fashion. By applying such design languages as modernity, block combination, and simplicity, the team will create a comprehensive commercial form consisting of commerce, apartment housing, and offices.

经过方案的推演与反复调整,最终,九度设计契合项目案名“雅居乐花园”为主题,提出诗意栖居概念,描摹“万物生长”的未来生活景象,重新构造,融合于自然,探索艺术与自然的共生,创造出一种人与艺术、艺术与空间的互动关系。Repeated challenges and adjustments to the program ends up with a poetic inhabitation concept, which echoes the project name Agile Garden, depicts the future life scene of "universal thriving", explores the symbiosis of art and nature through reconstruction of a tie with nature, and creates an interactive relationship between people and art, art and space.
从自然生态中寻找灵感,将鸟巢形态进行元素演变运用于空间,木色曲线轮廓与暖光灯的照耀下,如同林木透过阳光,优美的弧度勾勒出自然灵动之感,在自然光点缀下凸显出沉静、与世无争的纯粹感;以恰到好处的简约,重塑现代空间之美。
Inspired by the natural ecology, the team transforms the elements of the bird nest into the space. The wood-colored curves illuminated by the warm light, just like trees dyed by the sunshine, outline the sense of natural flexibility with the beautiful radians which, set off by the natural light, highlights the pure sense of calm and serenity. The perfect simplicity reshapes the beauty of modern space.
Walk in the woods into nature


质感是空间的灵魂,从装饰功能上升到“艺术”,九度设计走过了漫长的道路,无论是选材设计还是工艺,九度设计都精益求精。臻选水波纹不锈钢、木饰面、仿木纹砖等材质,整体木色调赋予空间一份柔和气息,以渐进的流动波纹,带领访客进入沉浸式体验空间。Texture constitutes the soul of space. Jiudu Design has made a long way from decorative function to "art", pursuing excellence in both material selection, design, and technology. Selection of water corrugated stainless steel, wood veneer, imitation wood grain brick and other materials creates an integral wood tone, which breathes into the space with a soft breath, leading visitors into an immersive experience space through gradual flowing ripples.


理想中的乌托邦,沐浴阳光下,漫步密林中。九度设计在硬装上以简约的形态、利落的线条,将大美至简的现代艺术融入空间;抽象的花瓣造型,以流畅的线条感在木质墙面优雅绽放,为空间覆上一层浓浓的自然气息。In the ideal utopia, owners can bask in the sun, or stroll in the woods. In hard decoration, Jiudu Design, by means of contracted forms and agile lines, translates the beauty and simpleness of modern art into the space; the abstract petal shape blossoms gracefully on the wooden wall with smooth lines, giving a thick natural mood to the space.



在软装表达上,坚持“绿色环保”的设计理念,融入健康生活方式,利用原木、植物等天然材质,构建木质空间格调,与绿植为伴、花木相依,尽享自在、舒适的惬意时光。
In soft decoration, the design concept of "green and environmental protection" is incorporated with a healthy lifestyle; natural materials such as logs and plants are used to build a wooden space style; and in the company of plants and flowers, the owners can enjoy a comfortable and comfortable time.
光影入境,虚实相生
Turn light and shadow into the virtual and the real

跟随空间动线至水吧区,大面积异形装置的曲线,与对称的木饰面形成强烈视觉冲击,在刚柔并济间形成独特的设计语言与空间魅力,成就自然之境。
Follow the dynamic line to the water bar area, where a large area of curves of special device and the symmetrical wood veneer form a strong visual effect, with the combination of hardness and softness giving birth to a unique design language and space charm, thus creating a natural realm.


在色彩选择上,九度设计考虑到整体空间的自然诗意,采用简洁的色彩点缀空间,强调颜色对比与光影对比,使视觉空间最大化,提升空间实用性与美观度。In color selection, Jiudu takes into account the natural poetry of the whole space, applies concise colors to adorn the space, highlighting color contrast and light contrast, maximizing the visual space, and elevating the practicality and aesthetics of the space.

为了呼应“诗意栖居”的设计主题,颜色搭配上,九度设计以米灰色为主,绿色为跳色唤醒空间活力,增强视觉效果;结合棕色和白炽灯光,为空间添加一抹暖色,丰富空间层次。To accentuate the design theme of "poetic inhabitation", Jiudu uses griege to dominate the color matching, green as jump color to awaken space vigor and enhance the visual effect, brown and incandescent lights to equip the space with a warm tinge and more dimensions.
结语:
Epilogue:
如果说,乌托邦是一首浪漫的散文诗,那么雅居乐·常宁ONE生活体验馆×九度设计,如同袅袅琴音在山谷河流间弹奏,伴随鸟鸣与大树,阳光与晨露,令人心旷神怡。穿门入境,绿植、花瓣墙面如同山水画卷般徐徐展开,描绘出诗意栖居与现代艺术的双重景致,如沐春风,心境豁达。If utopia is a romantic prose poem, then the Agile · Changning One Living Experience Pavilion blessed by Jiudu Design is the music of lyre wafting among valleys and rivers which, coupled with bird chirping, trees, sunshine and morning dew, will make the owners relaxed and cheerful. Entering through the gate into the realm, one will find himself before a gradually unfolding scroll of green plants and petal metopes, and get intoxicated in the twin-landscape of poetic inhabitation and modern art.
Drawing presentation





△ 效果图