西安金辉环球中心LOFT
本项目是面积58平米的LOFT户型,为了发挥空间特性,设计师进行了反复推敲,最终通过创新布局和极简个性的陈设风格,为小微企业的创客空间提供丰富的想象力。
服务范围:地产开发-公寓
销售参考价: 10000 元/平方米- 项目名称:西安金辉环球中心LOFT
- 项目地点:陕西省 西安市 长安区雁塔南路与南三...
- 开发商:金辉集团
- 销售参考价:¥10000/㎡
- 项目类型:公寓
- 形态:示范区
- 建成时间:2022年
- 风格:现代
- 主力户型:高层 复式 50-70㎡ 1室 1厅 1卫
- 占地面积:120000㎡
- 建筑面积: 740000㎡
- 容积率:3.02
- 发布日期:2023-04-12
- 最近更新:2023-04-12 11:04
新媒体广告是目前信息传递的主要来源,因此目标客群定义为互联网环境下长大的科技型人才,被视作“后浪”的新一代青年,他们主要从事新媒体广告工作。

本项目是面积58平米的LOFT户型,为了发挥空间特性,设计师进行了反复推敲,最终通过创新布局和极简个性的陈设风格,为小微企业的创客空间提供丰富的想象力。


人在一天当中,有三分之一的时间处于工作状态。设计师希望打造轻松愉悦的后疫情时代工作环境,让室内空间承载动能的同时,更满足人们的心理需求。

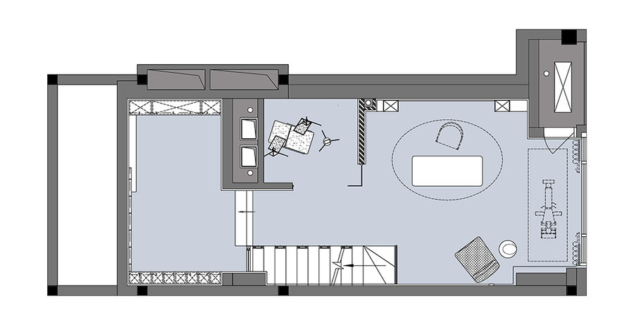
在首层办公区布局时,设计打破传统办公室和办公桌的方式,创造了团队内协作活动的多样化工作模式。

一层作为团队成员的联合办公空间,通过卡座区与吧台区两种不同场景的划分,同时满足办公、聚会、休闲功能。


链接工作与生活,在忙碌中感受创客气息。



开放式的半围合空间,没有边界的分割促进交流,提供了更有益于创意发生的高效工作场所。


楼梯作为公共空间中的一个视觉落点,除了具有现实意义的功能性外,也可以很有趣味,它可以是一个装置、一个陈设,旨在通过浅色踏步与浅色墙板之间的搭配,营造轻盈通透的开敞式步道,降低大面积楼梯在视觉上的厚重感,成为一二层空间共享释放的虚线地带,作为视觉延伸。



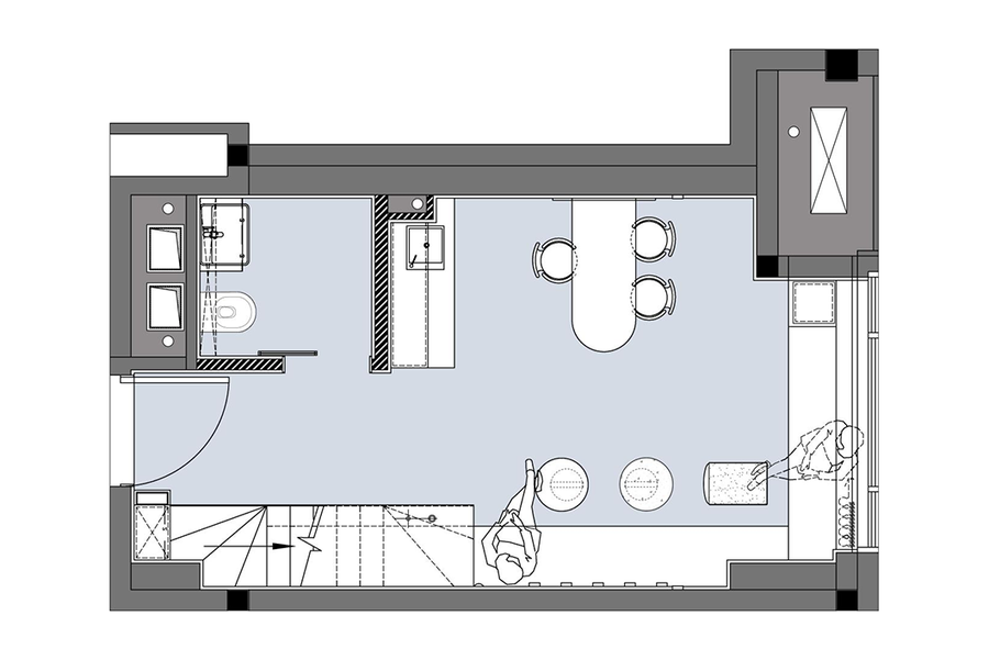
二层被划分为企业管理者的独立办公空间,且兼具办公、休闲、样板拍摄与品牌资料室。


二层的主管办公位极具设计感,并且不再独立,而是与旁侧窗下的阳光健身区,在空间与空间之间相互衔接,让紧绷的工作压力被消解,随时随地可以舒缓放松的感觉弥漫。


主管办公位对面的磁性玻璃板,随时记录团队的创意讨论成果,工作不仅仅需要伏案劳作,更需要一个停下脚步,沉淀思维的角落。


主管办公桌旁边的卫生间,被改造成了专业样板拍摄房,客户产品经过精心策划,在这里被形象包装,输出到自媒体平台。

从样板拍摄房拾级而上,来到二层夹层,这里是企业资料室,也是品牌展示区,陈列着企业奖项和知名作品集。

项目名称:金辉环球中心J一期、金辉凤栖云筑
项目地址:西安
业主单位:金辉地产
软装设计:北京德方圆文化创意有限公司
设计总监:崔瑩
设计团队:江萍、张永梅、张晓杰、袁苗、高乾、孔永刚
项目面积:59㎡
金辉西安环球中心平层
“美”对于艺术和设计的意义,是一种空间的升华,也是一种对生活的思考。

整体空间色彩氛围以黑白灰打造独特气质,以咖色与不同程度的灰作为主色调,红色糅杂着秋日橙成为视觉焦点,借助色彩在感官、精神内涵层面引发美的通感,优雅魅力的空间尽显生活的趣味,体现当下女性的知性温婉和对生活积极向上的态度。








明亮的自然光,深浅不一的色调,彰显出一种干练的空间氛围。


一阵悠扬的琴声夹杂着徐徐清风轻轻送入耳中。美妙的琴音似乎很远,遥不可及,又似乎很亲近,缭绕耳际。



理想的生活空间是源自对美好生活的不竭探寻,美好生活的构筑者,细微之处鉴臻心。

金盘网APP
金盘网公众号
金盘网小程序


