福州万科城市花园
万科·城市花园示范区位于福州闽侯荆溪镇光明村,北侧紧靠荆溪大道,西侧3公里为城市公园,南侧2公里为绿洲寨公园,自然资源丰富。 1994年,万科在上海种下了万科?城市花园,“公园里的城市生活”成为了城市花园项目传递的核心价值理念。
服务范围:地产开发-住宅
销售参考价: 13500 元/平方米东、南部地区预售楼盘
入围项目
- 项目名称:福州万科城市花园
- 项目地点:福建省 福州市 闽侯县福建省福州市闽...
- 开发商:万科集团
- 销售参考价:¥13500/㎡
- 项目类型:住宅
- 形态:示范区
- 市场定位:改善系
- 建成时间:2021年
- 风格:现代
- 占地面积:47447.47㎡
- 建筑面积: 76082.5㎡
- 容积率:2.1
- 绿化率:35%
- 发布日期:2023-05-16
- 最近更新:2023-12-25 18:29
万科城市花园·福州 VANKE CITY GARDEN, FUZHOU “重要的不是我把握自然,而是我与它一同生活” ——毕加索 建筑以“谦卑”的姿态融入基地,与自然对话展开叙事,建筑与自然交织完美契合在城市花园的场所里。 人与自然和谐共生,心灵回归自然,精神回归于场所,这样才能拥有真正的归属感,归属感才能带来共情 。
The Park & City
万科·城市花园示范区位于福州闽侯荆溪镇光明村,北侧紧靠荆溪大道,西侧3公里为城市公园,南侧2公里为绿洲寨公园,自然资源丰富。
1994年,万科在上海种下了万科•城市花园,“公园里的城市生活”成为了城市花园项目传递的核心价值理念。
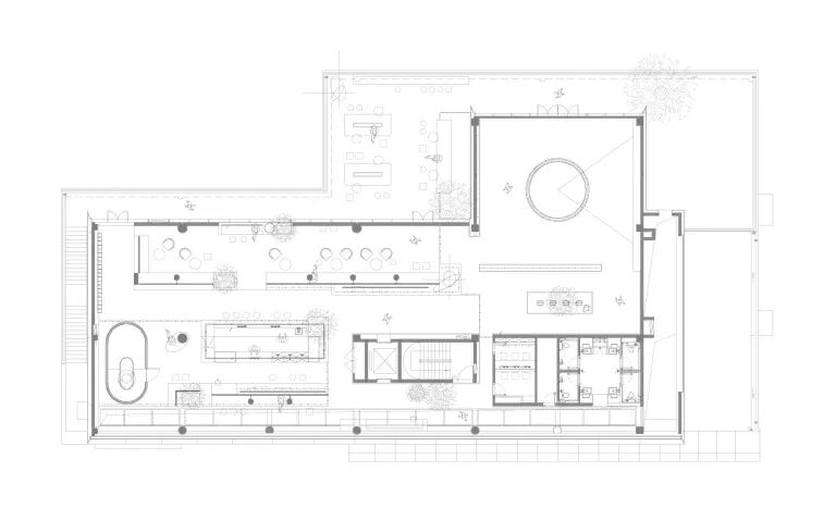
在现如今城市寸土寸金的土地上,公园显得弥足珍贵,基地中部规划的5000多平方米的公园绿地,给项目更添了几分城市公园的使命。 稀缺的城市绿地公园资源,如何激活城市公共空间的参与度,与住区互联互通?如何与周边自然对话,给住户带来一个积极的互动空间,是设计一直在思考的问题。 示范区前期作为售楼展示用,后期作为配套使用,设计结合地形及周边风貌,将示范区设置于中部边界处,既能减小对社区内部的影响,同时保证城市界面形象完整,又能将公园优势最大化。 设计中,展示区正对现状高层住宅小区,后场紧邻城市公园。建筑以一个简洁的矩形切入场地,一层局部架空形成视线通廊,将人流引入城市花园,化解消极的前场空间。二层形成退台,作为观景的场所。 示范区建筑秉承“删繁就简,溯本清源”的建筑哲学,将建筑体块、材料以及细部以最纯粹的方式呈现自然舒适的建筑空间。 架空层作为城市回归到社区的过渡空间,联系城市空间和公共花园,引导人流进入社区,同时也是接待空间,是社区的形象入口。 Conversation & Nature 作为未来核心的街角区域,也是进入城市花园和公园绿地的第一重要公共场所,进入建筑的路径被刻意营造出叙事性的体验。 设计简化落客区入口设计,两侧长景墙既隔绝了城市的喧嚣,又与主体建筑呈现出框景效果,进入展示中心,通过空间关系的有序转换,打造了多维度的空间体验感。 建筑采用简洁的方盒子形状,通过对示范区功能的梳理,采用错动、叠加的手法形成通透而富有变化的建筑形象。 建筑二层飘台望向公园的视线打开,实现了公园景观的最大化。立于眺望平台,建筑与公园、人与景,是看与被看的关系。在移步异景中,感受未来城市花园的实景生活场。 少不是空白而是精简,多不是堆砌而是克制。售楼处立面设计上体现了现代风格简洁极致的细节美感, U型玻璃幕墙营造出独有的格调和艺术情怀。营造出一个干净纯粹,利落现代却又不失细节的立面形象。建筑色彩以银白及蓝灰为主调,低调,精致细节的现代艺术感悠然而生。 Sharing & Park 示范区场景的塑造,是以未来城市花园交互生活方式作为空间设计的落脚点,建立起场所、人与自然的情感联系。 设计运用框景的设计手法将城市花园美景映入建筑,建筑与花园景色产生对话,建筑,自然,光影相互渗透交织,指向归家之路。由外至内,由喧至静,由繁至简。 开放的自然状态、个性化的园林空间营造,使得参观者在这里,第一眼看到的是充满生态的社区公园,室内外融为一体,得以"体味都市情怀,尽享自然雅趣"。 整个示范区宛如一座自然博物馆,植物在公园里曼妙生长;建筑在光影的勾勒下与周边环境共鸣;生活不再是住在公园边,而是安家花园里。 设计图纸 △ 住区总平面 △ 示范区底层平面 △ 示范区二层平面 △ 示范区立面




















工程资料(含设计、工程、材料)
金盘网APP
金盘网公众号
金盘网小程序






