广州大华东郡
增城,拥青树翠蔓之美,蒙络摇缀之姿,参差披拂之态。朱村,东莞高速和广汕公路贯穿其中,其未来会成为地理位置优越、交通便利、配套设施完善且富有文化底蕴的潜力巨大的地区,与周边环境相互融合渗透。21号地铁线将广州与增城联系在了一起,位于朱村站的大华东郡映入...
服务范围:地产开发-住宅
销售参考价: 16000 元/平方米东、南部地区预售楼盘
入围项目
- 项目名称:广州大华东郡
- 项目地点:广东省 广州市 增城市增城区地铁21号...
- 开发商:大华(集团)有限公司
- 销售参考价:¥16000/㎡
- 项目类型:住宅
- 形态:示范区
- 市场定位:刚改系
- 建成时间:2022年
- 风格:现代
- 主力户型:高层 平层 90-120㎡ 3室 2厅 2卫
- 占地面积:39703.9㎡
- 建筑面积: 163707㎡
- 容积率:3
- 发布日期:2023-05-20
- 最近更新:2023-12-22 16:22


广州大华东郡景观示范区
DAHUA GROUP HONOUR MANSION
广东,广州 GUANGZHOU,GUANGDONG
增城,拥青树翠蔓之美,蒙络摇缀之姿,参差披拂之态。朱村,东莞高速和广汕公路贯穿其中,其未来会成为地理位置优越、交通便利、配套设施完善且富有文化底蕴的潜力巨大的地区,与周边环境相互融合渗透。21号地铁线将广州与增城联系在了一起,位于朱村站的大华东郡映入眼帘的葱翠碧绿与拥有简约明快的现代化建筑交相辉映。

「南粤记忆」
作为全国著名的荔枝之乡,感受最深的是乡村故事与文化脉络,情感与气质深入到岭南人的性格与心灵中。大华东郡的产品类型对标年轻客群,是小太阳家庭首次置业的主选产品,从配套到户型设计都力求为普通人创造理想型的小生活。我们将岭南人所熟知的《彩云追月》作为景观设计主题,这首脍炙人口的粤音曲谱,其风格轻快独特,描写了小市民平凡生活的轻松写意,彰显典型的广东民乐风格。


曲名《彩云追月》,有着寓意深远、写意浪漫的画面感。设计师提取了“彩云”和“追月”的两组动态画面,以景观的手法结合彩云逐月之念,云月相逐,相映成趣。
01
彩云
“曲径通幽处,禅房花木深。”
如此幽美无限,就此与修养生息、欲享天伦的人群相得益彰,珠联璧合。彩云飘逸、流动的状态随着写意的笔墨一气呵成贯穿整个场地当中。



“小园香径独徘徊”也使人颇有“一曲新词酒一杯”之欲。
迎宾入口处曲折蜿蜒的步道伴着层次深浅不一的流纹,灵动活泼,简约大气。再徜徉树荫参差,羊肠九曲的彩云小道,似云状轻飘之道给人以明快安逸之态,心情舒畅,心驰神往。
▼实景图




广场中细节建筑材料采用穿孔铝板,艺术造型多变且与建筑内部形成半透明界面,花岗及洒片岩打造的镜面水池池底别具匠心,曲线铺装型地面与设计中的“追云”景观概念行成了契合的景观符号呼应,注入了主题设计感。

追月
“一日之内,一宫之间则气候不齐”

位于景区中庭的映月广场日现三态,静美中大相径庭。中庭景区是人们必经的绝佳之处,金桂乔木映在黑色砾石上的树影别具一格,中心弯月形雕塑在天色明亮时仿似银环,与那汪清澄潭水相得益彰,设计显尽格调韵味;经天色黯淡时好似金环,闪耀金亮;过傍晚时分,建筑光亮愈发柔和,仿似弯月立于世间,更加凸显了新颖独特的设计理念。


“故其妙处,透彻玲珑,
不可凑泊,如空中之音,
相中之色,水中之月,
镜中之像,言有尽而意无穷。”
云状步道间置有拱形门,其拱形灯光映照潭中颇有“水中捞月”之欲,夜中散步也可见柔和光景,这更是体现了区中灯光布景之精妙和以人为本的设计源点。
▼实景图


▼设计草图

▼实景图

03
鲲鹏天地
鲲鹏天地是大华集团2020年推出的儿童主题IP,结合“五感社区”的思想理念在每个大华的项目中实施落位。为小朋友创造各种与在地文化结合的“社区儿童乐园”。
《列子-汤问》:终北之北有溟海者,天池也,有鱼焉。其广数千里,其长称焉,其名为鲲。有鸟焉,其名为鹏,翼若垂天之云,其体称焉。世岂知有此物哉?大禹行而见之,伯益知而名之,夷坚闻而志之。

在鲲鹏天地IP的基础上,我们结合了增城朱村得天独厚的稻田优势,衍生出了新的IP——鲲鹏农场,其集种植、采摘、儿童娱乐为一体,深受当地居民与来访者的欢迎。



04
匠心

直线属于人类,而曲线属于上帝——Antonio Gaudi
飘逸的景观弧线是“彩云追月”的灵魂,弧线的景墙、池壁、绿化、铺地一气呵成的勾勒出示范区亮点。但另一方面的施工难度也是肉眼可见,在这个过程中“穿孔板接缝”、“铺地放线”、“弧形结构”等难点都在现场配合中与茂苑园林的工程师们逐一解决。

结语
我们尝试在世俗喧嚣中静谧美好,人景相合才是静美之道,每每归家观其“云月”之间,相映成趣,愿你我在这片极乐净土上与自然休憩,与美好相依。

项目位于广州增城,根植于岭南文化之上,人文丰蕴。繁荣的广府文化、别具特色的岭南四大名园,无一不刻画着广州的文化年轮与历史脉络。
━━
Chapter·01
寻迹
人文岭南,古雅清惬

余地三弓红雨足,荫天一角绿云深
余荫山房,⼴东四⼤名园之⼀,以小巧玲珑、布局精细的艺术特色著称,设计师从岭南园林中的代表作「余荫山房」中汲取灵感,提取斗拱、门扇、窗格、夹墙翠竹等传统元素,结合现代设计手法,采用抽象的形式,旨在打造一座具有东方气质的现代售楼中心。



一缕书香系千年,万点墨色韵人文,依空间节奏置入隔断,取“书匣”造型,融合传统窗洞的古典韵味,去繁就简,还原岭南书院的文雅精神风尚。
━━
Chapter·02
抽离
取形写意,借古开今



━━
Chapter·03
重塑
破与立间,余韵悠长


文化的传承不是因循守旧,而是历久弥新。

“夹墙翠竹”是余荫山房著名绿化景观之一。设计将其提取凝练,抽象转化,与高耸门扇相容,延续余荫山房“浣红跨绿”的色彩概念,在虚与实的缝隙里,营造出闲适、淡雅的生活情境。
━━
Chapter·04
构想
翰墨书香,文人意境


承沿余荫山房的空间布局,模糊了正负形体的边界。沙盘座犹如一块砚台,天花之上,笔、纸、印章有序陈列,充盈着翰墨之香。



疏密有致的线条组合,宛若被串起的一页页书卷,夹杂着木质的芬芳入鼻,写意的营造出轻盈而深厚的文人意蕴。
━━
Chapter·05
灵动
风雅如斯,诗意化境




着意“红雨”“绿云”的意境美感,让自然与人文结合来释放一种平衡,“余荫”之意,不言而喻。



━━
Chapter·06
光影
静谧时光,与自然共生








━━
Chapter·07
人文关怀
源于细节,止于简洁




细腻纹理的皮革面料,搭配进口棉麻布艺,精致源于各个细节上的考究,也是一种人文关怀的积淀。







“我认为我们必须打破一切可能的规则。” 建筑师 PalomaCañizares 解释说。“在某种程度上,它们总是代表着前进的一小步。”




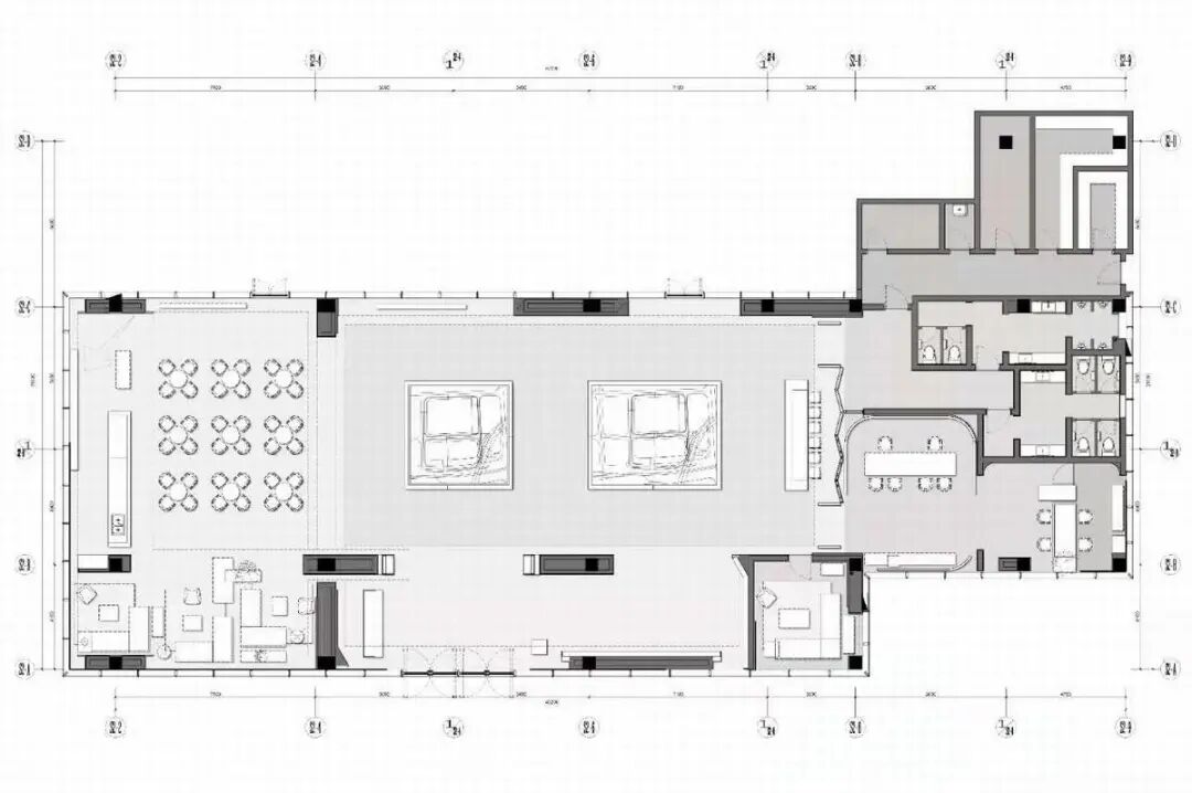
△ 一层平面布置图

项目名称:大华·东郡
项目地点:中国 广州
甲方单位:大华集团广州公司
甲方团队:卢建辉 翟亮 何丽玲 华春发 钟歩锋 沈家春 李锋
景观设计:骏地设计
室内设计:CIMA 希玛设计
工程资料(含设计、工程、材料)
金盘网APP
金盘网公众号
金盘网小程序


