- 项目名称:西安万科未来星光体验区
- 项目地点:陕西省 西安市 西安西咸新区沣东新城...
- 开发商:万科集团
- 销售参考价:¥20500/㎡
- 项目类型:其他
- 形态:示范区
- 建成时间:未完工
- 风格:其他
- 占地面积:64433㎡
- 建筑面积: 262585㎡
- 容积率:2.5
- 发布日期:2023-08-17
- 最近更新:2023-08-17 18:00
西安万科未来星光体验区 | 星体验 · 新生活
项目名称:西安万科未来星光(示范区)
项目地点:西安沣东新城太安路与征和七路东北侧
项目面积:约24000㎡
景观设计:Instinct Fabrication本色营造
业主:西安万科
万科项目团队:甄巍 付俊苹 费琼 樊博
景观施工单位:四川兴立园林环境工程有限公司
室内设计:ONE-CU壹方设计
摄影:三棱镜



西北首个Co-Life体验馆
西安万科未来星光, 位于西安西咸新区的门户位置-沣东新城,作为西北首座co-life生活体验馆,既是西安可持续的城市发展观缩影,也是未来住区与城市共生共长的新型生活平台。它突破了传统展示区以销售,商务洽谈为主的功能属性,升级为家楼下兼具咖啡,阅读,花艺,游乐包含人文情怀和市井烟火的住区衍生空间。
为打造出满足消费升级、适应年轻人生活、惠及全龄族群的生活场景,万科提出了“内外盒子”体系,本项目定义为服务周边的‘外盒子’即社区商业:一方面,它具有社群维度,是一群人的社区,有着对生活共同的期许和爱好,通过共享互助,让美好生活更升一级。另一方面, 也兼具空间维度:更强调内在空间与外在空间的紧密结合,创造中间性的第三空间。
▼ co-life理念以及“外盒子”的空间形态

温度和浓度兼具的花园式生活街巷

▼ ‘外盒子’空间功能落位

本项目将“外盒子”-社区商业打造成内容核心,作为城市近郊居住产品中不可或缺的“基础设施”,它能提供健康多元的生活选择和趣味空间中的邻里共生体验,同时能加强居民对社区的归属感,以及对于外向型空间使用的惯性。
在近300m长的线性城市界面中,我们希望通过设计消融原本固化的市政绿带,缝合商业立面前空间和传统小区入口广场之间的心理分隔,以及小区大门内与大门外的惯性物理分隔,将内外盒子有机穿插,打造富含社区温度和生活浓度的景观体验。
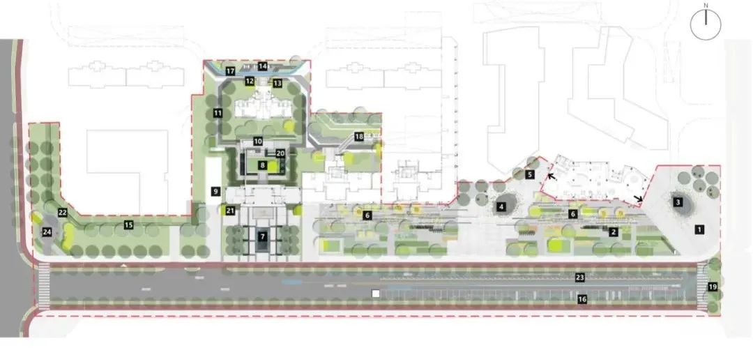
而这场体验,着眼于85后、90后年轻客群,旨在打造适于当代年轻人的居住体验。景观设计从项目案名“未来星光”出发,提出“星”体验·“新”生活的设计理念,设计中融入多种“星”元素,提升项目的主题标识度;同时提供多种“新”生活场景,希望每个居住于此的人们都可以找到自己独特的轨迹与光芒。 ▼ 总平面图





▼ “任意门” — 时光穿梭机器人雕塑设计细节








▼ 螺旋下沉式星云水景设计细节








住宅大区南侧区域作为首开区提前给客户展现未来社区的真实生活场景,强调家的氛围。南大门进入后是亲人尺度的庭院空间,以漂浮草坪为中心,点缀丛生乌桕,由交错的景墙、变化的水景分隔空间,引导归家流线,丰富空间、视觉感受;庭院的端头是一组流星廊架结合下沉的围炉平台,承载社区内不同的使用需求。






金盘网APP
金盘网公众号
金盘网小程序





