合肥滨湖圩美村舍
随着城镇化进程的发展,当今城市形象变化巨大,但同时伴随了乡村逐渐失去活力,出现了大量的“空心村”。圩美磨滩民宿项目是一个空心村再生实践项目,位于安徽省合肥市包河区大圩镇,北临淝河湿地公园,东临巢湖,四周农田环绕。
服务范围:地产开发-住宅
销售参考价: 价格待定华北、东北地区旅居楼盘
入围项目
- 项目名称:合肥滨湖圩美村舍
- 项目地点:安徽省 合肥市 包河区大圩镇
- 开发商:合肥滨湖投资控股集团有限公司
- 项目类型:住宅
- 形态:大区
- 市场定位:康养及其他
- 建成时间:2022年
- 风格:中式
- 主力户型:独栋 180-210㎡ 3室 3厅 1卫
- 占地面积:45963㎡
- 建筑面积: 3239㎡
- 容积率:2.4
- 发布日期:2023-09-05
- 最近更新:2023-09-05 17:52
背景 | Background
随着城镇化进程的发展,当今城市形象变化巨大,但同时伴随了乡村逐渐失去活力,出现了大量的“空心村”。圩美磨滩民宿项目是一个空心村再生实践项目,位于安徽省合肥市包河区大圩镇,北临淝河湿地公园,东临巢湖,四周农田环绕。

设计师通过阅读大量江淮地区的资料,从江淮地区的文化根源中获取灵感,根据当地自然气候的建造法则,以周围民居为原型进行设计。在设计过程中不局限于传统江淮建筑的外观、体量与尺度,重新组织建筑与庭院的关系,梳理动线,并根据空间新定义考虑的其使用需求,采用灵活的现代手法来丰富建筑与空间层次。

江淮地区地处长江淮河之间,地形地貌多为低山、丘陵和岗地,江淮民居结合了北方中原一带的“合院式”和徽州地区“厅井楼居式”建筑特点,平面布局上更加紧密规整,建筑装饰追求简洁素朴,大部分为单层建筑,其中少部分为双层建筑。

△ 改造前项目原状
民宿整体以黑白灰为主色调。墙面为白色的外墙涂料,顶面现代简洁檐口佐以小灰瓦装饰的硬山顶,既有传统的韵味又不失现代的简约气息。


△ 黑白的建筑与天空清晰明亮

△ 静谧的氛围
漫游汀步引导人们缓步而上,步入民宿之中。

△ 主入口
建筑主入口有一面浅水面,形成一个半环形廊道,通往民宿中心建筑“大堂吧”,代表着典型江淮建筑民居中的“堂屋”,演绎为当代民宿体验的一个复合型多功能的公共空间。

△ 建筑与自然的关系


△ 镜面水映衬着蓝天


△ 连廊和青石板路嵌在不同空间形态和边界中,成为建筑之间活跃的媒介。

依照设计师精心规划的路线游走,随着空间与时间的变化,步移景异,一步一景。

△ 白丁书吧

△ 民宿组团内的中心建筑美术馆


根据空间新定义考虑其使用需求,采用灵活的现代手法来丰富建筑与空间层次。

△ 城市会客厅的中庭院落

△ 组团内的下沉休闲空间
空间的序列关系|Spatial sequence relationship
中国自古就有顺“势”而为的说法,以势建造在建筑设计中至关重要,“势”一方面是地势,另一方面则是人势。在地势上,一是要顺应当地气候,符合当地人的居住习惯;二是要顺应地面高差建造,减少对自然环境的破坏。在人势上,设计对应目标人群的定位,顺应目标人群的实际需求。项目所在原场地地面存在不规则高差,建筑设计在地势上完全顺应了地形的坡度。

△ 剖面图
空间的表现形式|The manifestation of space

在传统江淮建筑的基础上,为了避免建筑的沉闷感,在大片的墙面上开了大片玻璃长窗,使建筑内部变得通透且有变化。
室内|Indoor


△ 大堂吧


△ 客房
总结|New Possibility
俗话说“一方水土养一方人”, 民宿的设计主要是让游客体验独特的当地文化和自然风光,尽管江淮地区建筑受南北两方的建筑影响都很大,存在很多相似之处,但是经过不断地发展江淮建筑也形成了自己的特色,本次乡建项目以江淮民居在地性表达作为切入点,挖掘江淮民居在地性价值,总结设计手法,为江淮建筑设计的发展提供了微薄力量。

△ 施工照片

△ 工作模型

△ 轴测图

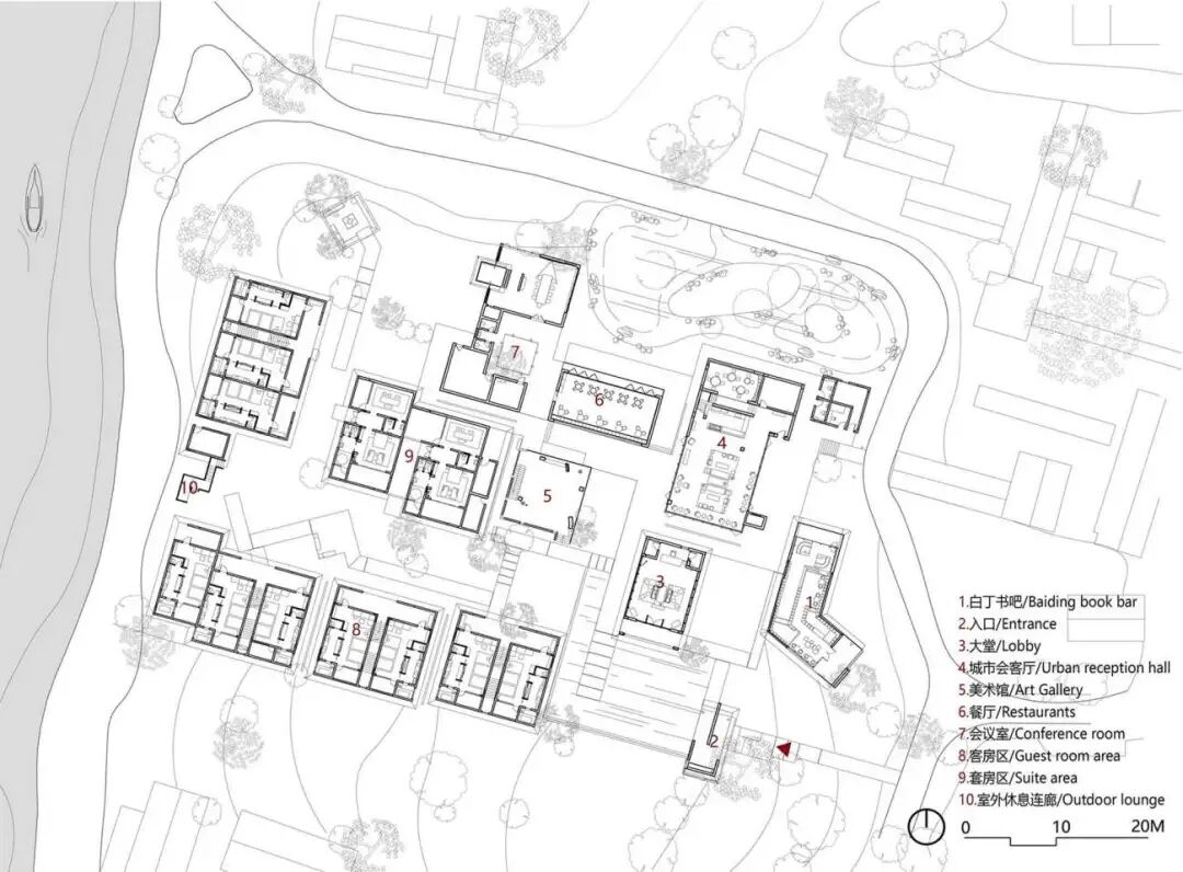
△ 一层平面图

△ 二层平面图
项目名称:圩美村舍
设计方:安徽科图建筑设计院有限责任公司
联系邮箱:308859122@qq.com
项目设计&完成年份:2019年11月-2021年10月
主创建筑师:刘雪丹,曹伟
设计团队:李裕瑶、范光颖、李寅、郭凯玥”
项目地址 安徽省合肥市包河区大圩镇
建筑面积 约3239㎡
摄影版权:任腾
合作方:上海荷丹照明设计事务所
客户:合肥滨湖投资控股集团有限公司
金盘网APP
金盘网公众号
金盘网小程序


