武汉龙湖天玺
本案地处武昌核心区域,临近主干道武珞路。武珞路由西向东串起梅子山、洪山、珞珈山、喻家山,形成城市龙脉。3公里半径覆盖街道口、中南、亚贸三大成熟商圈,中部战区医院、省妇幼保健医院等三甲医院及武大、华师大、武珞路小学、武汉小学等重点学校。
- 项目名称:武汉龙湖天玺
- 项目地点:湖北省 武汉市武昌武珞路武商梦时代旁
- 开发商:龙湖集团武汉公司
- 销售参考价:¥17000/㎡
- 项目类型:住宅
- 形态:大区
- 市场定位:高端系
- 建成时间:2023年
- 风格:现代
- 主力户型:高层 平层 180-210㎡ 4室 2厅 2卫
- 占地面积:52386.52㎡
- 建筑面积: 225299.16㎡
- 容积率:4.3
- 绿化率:29%
- 发布日期:2023-09-06
- 最近更新:2023-12-25 11:49
01
江城核心区位
资源配套全覆盖
武昌区隶属湖北省武汉市,位于武汉市东南部及长江南岸,与汉阳、汉口隔江相望,西临长江,东拥东湖。
本案地处武昌核心区域,临近主干道武珞路。武珞路由西向东串起梅子山、洪山、珞珈山、喻家山,形成城市龙脉。3公里半径覆盖街道口、中南、亚贸三大成熟商圈,中部战区医院、省妇幼保健医院等三甲医院及武大、华师大、武珞路小学、武汉小学等重点学校。

▲区位分析

02
化解复杂现状
点板结合错落围合
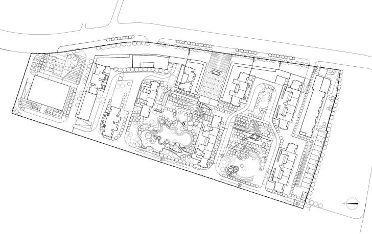
设计从城市发展的宏观角度来理解项目基地,地块定义为城市中心的高容积率多功能复合型社区。由于周边小区密集,场地内外高差较大等复杂现状,前期经过多轮方案层层优化后才锁定了规划的最优解。

▲规划总平
最终方案呈现为点板结合住宅组团,南北朝向的高层与超高层,沿石牌岭路方向,设计8栋建筑高度从80米到170米,形成高低起伏变化,同时通过错落和围合的布局方式形成一个体量相当的中央景观花园,整体呼应周边的城市肌理。


小区引入多重归家动线,车行道布置在西北侧,人行主入口在小区中央景观轴上。通过社区大门、社区客厅、中心花园、绿化组团、单元门厅、专属电梯入户玄关等一系列节点空间,实现归家的专属礼序感。


交通流线设计为人车分流,车库坡道结合商业立面进行整体设计,车行直接就近下地库,避免对内部人行体验的干扰;另外结合场地的高差以及城市公共通道,在地块西侧设置车库出入口平进地库。

03
韵律屋顶线条
重塑城市天际线
由于超高层建筑往往肩负着重新塑造城市天际线的作用,这就对设计提出了更高的要求,需要将建筑所处的地理气候、基地环境、当地文脉、可识别性、象征性这五个方面反应在建筑表皮和形体上。我们通过竖向大线条划分体量,突显建筑挺拔高俊的气势。



竖向线条在头部形成L形收边,高低错落形似游龙。层间线条采用横向线条倒角处理,长短交错,呈现流水般的线条感,赋予建筑灵动的韵律,构成立面的第二层肌理。


基座构图中正大气,横向屋顶飘檐和竖向的屏风和灯带形成对比,突显尊贵感和礼序感,在近人尺度形成价值感和点睛之笔。


建筑底部架空,让景观延伸进首层,并在架空层设置了一系列休闲娱乐设施,为社区提供一处交流和休憩的场所,有健身房、运动场、龙小湖乐园等公共设施。


户型设计为横向展开的“空中平墅”,170米的建筑高度,为住户提供绝佳的瞰景视野。以189户型为例,四房两厅两卫,户型整体方正,采用独立玄关、动静分区、客餐厅一体大开间设计,整体空间的通透性都达到最佳。
主卧、次卧、客餐厅四开间朝南,客餐厅连接南向大阳台,最大化室内采光面,观景视野开阔,每一处都明亮温暖;主卧采用套房设计,步入式衣帽间、标准四件套卫生间等,房间功能开发到极致。

▲189户型平面图
04
反复打磨细节
落地精致豪宅作品
龙湖天玺旨在打造武汉武昌正核心的城市豪宅作品,在落地的过程中,我们对材料搭配精益求精,多次比选,反复打磨;对一体板、金属漆、涂料等进行数次筛选,对比效果。


▲5号楼南立面

▲3号楼南立面
随着材料类型的变更,相应的节点设计也需调整适配,光是立面控制的模型便反复推敲了8轮,整个立面后期配合工作贯穿了从开工到土建完工,多轮的设计打磨是项目品质的保证。


▲入户大门材料大样


▲住宅立面线脚材料大样
天玺项目从方案设计到完工交付,时间跨度接近3年,整个过程漫长且艰辛。这中间需要短期内强大的设计爆发力,但更多地是需要长周期细细打磨、精益求精的匠心和恒心。团队基于城市设计理念下严谨的规划逻辑,从建筑空间到立面表达,多重尺度下的设计打磨,最终呈现出一个高品质的多功能住区。

项目名称:武汉龙湖天玺
项目规模:30万㎡
项目业主:武汉文泓置业有限公司
业主团队:魏毓 张贝 岳婷 王亦丰 王庆辉
毛谦 王洋 张松 郑雄飞
设计时间:2019年12月
完成时间:2022年12月
设计单位:水石设计
工作内容:建筑设计
设计团队:建筑设计三部
照片摄影:高峰
图文编排:水石品牌
工程资料(含设计、工程、材料)
金盘网APP
金盘网公众号
金盘网小程序





