常熟中海佰贤居
本项目打造七个人文社区节点,三处全龄段活动场地、四大主题架空层,将蕴含历史印记的传统符号抽象化,运用现代建筑的表达方式,献礼这座城市,诠释艺术的生活方式。围绕主题概念将七境交汇相融,以山川之名,化情为景,更入深情。
- 项目名称:常熟中海佰贤居
- 项目地点:江苏省 苏州市 常熟市冬青路1号
- 开发商:中海地产
- 设计参考价:¥35/㎡
- 销售参考价:¥24301/㎡
- 项目类型:住宅
- 形态:示范区
- 市场定位:高端系
- 建成时间:2022年
- 风格:现代
- 占地面积:48299㎡
- 建筑面积: 134219.2㎡
- 设计面积:134219.2㎡
- 容积率:1.8
- 发布日期:2023-09-19
- 最近更新:2023-12-28 12:56
本项目位于江苏常熟市文化片区,集文体、教育、商务、居住为一体的、具有文化特色的城市综合片区,有着独特的地理位置,距离上海77公里,距苏州42公里,距无锡47公里。受到大城市辐射的同时,也能够保持与市区的联动。

区位图
地块紧邻东三环路,附近公交车网络密集。周边主干道有:青墩塘路。地块距东三环快速路约50M,沿东三环快速路可直达通港快速路(约5KM),15分钟左右到达市区及常熟火车站。交通便捷,可达性高;周边商业教育资源丰富。

小区分为高层住宅和小高层住宅,打造洋房品质社区。人性化归家动线设计,保障住户的安全。现代风格立面,简约大气,符合当下市场潮流。细节处着力打造,精益建造,打造常熟住宅立面标杆。

总平图

鸟瞰图

设计亮点是什么?
01区位好,西侧临河、三面环绿,绿地面宽100m;
02配套成熟,社区中心、商业服务、就业办公齐备;
03环境好,建筑密度16%的社区环境;
04低密社区,80%楼栋为低层洋房的低密社区;
05日照足,户户朝南、满墙日照>3小时;
06全架空,625㎡的架空层设全年龄段服务设施;
07景观佳,中心庭院与组团庭院层次丰富。

高性价比的户型实得、人性化的产品设计、舒适的归家体验、典雅的立面设计受到市场的认可。








实景照
其他项目图纸:




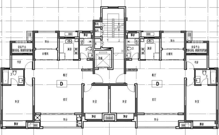
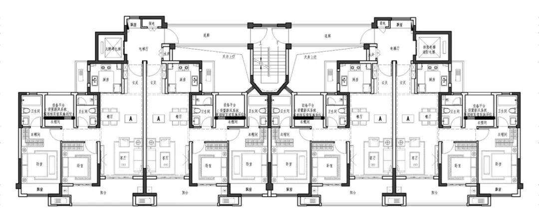
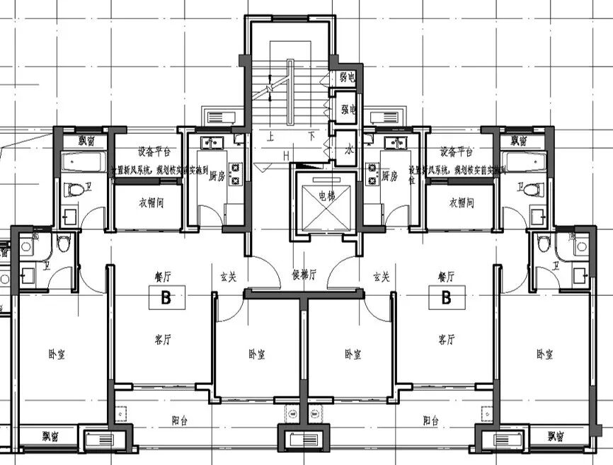
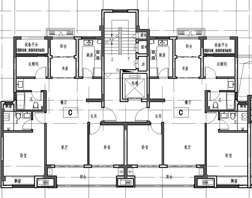
户型图
金盘网APP
金盘网公众号
金盘网小程序




