常州保利景玥府
本项目立面采用现代中式的立面风格,汲取常州古建筑的材料运用手法,飞檐等建筑构件元素,以及立面的比例和序列感,通过建筑体量的错落及细节的刻画,充分展现常州运河文化。
- 项目名称:常州保利景玥府
- 项目地点:江苏省 常州市 天宁区劳动东路854号
- 开发商:保利置业
- 设计参考价:¥35/㎡
- 销售参考价:¥24710/㎡
- 项目类型:住宅
- 形态:示范区
- 市场定位:高端系
- 建成时间:未完工
- 风格:现代
- 占地面积:94290㎡
- 建筑面积: 226722㎡
- 设计面积:226722㎡
- 容积率:1.8
- 发布日期:2023-09-19
- 最近更新:2023-09-22 11:09
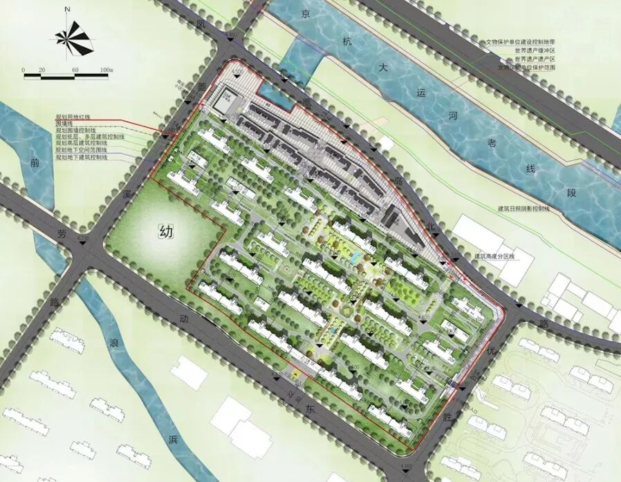
项目地块位于常州市主城区天宁区,北侧为凤凰岛北路,东侧为优胜路,南侧为劳动东路,西侧为菱溪路,北面紧邻京杭运河。交通便利,景观资源优渥。

区位图
项目基地是城市核心板块规划重点打造,毗邻城市快速路和轨道枢纽,交通便捷,靠近景观公园,地理条件得天独厚,周边配套资源丰富,城市配套日趋成熟,是稀缺土地资源。

交通分析
规划布局上,以轴线对称的方式打造仪式感的多层级规划空间,打造常州运河旁标杆水岸社区。地块南侧为高层住宅和洋房,北侧是特色古韵商业街道。高层住宅东西向布局,结合区位的地理特点及客户群体产品定位给出合理的规划方案,使其建设成为现代宜居城市社区并带动周边地区的发展。
建筑单体与周围建筑相协调,创造方便、舒适、优美的生活居住空间。北侧高层住宅布局考虑运河天际线的变化。结合北侧商业布局,灵活组织开放空间形态,创造一流的住区外部空间形象及景观趣味。

总平图

鸟瞰图
小区出入口人行及车行出入口设置在劳动东路及优胜路。主要出入口处结合景观节点设计,提升小区形象与品质。

景观设计中,创造更加丰富的空间节奏,步移景异,形态自然,并且充分利用基地资源,创造优质人居环境,为居住者赢取空间、建筑、景观与生活四者充分交融的宜居社区。


实景照
组团内部,以一系列具有强烈序列感的景观,将人引致每个单元门厅处。景观结合基地资源,遍植绿树,以水体点缀空间,以植被映衬建筑。高层单元首层均设有入口门厅,迎接单元内的住户,并为住户提供尊贵品质的物业服务。



实景照
“创造一种新的生活方式,引领一种新的生活风尚,打造一种新的生活维度”,室内设计设计注重将人文自然景观与室内环境融为一体,营造自然舒适的居住体验。



实景照
强调空间的多功能性,提倡家具产品附加多种使用功能以最大化空间利用率。在“雅奢都会”为风格基调下,我们将艺术美学融入日常生活,传递至空间的每一处,呈现出一个造型简洁、精致低奢的艺术空间,真正地给居者带来幸福感与舒适感。



实景照
其他项目图纸:




户型图
工程资料(含设计、工程、材料)
材料及其应用场景
石材
石材
石材
石材
玻璃
玻璃
玻璃
玻璃
涂料
涂料
涂料
涂料
金盘网APP
金盘网公众号
金盘网小程序




