南京 伟星 · 誉璟府
南京,一个中国古典文化与风雅大都市文化的代表城市。DIA的新项目位于南京中心秦淮区。设计师将这里独有的秦淮风貌和南京的深沉气质,糅合于国际现代都市风格调性中,将伟星地产这个地面与地下2层的会所空间有机链接,打造出兼有现代外相和传统精神的展示兼休闲空间。
服务范围:地产开发-住宅
销售参考价: 55699 元/平方米华东地区售楼空间
入围项目
- 项目名称:南京 伟星 · 誉璟府
- 项目地点:江苏省 南京市 秦淮区伟星誉璟府
- 开发商:伟星置业
- 销售参考价:¥55699/㎡
- 项目类型:住宅
- 形态:示范区
- 市场定位:改善系
- 建成时间:2023年
- 风格:现代
- 占地面积:29533.86㎡
- 建筑面积: 76788.04㎡
- 容积率:2.6
- 绿化率:30%
- 发布日期:2023-09-20
- 最近更新:2023-12-25 11:26

“在这个项目中,我们把室内作为开放景观的一个延伸维度,它通过体积而不是平面被感知。1F、-1F会所以同频的建筑语言在各个维度上进行叙事,与空间的光、材料、触感产生共振。”
——薛峰
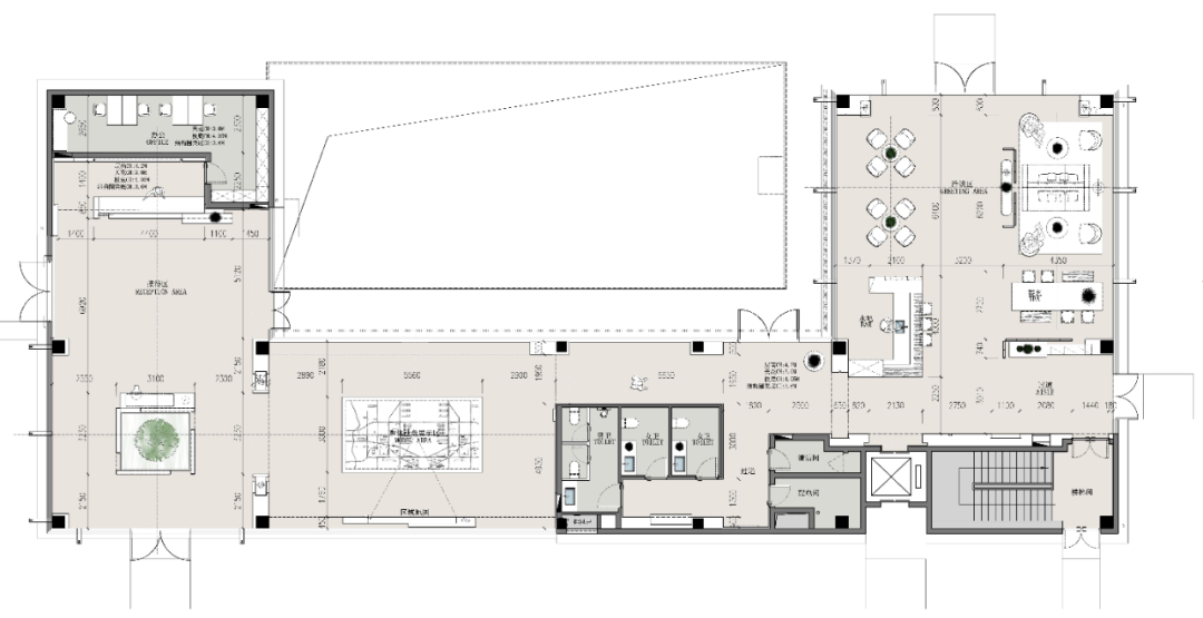
南京,一个中国古典文化与风雅大都市文化的代表城市。DIA的新项目位于南京中心秦淮区。设计师将这里独有的秦淮风貌和南京的深沉气质,糅合于国际现代都市风格调性中,将伟星地产这个地面与地下2层的会所空间有机链接,打造出兼有现代外相和传统精神的展示兼休闲空间。 Biophilic design - at one with nature 亲近自然的设计 在此项设计中,设计师将整个1F及-1F会所空间被设想为一个多面解构的盒子。通过体块的分割、轴线构成和内外空间重组,将上下两层融合为统一的业主公共空间。设计注重平衡虚空间和实体空间,寻求室内与室外景观最大程度的融合,让光线大面积深入室内,用光和影共同标记出室内的节奏。 ▽1F售楼处层平面 我们在参观的起始点入口接待区域,接待台的对景处引入了玻璃盒子与景观树,作为一个引人注目的视觉焦点。空间与自然物的结合,激发人们对空间的好奇心,揭示了设计的主题。











▽效果图
利用结构柱和落地玻璃窗构成的节奏感,引导并规划出一条融于自然景观中的长廊,安置项目模型并连接1楼的各功能区域。


洽谈区将南京深沉气质,糅合于国际现代都市风格调性中,打造独具一格且兼有西式外象的国际化精神场所,创造具有艺术酒店大堂氛围的洽谈区。
Inviting the outside inside 邀请室外进入室内 步移景异,正式进入会所前的过厅设计以简洁自然的光影效果为特点,穿插其间的廊柱结构与屏风不仅用来界定空间节奏,更是光线的导引者。金属、木材与石材的组合赋予空间现代优雅和奢华的质感,营造出开放而内敛的氛围。 ▽-1F会所层平面 屏风与光线的互动,为整个过厅增添了层次感与动态美。在这个静谧而又充满活力的空间里,光与影、材质与功能交织,过厅打造出一个真正引人入胜的前奏,为整个地下会所的体验拉开了序幕。 ▽效果图 阅读沙龙区,成为古典与现代艺术的完美交织之地。在这里,色彩、情感与空间紧密交融,共同构筑出一个引人入胜的休闲阅读场所,勾勒出高雅的文化情调。物质空间被亲人尺度的软装消解、并重构秩序,形成开放流动的空间体验。温暖的调性与柔和的光线共同创造出一种宁静的氛围,让人们远离尘嚣,沉浸于阅读的乐趣之中。这里的色彩不仅仅是视觉的享受,更是一种情感的共鸣,让人们在安静的角落感受到内心的宁静。最终在古典与现代在情感的调和下相互映衬,为会所带来了独特的文化内涵。 ▽效果图 茶道的设计灵感源自于中西美学的巧妙结合。古朴、典雅和开放的空间连接了各种功能,创造了内部生活区域的自然延伸。 ▽效果图 ▽效果图




















































业主单位:伟星房产--南京星南房地产开发有限公司
项目位置:江苏省南京市秦淮区神机营路
设计范围:售楼处 会所 样板间 公区
主创设计:薛峰
设计团队:王君明 陈阳超 朱晓鸥 何廷武
软装设计:谈翼鹏 林理忠 文惠敏
完成时间:2023.05
摄影负责:鲁哈哈 陈阳超
工程资料(含设计、工程、材料)
金盘网APP
金盘网公众号
金盘网小程序




