深圳金地峰境瑞府
项目位于深圳市光明中心区,深圳全境地势东南高,西北低,依山临海,基于场地条件,地块西南角成为展示中心和前期体验区的最佳的城市接驳点和人流导入点。
服务范围:地产开发-住宅
销售参考价: 48000 元/平方米- 项目名称:深圳金地峰境瑞府
- 项目地点:广东省 深圳市 光明区金地峰境瑞府
- 开发商:金地集团
- 销售参考价:¥48000/㎡
- 项目类型:住宅
- 形态:大区
- 市场定位:刚改系
- 建成时间:未完工
- 风格:现代
- 主力户型:高层 平层 120-144㎡ 3室 2厅 2卫
- 占地面积:70000㎡
- 建筑面积: 250000㎡
- 容积率:3.5
- 绿化率:40%
- 发布日期:2023-09-27
- 最近更新:2023-12-25 10:21

山之型·峯之汇
深圳金地峯汇·峰境瑞府

项目位于深圳市光明中心区,深圳全境地势东南高,西北低,依山临海,基于场地条件,地块西南角成为展示中心和前期体验区的最佳的城市接驳点和人流导入点。

建筑师提取“峯汇”二字的独有气质,与这座 “山海”之城特征相结合,提出“山之型、峯之汇”的独特概念,突出建筑的雕塑感与力量感,力图打造出展览建筑应有的特质。


建筑形体利用几何构造的美学理论,以三角形为母题做出几何变化,让建筑形体与场地环境形成较为犀利的几何构图关系,在有限的场地之中营造静谧且丰富的空间游览体验。

▲场地空间演变过程

我们希望在展示区打造一种空间序列,让游览成为一个愉悦的探寻过程。作为空间的起点,“星空游廊”让游览者进入建筑与景观界限模糊的空间。从城市道路的视点出发,舒展的游廊让整个沿街界面进行横向延伸。


狭长连廊将游览视线限制在一定范围内,在到达“山海之境”时豁然开朗,使其成为空间序列的高潮。


富有几何美学的展示中心,以其尖锐棱角和巨大雕塑感的实体,被隐喻为“山”,镜面水池与玻璃体块交相呼应,则被隐喻为“海”。通透的玻璃体块和镜面水池与雕塑感极强的实体形成强烈的对比关系。



“静谧后院”是建筑内外交融的空间。建筑洞口与外部庭院映衬,形成框景;同时将外立面的材质肌理延伸至内部通高空间的螺旋楼梯中,将自然光漫射至整个地下中庭,与之形成奇妙的光影关系,渗透至各层展示空间。




作为永久性建筑,项目在后期运营中将承担光明博物馆的展示功能,因此建筑整体形象在构思之初就以“自然、朴素、厚重、纯粹”为风格特性,不同于以往大多数示范区所流行的表皮与肌理营造。


通体泥客石的建筑材质选用,与少量的玻璃元素穿插,使建筑本身形成尖锐、简约又具有显著几何形态的造型。这种极富张力的二元性既诠释了山脉与海岸的地理寓意,又极具昭示性。


整个建筑的颜色以灰白色为主色调,其他颜色均加以“灰度”进行搭配,以此来体现建筑整体“纯粹、自然、本源”的气质,整体色调在不同光影映衬之下,给人一种自然静谧的场所感。



展示中心主体材质选用大面积的灰白色泥客石,通体灰白色的泥客石给建筑赋予更为整体的感受,甚至将这种材质延伸至建筑内部,来营造建筑向室内的空间延续。


星空游廊在架空部位选用了大面积点釉玻璃幕墙,不锈钢材质的几何形挑檐承托着上部通透的玻璃,与展示中心主题相辅相成,内部选用金属星空吊顶,在不同的时间产生不同的光影变化,丰富游览体验。





建筑形式的个性决定了该项目需要建筑师与室内专业高度协同,共同营造整个建筑气质。为此建筑师在设计之初就结合场地特点及室内功能,对建筑平面进行较为深入的规划。
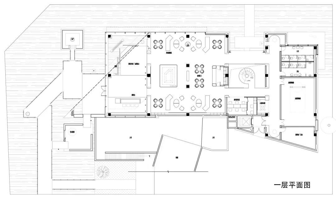
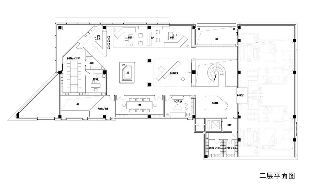
<< 建筑平面图,滑动查看下一张图片 >>
设计将三角形几何主体运用于场地设计和室内平面当中,并将这种几何构造的美学通过空间的延伸,使其反映于建筑立面,实现表里如一的内外空间。




项目名称:深圳金地峯汇·峰境瑞府
项目规模:示范区1950㎡/大区198000㎡
建成时间:2020年12月(示范区建成,大区在建)
项目类型:售楼中心
工作内容:规划建筑设计
业主单位:深圳市五二九七投资发展有限公司
金地集团开发管理公司(受托管理方)
设计单位:水石设计
设计部门:建筑设计八部
室内设计:无间设计
景观设计:深圳市贝森豪斯设计有限公司
照片摄影:胡义杰
编辑排版:水石品牌







工程资料(含设计、工程、材料)
金盘网APP
金盘网公众号
金盘网小程序





