福州那迪广场
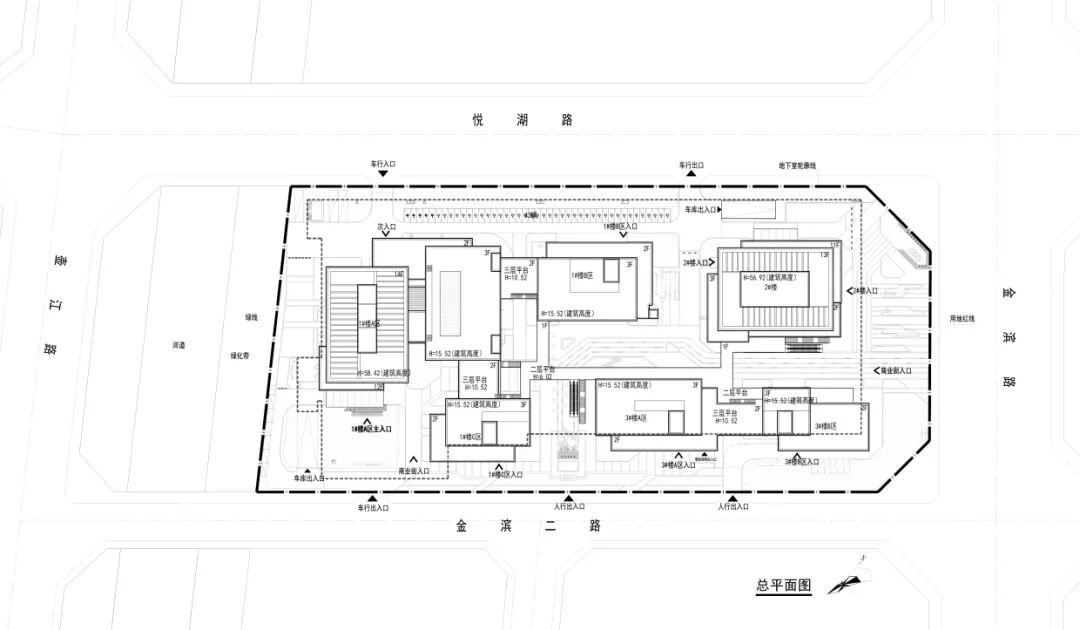
项目用地位于福州滨海新城,用地面积为29634平方米,总建设面积为73137平方米,其中地上面积为53290平方米,地下面积为19847平方米,容积率为1.8。主要功能包括写字楼(12层)、酒店(14层)、独栋办公楼和商业(3层),建筑最高点为59.75米。设计师通过水平错动的体...
服务范围:地产开发-商业
销售参考价: 价格待定华南地区写字楼
入围项目
- 项目名称:福州那迪广场
- 项目地点:福建省 福州市 长乐市长乐区文武砂街...
- 开发商:福州滨海临空开发建设有限公司
- 项目类型:商业
- 形态:大区
- 建成时间:2022年
- 风格:现代
- 占地面积:29634㎡
- 建筑面积: 74000㎡
- 容积率:1.8
- 发布日期:2023-10-10
- 最近更新:2023-10-10 14:57




设计师通过水平错动的体块,营造富有科技感和未来感的建筑意向。二层的平台将几栋独立建筑串联一起,形成现代企业办公的“智慧云台”空间,为互联网企业之间提供共享与合作平台。



商业街区朝向城市开放。设计师以当下互联网为载体,布置无人零售、新科技餐厅、黑科技零售等业态,形成具有互联网特色的商业步行街。


场地西南角与东北角形成的两个广场,为高层办公、酒店人员提供人流集散场所,同时设计师通过商业街将两个广场串联起来,形成首尾相连的完整的商业动线,为使用人群提供丰富的空间体验。此外,设计师还将地面绿化通过体块错动形成的平台逐层引导向屋顶,形成层次丰富的渗透绿化系统。


项目的设计通过建立互联网科技与产业配套的关系,树立城市商务会客厅形象,以服务会展中心及大数据产业园为核心驱动,提升整个区域站位及影响力,加速区域成熟、升级城市价值,打造以酒店、办公及配套商业为载体的地标级区域配套项目。

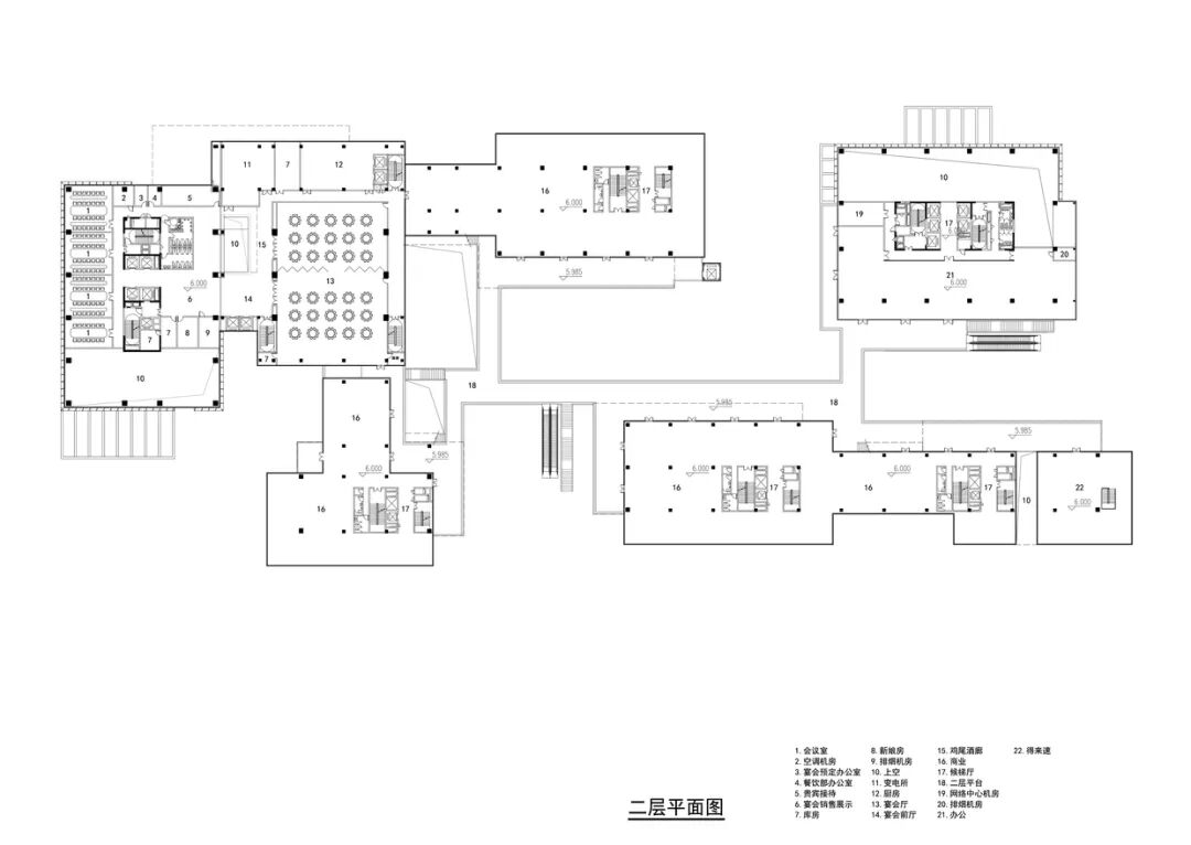
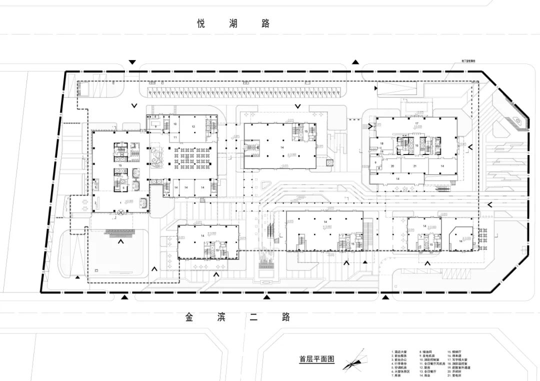
设计图纸 ▽












金盘网APP
金盘网公众号
金盘网小程序


