深圳中海·学仕里
基地位于深圳市龙华区中心地段近深圳北站与地铁4/6号线,交通便捷周边配套设施完善项目紧邻深圳高级中学北校区本案将延续这抹浓厚的文化气息打造一个充满文化底蕴的学府雅居场地西侧为城市主干道新区大道,具有最佳形象展示面的条件。从规划角度考虑,首开区选择在场...
服务范围:地产开发-住宅
销售参考价: 82100 元/平方米广东地区预售楼盘
入围项目
- 项目名称:深圳中海·学仕里
- 项目地点:广东省 深圳市 龙华区民治街道新区大...
- 开发商:中海地产
- 销售参考价:¥82100/㎡
- 项目类型:住宅
- 形态:示范区
- 市场定位:刚改系
- 建成时间:2023年
- 风格:现代
- 主力户型:高层 平层 90-120㎡ 4室 2厅 2卫
- 占地面积:16652.31㎡
- 建筑面积: 105856.02㎡
- 容积率:4.6
- 发布日期:2023-10-26
- 最近更新:2023-12-22 12:17

学仕里旨在打造一个书香浸润的学府雅居
以文化为触点,将书卷气息融入精工匠艺
乘人文之厚,借生态之美
利用现代手法对传统美学进行再设计
演绎艺术与自然的共融
希望这里是一个独具温情的人文之所
也是一个探索书香文化本源之地
01
项目概况
—
基地位于深圳市龙华区中心地段
近深圳北站与地铁4/6号线,交通便捷
周边配套设施完善
项目紧邻深圳高级中学北校区
本案将延续这抹浓厚的文化气息
打造一个充满文化底蕴的学府雅居

场地西侧为城市主干道新区大道,具有最佳形象展示面的条件。从规划角度考虑,首开区选择在场地西南角。首开区用地面积仅有2531㎡,由主入口与幼儿园两部分组成,同时新区大道与场地之间存在5m高差。在此限定条件下,如何在有限用地内营造丰富的空间?如何平衡竖向、动线之间的关系?如何打造形象展示面?是此次设计重点。
02
书香演绎
—
设计之初,我们从传统文化中获取灵感
将“书卷” 等文化气息浸润到立面及场景之中
演绎诗意生活,延续学府气息

△ 设计生成
03
启卷归心
—
形象展示面以主入口为中心
整体强调水平舒展形象
超大尺度雨篷拓展横向视觉感受,增强入口昭示性
设计贯穿文化内核,以书卷为引
将首层两侧景墙层层退让,犹如书卷展开姿态

△ 主入口实景图

△ 主入口实景图

△ 主入口尺度
主入口利用场地内凹形成引导性灰空间
小尺度自然庭院介入,山水庭院与人文礼序相结合
打造出诗意的学府雅居

△ 主入口以规整的中轴对称布局,带来仪式感与尊崇感

△ 主入口空间作为一个仪式体验空间,从喧闹环境过渡至静谧空间
进入前场
屏风与水景成为建筑的视觉焦点
镂空金属屏风巧妙的模糊了边界,形成半透效果
通过光影变幻,让人感知时光的痕迹

△ 主入口实景图

△ 主入口实景图

△ 主入口实景图

△ 屏风成为建筑的软化界面

△ 一米阳光倾泻而下,追寻水的音律,探索光的艺术
步入府门,空间收束
通过“T”形雨篷,自然切分出两侧景观庭院
联动内外,相互渗透
由大尺度过渡至小尺度空间,营造轻松氛围

△ 雨蓬实景图

△ 树干延伸至天空,给人一种春意焕然的感觉
雨蓬底部以星为光的照明
在光影浸染下亦是给入口空间增添灵动性

△ 雨篷底部实景图

△ 雨蓬底部实景图
04
书香入境
—
通过电梯到达花园层,泳池映入眼帘

△ 花园层泳池实景图
拾级而下,寻山问水
空间转换之间,开启人与环境的有机互动关系
户外公共空间与建筑紧密相连
将主入口,洽谈区,样板房串联起来
打开沉浸式自然生活体验

△ 花园层庭院

△ 花园层庭院
05
墨卷至恒
—
行走至幼儿园入口
超长入口雨篷与主入口形成统一的语言
户外提供了一个公共开放的洽谈平台
开放的空间融合环境,使得人文精神在绿意中自然流淌
对未来学府生活场景写意还原

△ 幼儿园展示期间实景图

△ 幼儿园半鸟瞰
幼儿园前期作为形象展示一部分
我们希望通过双重身份来寻找两者之共性
通过提取“书”的元素运用于立面上
整个建筑犹如三本书籍堆叠于场地之中
即呼应了场所气质,又对我们脑海里的意向载体“书卷”进行完形

△ 幼儿园沿街效果图
06
精工细控
—
为了保证项目的品质以及视觉效果,对入口屏风格子疏密变化、雨篷底部穿孔铝板孔洞大小进行多轮推敲,最终选择合适尺寸,使项目整体达到预期效果。

△ 屏风节点详图

△ 入口屏风细节实景图

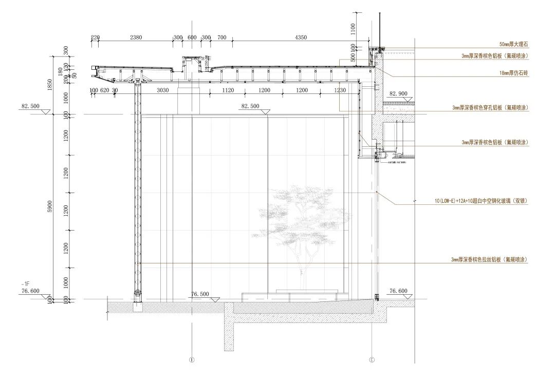
△ 雨蓬底部穿孔铝板推敲过程,最终选择孔距40mm,孔径20mm
—

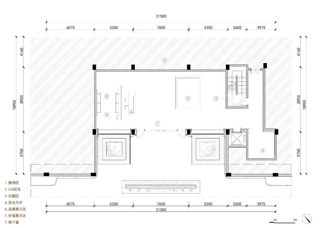
△ 主入口首层平面图

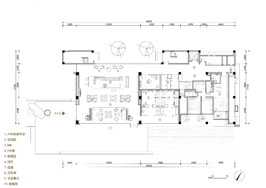
△ 主入口泳池层平面图

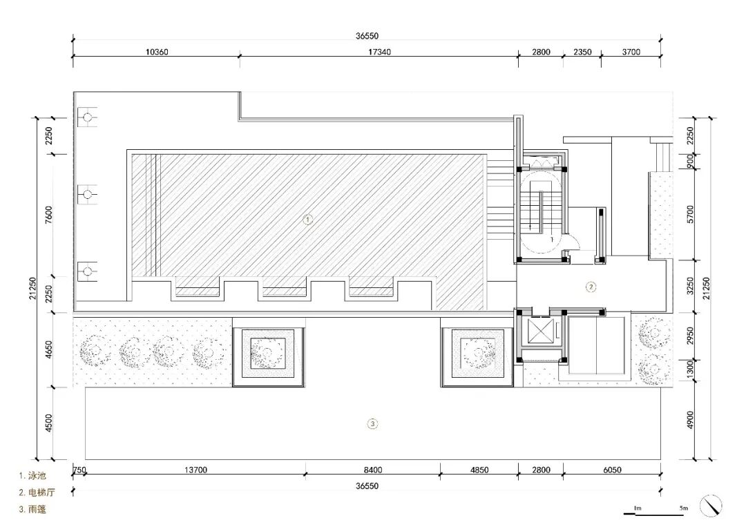
△ 售楼期间幼儿园首层平面

工程资料(含设计、工程、材料)
金盘网APP
金盘网公众号
金盘网小程序




