深圳保利招商·雍山郡花园
以空间为容,重塑场所精神。UMA伍玛设计将“艺术融入空间”为设想,付诸于保利招商·雍山郡花园的售楼处设计,以“美术馆”概念承载诗与自然的合鸣,用简约纯粹的设计语言,碰撞当代艺术的线性之美,与时代碰撞的美好生活发生场。
服务范围:地产开发-综合楼盘
销售参考价: 价格待定华南地区年度售楼空间金奖
- 项目名称:深圳保利招商·雍山郡花园
- 项目地点:广东省 深圳市 龙岗区龙岗街道龙凤路...
- 开发商:保利置业
- 项目类型:综合楼盘
- 形态:示范区
- 市场定位:刚需系
- 建成时间:2022年
- 风格:现代
- 设计面积:500㎡
- 容积率:5.2
- 地块:市区
- 发布日期:2023-11-30
- 最近更新:2023-11-30 13:57

鸟瞰图

总平面图

区位图

规划图

区位图
汇·城市寄意


© 概念示意图
UMA DESIGN
艺术X人文
—
深圳,一座背靠海岸线的浪漫都市,从滨海渔村,到如今的开放之都、世界窗口,急速城市化浪潮催生着其空间格局的急速转变,深圳的包容并蓄、开拓创新,实际上也蕴藏着深厚的艺术文化细胞。

以空间为容,重塑场所精神。UMA伍玛设计将“艺术融入空间”为设想,付诸于保利招商·雍山郡花园的售楼处设计,以“美术馆”概念承载诗与自然的合鸣,用简约纯粹的设计语言,碰撞当代艺术的线性之美,与时代碰撞的美好生活发生场。
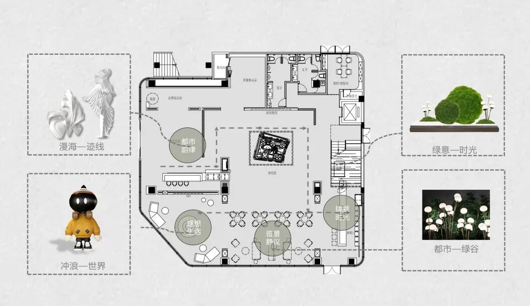
漫海·迹线


设计师有意模糊空间的边界,用简洁留白的空间秩序与艺术语言,抛却具象空间对思绪的禁锢,转而以轻盈且空灵的纯净笔法,赋予空间生命力与当代感,营造出如美术馆空间般简约、纯粹的艺术氛围。

© 漫海—迹线(右下图为概念示意图)
艺术的无界反衬内在世界的丰富,水墨纹理的大理石接待台以浑然一体的姿态进入视野,半透明的玻璃砖结合金属材质的穿插,虚实相交,演绎雅致与美的哲学智慧,体现出对空间的微妙铺叙中,呈现出对艺术边界的写意与延展。


移步异景,一股海浪的气息扑面而至,造型线条介于抽象与具象之间,流动的姿态恰如深圳蜿蜒柔美的海岸线,用有形的形体来诠释内在无形的节奏,涌动着的线条张力,诉说着返璞归真的空间哲学,演绎无声的韵律与浪漫。



过去与未来在此相遇,空间更像是一种媒介,给人们带来视觉的冲击力与不期而遇的惊喜。隔而不断的墙体结构,空间规划关联而又独立,搭配灵动的绿植让空间变得隐约而自然,于自由中包含秩序感的空间尺度,亦如深圳这座城市的精神,进一步体现项目自身的包容性与共享性。
-
肆意时光

色彩上,大面积的留白;材质上,将硬装材料勾兑空间的主场,金属、石材,保证材质感的延续;空间占有上,沙盘成为视觉聚焦而存在的艺术装置,沙盘上方,不设吊灯,使空间本身的结构被极致展现。



时光的静止与流动,为空间书写诗意。在光影的勾勒下,沙盘转换空间,以干净素雅的底色聚合情绪,组织空间节奏,为转入后场提前铺设。



奇妙味蕾体验
咖啡+烘焙主题体验区
COFFEE & ROASTING
一杯咖啡,落座其间,都市中的慢生活弥足珍贵。摒弃浮躁喧嚣,作为一个将潮玩、艺术、烘焙、咖啡交织成一体的多维互动体验空间,设计师突破传统售楼处概念,来契合社区生活的多元体验场所,通过设计引导人们主动形成交流共享的模式,保障后续空间的可持续性运营。
理想生活





行至洽谈区,整面的落地窗将室外的景色一览无遗,递进的空间层次关系,简约中不失气质,将美的理解根植于感性之中,营造出一种心自旁灵的精神意境,契合自然的美好。


设计师保持空间叙事的逻辑,咖橙色加重空间进深感,将独自漂泊城市的心包裹其中,时刻营造着安全感。细节将品质感与艺术性娓娓道来,自然的人文关怀静静流淌,以回归本真的方式,演绎对生活的礼赞。
Art Wave Play
艺术文创展示
空间需要依附情感流动。设计的意义不在理性的确证,不在于极致地迎合市场审美,亦不需要堆砌的文化元素,空间最重要的是去承载那些心灵深处细腻、柔软和隐秘的情感或诉求。
-


总平面图


户型图
工程资料(含设计、工程、材料)
材料及其应用场景
大理石
大理石
大理石
大理石
大理石
皮革
皮革
皮革
皮革
皮革
不锈钢
不锈钢
不锈钢
不锈钢
不锈钢
木饰面
木饰面
木饰面
木饰面
木饰面
玻璃
玻璃
玻璃
玻璃
玻璃
金盘网APP
金盘网公众号
金盘网小程序









