龙湖长沙 · 天心云河颂
犹如一首未完的诗篇,踏入门厅的每步都在细腻地描绘着精神的轮廓,让归家的旅程成为一场精神洗礼。
- 项目名称:龙湖长沙 · 天心云河颂
- 项目地点:湖南省 长沙市 天心区天心省政府天心...
- 开发商:龙湖集团
- 项目类型:住宅
- 形态:示范区
- 市场定位:高端系
- 建成时间:2023年
- 风格:现代
- 主力户型:高层 平层 180-210㎡ 4室 2厅 3卫
- 占地面积:1510㎡
- 建筑面积: 1510㎡
- 设计面积:1510㎡
- 容积率:3
- 绿化率:35%
- 发布日期:2023-12-29
- 最近更新:2023-12-29 15:43


犹如一首未完的诗篇,踏入门厅的每步都在细腻地描绘着精神的轮廓,让归家的旅程成为一场精神洗礼。



“芙蓉花与斜面山丘”,时光在屏风与屋檐间流转,传递着对生活的敬意与热爱。无论是在深夜还是清晨,大堂总是亮着温暖的灯光,等待着归家的人。每处细节都充满了关怀和温情,诉说着家的故事。


约60米的展面宛如林间叠水形成的森岛长轴,将城市的繁华与自然的静谧完美融合。光影交错中,城市的轮廓被巧妙地勾勒出来。色彩的交响乐章,在木饰面和金属漆的光泽与丝滑中演奏,每个音符都充满奢华感;细节的装饰,则如点睛之笔,将整体空间提升至另一层次。


光与影的交错,物与人的交融,艺术与生活的交汇,都在沙盘区里得到了完美的诠释。这是一个让人重新认识城市、重新理解生活的艺术空间。


明暗成趣的瑰丽诗意空间,亦是后期实体会所的行政酒廊空间。

由单一水晶元素重复、有序排列串联而成的艺术灯具装置,纯粹而神秘。每次光源的触动,宛若星星在夜空中闪烁,洒落一地的璀璨光芒;亦如林中的精灵,轻盈而妩媚。


光影的微波,如同大海的浪花,优雅地起伏。在这韵律之中,让人感受到生命的律动。


在宽敞的空间中,沙发静静地端坐,它不仅是家具,更是时间的守望者。它宽大而柔软,像一个温暖的怀抱,等待着人们的到来。

每当疲倦的身体依偎在它的怀抱中,一种从未有过的舒适感便会从心底升起,仿佛整个世界都变得安静起来。

每个物件,每面墙壁,都似乎在低语,讲述着一个又一个关于尊贵与荣耀的故事。历史与现实的交织,在这里呈现出一种沉甸甸的厚重感,让人感到自己的存在被深刻地影响着。



这是一个让人感到舒适、愉悦、满足的空间,是一个让人深深感受到艺术与生活相互交融的空间。

纯天然的苔藓在空间中生长,静谧中又富有格调,不断挑动着参观者的情绪。

这个茶室,以独特的方式将自然与人为、古老与新颖、传统与现代完美地融合在一起,是一个蕴藏着城市精神文明的场所。


澈亮而华丽的水波纹玻璃、翠谷幽兰自然奢石,将整个空间映照得更加高雅与别致。



四周的对称造型及壁灯,如同星星点点的萤火虫,以独特的方式引导着我们的视线,感受到一种连贯而通透的视觉效果。


在这个温馨的空间里举行私宴,主人与客人共享美食,分享着彼此的生活与情感。畅谈人生、品味生活,让每一次的相聚都成为了一段美好的回忆。


餐厅的背景墙错落有致,仿佛一幅巨大的画卷,记录着居者的生活点滴和每次的欢笑与感动。在这背景墙的衬托下,每次的私宴都充满了庄重与仪式感。



天花板和地面都敷上了温暖的原木色,让人体验到大自然的包容与舒适。运动时,阳光透过宽敞的落地玻璃,洒下温暖。而眼前,则是庭院中葱郁的绿植景观,一片生机勃勃的翠绿,仿佛是运动的最佳伙伴。德国NOHrD-诺德霍恩的高规格木质健身器械引入了新的视觉元素。这些器械,每件都像是艺术家的杰作,充满了设计与工艺的美感。它们不仅是健身工具,更是生活艺术的体现,为这个空间增添了一种独特的魅力。



体块与节奏相互牵引,引领着人们在光线的变幻中穿越。光线,如同一位神奇的魔术师,通过巧妙的变换,制造出一种虚实互补的模糊边界,使得这个空间充满了神秘与诗意。

几何的线条和凹凸感,通过金属、木饰面与自然奢石材质的相互碰撞,激荡出一种别样的韵味。

恒温泳池充满了秩序感。这种秩序感并不是冷酷的、机械的,而是带着一种温情与和谐。直线与平面的交接处,曲线自如地延展,如同生命的脉搏,透过优雅的弧度和转折,让整个空间跳动着,仿佛可以触摸到生命的韵律。

这里不仅仅是一个游泳的地方,更是一个让人心灵深处得到触动的地方。

△ 效果图



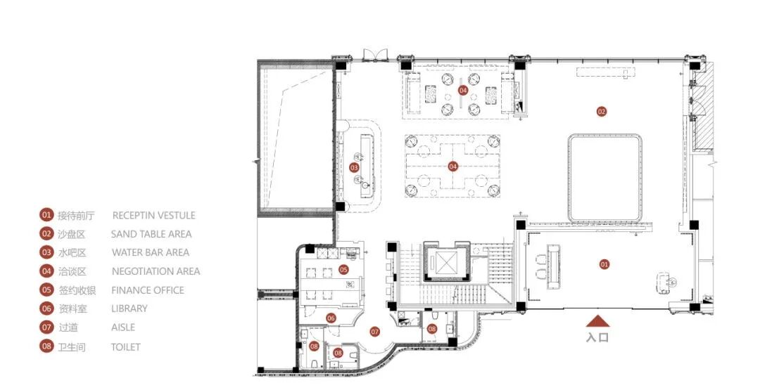
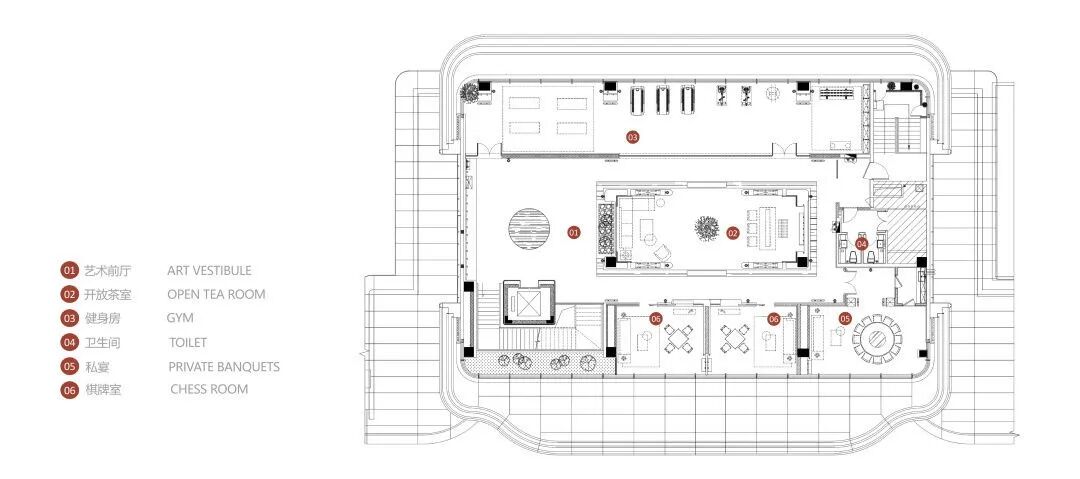
△ 负一层平面
项目信息
Information
━
项目名称 | 龙湖长沙 · 天心云河颂
项目业主 | 龙湖集团长沙公司
甲方团队 | 长沙龙湖研发团队
项目地址 | 中国 · 长沙
项目面积 | 1510㎡
竣工时间 | 2023年8月
空间设计丨NNS DESIGN 纳沃设计 (深圳)
软装设计丨DAS大森设计
摄影团队 | 感光映画
金盘网APP
金盘网公众号
金盘网小程序


