北京I DO艺术家店
北京IDO艺术家店的设计融合了意大利著名艺术家劳瑞斯·切克尼(LorisCecchini)的雕塑作品和创新设计工作室非静止建筑(AntistaticsArchitecture)的建筑与空间设计。空间创造了流动性、干扰性和连续性的动态表达之间的协同作用。
- 项目名称:北京I DO艺术家店
- 项目地点:北京市 北京市I Do(朝阳大悦城店)
- 开发商:恒信钻石
- 设计参考价:¥1000/㎡
- 项目类型:商业
- 形态:大区
- 建成时间:2020年
- 风格:现代
- 设计面积:550㎡
- 容积率:3
- 发布日期:2024-04-07
- 最近更新:2024-04-07 13:56
© 史云峰
北京I DO艺术家店的设计融合了意大利著名艺术家劳瑞斯·切克尼(Loris Cecchini)的雕塑作品和创新设计工作室非静止建筑(Antistatics Architecture)的建筑与空间设计。空间创造了流动性、干扰性和连续性的动态表达之间的协同作用。
© 非静止建筑
© 史云峰
建筑与空间进一步借鉴了中国传统的浪漫、“你中有我,我中有你”的关系和相互依存的理念,创造了一种力量感和统一感,同时也崇尚个性和多样性。三个主要的设计元素:画框、流动介质、在不同的尺度上相互作用,统一了空间,同时创造了一个通过旗舰店艺术空间庆祝视觉与形态美学的时刻。
© 非静止建筑
© 非静止建筑
贯穿整个项目的概念与视觉形态美学相辅相成,这些视觉符号与自然起源和有机的运动有着密切的联系,并转化为具有雕塑性的元素。一系列的运动现象美学:液体的流动与声波的循环呈现在空间的墙体及“天与地”。 镂空与流动的水波纹不仅用来表达液体的性能,而且总是出现两个焦点之间的相互交织渗透,象征着代表I Do品牌“你中有我,我中有你“,相互依存又各自独立的爱情。
概念分析
© 史云峰
© 史云峰
波浪与震动产生的不规则液体的造型在白色的空间表面上浮动着,同时在光环境的控制下折射着不同的光线。建筑的室内与室外都受到这一运动形式的影响,使整个空间成为液体,它激发着观看者的感官。
© 史云峰
© 史云峰
© 史云峰
© 史云峰
I Do x Loris Cecchini 艺术家店的建筑立面以一种简约“画框”的方式, 作为一种提供”画布”的方式去体现艺术家Loris Cecchini 标志性的水波纹及生长的装置效果。晶莹剔透的“画框”勾勒出立面的转折与层次,弯曲形成圆角,并折叠形成入口的台阶,并通过入口形成一个连续性的延展造型。
© 史云峰
© 史云峰
© 史云峰
“画框”的概念又进一步延伸到室内的悬空楼梯框架与艺术柜台的形式,在保持几何规则的同时创造出新的尺度关系。这种尺度上的变化进一步隐喻了,每个人的生命旅途中连续的路径和不同阶段独特和个性化的表现。
© 史云峰

© 史云峰
© 史云峰
© 史云峰
通透的玻璃幕墙与镂空艺术装置结合,在灯光的照射下产生一系列水流动的效果。同时观者可以透过玻璃幕墙看到室内一系列的生长装置,和内部液体流动的墙面,产生一种极具表现力的外部空间,通过内外空间的共同表达和模糊界限吸引观者。
© Ugo dalla Porta
© 史云峰
© 史云峰
© 史云峰
镂空的水波纹象征着两个人“你中有我,我中有你“,相辅相成的关系,构成建筑与室内的主视觉艺术画面。特别注意的是光与影之间的相互作用,以及这如何能增强外立面的透光浮雕作为吸引观者的”灯塔“。
© 非静止建筑
© 史云峰
© 非静止建筑
© 史云峰

© 非静止建筑
室内空间由连续的能量传播与水的流动构成,在水波流入的能量影响下,天与地及墙面构成了一个完整连续的空间,其中有能量快慢的转折及生长的变化,传达给顾客过渡和休息的时刻。室内空间的天花、地面、墙体有一个整体的衔接。空间的几个主视觉区域有艺术家的代表性“生长类”装置,在能量转换的高潮处用雕塑的形式呈现,象征着爱情的结晶。
© H.H. Lim
© 史云峰
© 史云峰
© 史云峰
链接一楼和二楼空间的是一个”悬浮“的楼梯,楼梯下方及上空展示艺术家的”生长类”金属装置形成绿色的”网红“艺术空间。楼梯营造”悬浮“轻盈的效果,通过与艺术装置环绕呈现一个”生生不息”的挑高空间。二楼继续延续能量的流动及生长,在绿色的橱窗中展现产品与艺术品的结合。所有柜台的形式延续曲线金属“画框”的概念,在柜台也具有 “生长概念”,是与艺术装置的融合。
© 史云峰
© 史云峰
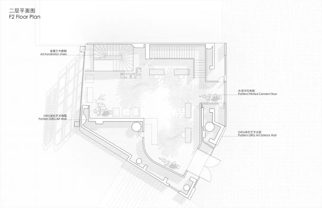
项目图纸
首层平面图

二层平面图
分析图
分析图
展柜设计
项目信息 建筑设计:AntiStatics Architecture非静止建筑设计(北京+纽约) 地址:蓝色港湾I Do,朝阳区,北京,中国 项目年份:2020 建筑面积:550㎡ 主创建筑师: Martin Miller(美)、Mo Zheng郑默 设计团队: Christopher Beckett, 刘宣灼, Luke Theodorius E. D. Santoso, Amber朱宇珩, Yasser Hafizs, Arthur Yang杨轩, Yoyo李越垚, 摄影师:史云峰+非静止建筑 合作艺术家:Loris Cecchini 总包制作商:上海曲星建筑装饰有限责任公司 业主:HIERSUN恒信钻石机构
金盘网APP
金盘网公众号
金盘网小程序


