- 项目名称:杭州-灸春堂
- 项目地点:浙江省 杭州市灸春堂·艾灸·经络·...
- 开发商:灸春堂
- 设计参考价:¥100/㎡
- 项目类型:商业
- 形态:大区
- 建成时间:2023年
- 风格:中式
- 设计面积:240㎡
- 容积率:3
- 发布日期:2024-04-07
- 最近更新:2024-04-07 17:21
肇秋 叶月 灸春堂
繁华终被岁月抚至凄然
芙蓉半萎花容老
沐之清风
仍有金蕨傲然
项目位于杭州拱墅区桥弄街
因为毗邻京杭运河
这里的建筑大多保留着历史风貌
-
TRACES OF AGE
岁月痕迹
时间和历史
赋予了他岁月的痕迹
传统是他的态度
古典是他的气质
当我们还是尘埃的时候
建筑就已经在那里了
当建筑换成一个新的角色
以一种新的方式被使用的时候
它应该是怎样的一种视觉呈现
P. 01
P. 02
P. 03
P. 04
VIBRANT NEW LIFE
活力新生
设计中不遗余力地维持了建筑的原态
另一方面为了室内的通透性
部分立面用玻璃介质替换原墙体灰砖
白色体块意味着生长和包容
植物的交相映衬中增添街区活力
P. 05
P. 06
P. 07
P. 08
P. 09
入口进来
玄关是对马头墙剪影的历史记忆延续
P. 10
P. 11
P. 12
• 03
TDIALOGUE HISTORY
对话历史
在设计上
潜木设计尊重建筑的态度
也想明确自己的态度
在保留原建筑的梁柱
以及旧的木质墙体的基础上
植入新的体块
以浅色系微水泥为整个空间的材质语言
让传统建筑元素与当代材质
跨越历史的长河 彼此对话
P. 13
P. 14
P. 15
P. 16

P. 17
一进的三道弧墙中心皆开竖缝
残阳斜入
斑驳的老木柱
在缝中散发着古拙的气息
P. 18

P. 19

P. 20
P. 21
P. 22
P. 23
P. 24
P. 25
MEMORIES REMAIN
记忆犹存
裸露的木梁和木柱透露着历史痕迹
米白色微水泥为空间注入新的力量
古建筑自身有时间肌理的砖墙
老木门等局部构件被有选择的保留了下来
历史记忆犹存并与现代崭新的材料
在同一空间中形成巧妙的差异化美感
极大的提升了包厢的体验以及空间张力

P. 26

P. 27

P. 28

P. 29

P. 30
客房内主要选用木质 涂料 藤编等
具有自然质感的材料
P. 31

P. 32
P. 33
二层开窗与屋顶做了最大程度的保留
自由伸展的梧桐枝干成为很好的框景
P. 34
P. 35
ANALYSIS DIAGRAM

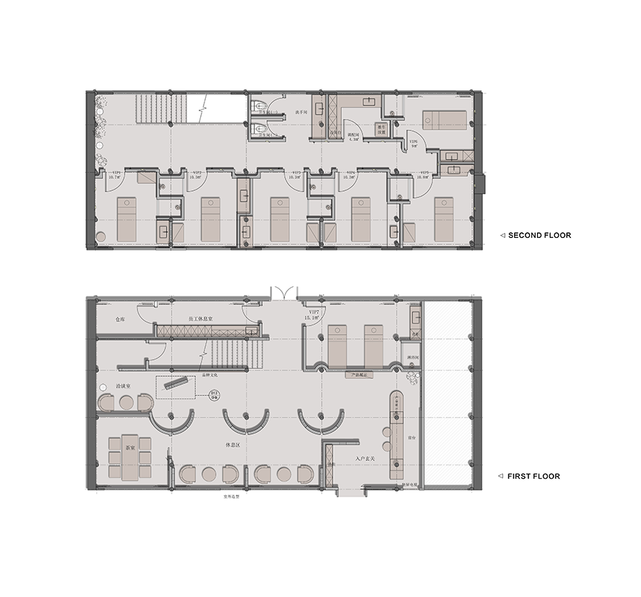
平面图 P.36

爆炸图 P.37
INFO
- 设计机构 -
潜木室内设计
- 主持设计-
沈芳
- 主创设计 -
黄勤
金盘网APP
金盘网公众号
金盘网小程序


