GINGO LAND坐落于惠州隆生商业广场,是当地商业、生活、文化、价值观交汇的生活方式中心。
随着“它经济”的全面崛起背景下,Informal异规设计深化人与宠物、宠物与空间之间的联系,以“开放宠物社群”、“城市景观空间”以及“商业场景塑造”等价值目标,将设计主体延伸为人和宠物两个对象,打造出新奇的都市生活,丰富平凡日常中友好快乐的人宠互动体验。
ocated at Longsun Business Plaza in Huizhou, GINGO LAND serves as a lifestyle center where the local business, life, culture and value converge.Against the backdrop of overall rise of “Pet Economy”, Informal Unconventional Design is deepening the connections between human beings and pets and between pet and space. With adherence to “Open pet community”, “Urban landscape space”, “Business scene shaping” and other value goals, we extend the design subject towards two objects, namely people and pets. In this way, we have created a novel urban lifestyle to enrich the ordinary daily lives by virtue of a friendly and happy interactive experience between people and pets.
都市乐园,快乐探索
Urban Paradise and Happy Exploration
项目开展之初,设计团队对邻里社区街道、所在以及周边城市的客户画像进行了详细的调研:惠州这座充满松弛感的城市,养宠家庭占据总居民基数大部分。但随着当代年轻人随着日常工作的愈发繁忙,陪伴家中爱宠的时间越来越少。
At the beginning of this project, the design team carried out a thorough survey regarding the client portraits in the domiciles, neighborhood, community, sub-district and surrounding city: Families with pet account for most of total resident base in Huizhou, a city filled with a sense of relaxation. However, as the contemporary young generation becomes increasingly busy with their daily jobs, they spare less and less time for their beloved pets.
GINGO LAND希望为大家创造一个繁重生活之际的「好奇乐园」,模糊都市生活中人与宠物的边界,一起社交、感受生活,让陪伴宠物成长的如同在城市水泥中一同探索好奇乐园的过程,温暖而治愈。
GINGO LAND hopes to create a “Curiosity Paradise” for everyone in their burdensome daily lives and blur the boundary between people and pets in the urban life. In this way, they can socialize and experience life together, thus making owners’ experience of growing up with their pets as warm and healing as exploring Curiosity Paradise together in a urban forest of concrete and steel.
规划功能,延伸可能
Function Planning,Possibility Extending
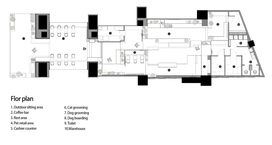
空间整体根据品牌功能和空间逻辑,将原有的狭窄型长方体空间,采用三段式平面布局,由前部的咖啡、户外宠物活动区,中部的宠物零售、室内宠物活动区、书吧,以及后部宠物美容洗护、宠物寄养、卫生间构成,每部分空间材质与色调相互融合、自然过渡。
According to brand functionality and spatial logic, the original narrow rectangular space as a whole is transformed into a three-segment layout, consisting of the coffee and outdoor pet activity zone in the front, the pet retail, indoor pet activity zone and book bar in the middle and the pet grooming, pet boarding and toilet in the rear. The materials and colors in each part of the space blend with each other and form natural transition.


模拟宠物自身的生活习性与人类相处方式设计了丰富而有趣的空间动线及一系列宠物友好设施,探索休闲、娱乐、社交等更多使用上的可能性。
A rich and interesting spatial movement line and a series of pet-friendly facilities are designed through simulation of the life habits of pets themselves and the way they get along with people, so as to explore more possibilities for leisure, entertainment, social interaction and other purposes.


随时随地,自然而然
GO anywher,GO time
我们通过设想人宠怎样相见、互动的场景与周围景观的呼应来创造空间:将沿街立面的入口处的设计为灵活的户外广场,前部空间开放,向内生长,行人可以同时看到简洁有力、色彩跳跃的外立面和层次鲜明的内部装潢,各种元素相互组织、相互制约在一个开放的独块统一体中。
We create this space by envisioning how people meet and interact with their pets and echo with the surrounding landscape: The entrance at the street-facing facade is designed as a flexible outdoor square, with an open front space that grows inward; pedestrians can see both a simple and powerful facade with vivid colors, and the highly layered interior decoration; various elements organize and restrict each other in an open monolithic unity.



充盈的绿植沿着动线蔓延,形成一片自然的“都市绿洲”,带来自然亲和的视觉感受。友人之间自然而然的相遇,聊着宠物生活中那些平凡趣事,与爱宠嬉闹在室外林间中的阳光下,让空间呈现出更深层的叙事性和情景感。
The lush green plants spread along the moving line, thus forming a natural “Urban oasis” and presenting a natural and amiable visual feeling. Friends encounter with each other naturally, talk about those ordinary interesting episodes in their pet lives and frolic with their beloved pets under sunshine in the outdoor forest so that the space presents deeper senses of narration and scene.


活泼映射,唤醒生活
Vivacious Mapping and Life Awakening
GINGO LAND的设计重要点不仅仅是形式,还有建造材料的选择:采用米色洞石和米色灰泥作为墙面主要肌理,打造自然空间质感;将多层桦木板相叠加作为休息座位,营造出随地而坐的户外感;大面积的镜面材质依地而生,消除室内室外界限;这些不同质感的天然材料,通过视觉上的技巧重新组合,让空间感受变得更加戏剧。
The key points of GINGO LAND design lies in not only its form but also the option of building materials: Beige travertine and beige plaster are adopted as the main materials of wall so as to create a natural space texture; multiple layers of birch planks are overlaid as seats for rest so as to create an outdoor feeling of sitting anywhere; a large area of mirror material is erected on the ground so as to eliminate the boundary between indoor and outdoor space; those natural materials of different textures are reorganized by visual techniques so as to deliver more dramatic space feelings.




除此之外,我们提取了圣诞色中代表活泼时尚的橙色,作为品牌视觉与空间的主要色调,这些明亮、温暖、快乐的色彩以灵活开放的姿态,介入到年轻消费者与养宠人群友好轻松的社交生活方式中。
Moreover, we have extracted orange, representing vitality and fashion among Christmas colors, as the main tone of brand vision and space. In this way, those bright, warm and happy colors get involved into the friendly and relaxing social lifestyle of young consumers and pet owners in a flexible and open manner.




时尚岛屿,社交纽带
Fashion Island and Social Bond
中部的矩形区域被定义为兼具时尚零售与宠物社交等多重功能的“灵活空间岛屿”。宠物服装、创意商品与观者浏览动线进行组合串联,形成室内空间的“打卡点”,灵感丰富涌现,通过镜面折射于不同视角中,好奇乐园的时尚气息弥漫扩散于整个空间之中。
The central rectangular is defined as an “Flexible island space” that integrates fashion retail, pet social interaction and other multiple functions. Pet clothes, creative commodities and moving line for visitors to glance over are combined and connected so as to form an indoor “Clock-in point”. Inspiration emerging in great amount is reflected in different perspectives via mirror; thus, the stylish atmosphere of Curiosity Paradise permeates the entire space.




用心设计,温馨相伴
Conscientious Design,Cozy Companionship
我们将宠物美容区精细划分,形成狗狗洗护室和猫咪洗护室两个独立的个体且并联的盒体。别出心裁的设计使工作人员更灵活地调配工作任务,提升整体的工作效率,同时又维护了宠物的私密性,拉近与宠物的距离。
We conscientiously divide the pet grooming zone into two separate and parallel boxes, namely the puppy care room and the kitty care room. Such a unique design not only allows staff to deploy tasks more flexibly and improve their overall work efficiency, but also maintains pet privacy and narrows the distance between staff and pets.


GINGO LAND是一种探索美好的实践,让人与宠物、生活的互动更加丰富多彩,由宠物推及日常生活,增添一种全新的都市生活方式。
GINGO LAND works as the practice in exploring beauty. It diversifies the interaction between people, pets and life, extends such pleasure from pets to daily life, and thereby establishes a brand new urban lifestyle.

平面图▽




项目名称:GINGO LAND
Project Name: GINGO LAND
项目业主:GINGO LAND
Project Owner: GINGO LAND
项目类型:人宠社交空间
Project Type: People-pet social interaction space
设计公司:Informal异规设计
Design Company: Informal Unconventional Design
联系邮箱:informaldesign@foxmail.com
Email Address: informaldesign@foxmail.com
设计内容:品牌、视觉、空间、家具
Design Contents: Brand, vision, space and furniture
空间设计:王盛、陈子龙
Space Design: ShengWang and Zilong Chen
平面设计:邱思婷、王杏
Graphic Design: Siting Qiu and Xing Wang
品牌策划:sumi huang
Brand Planning: Sumi Huang
项目设计:品牌全案
Project Design: Brand portfolio
完成年份:2022年
Completion Year: 2022
项目地址:广东 惠州
Project Address: Huizhou, Guangdong
建筑面积:300㎡
Building Area:300㎡
摄影版权:阿正
Photography Copyright: A Zheng