深圳+trunk咖啡店
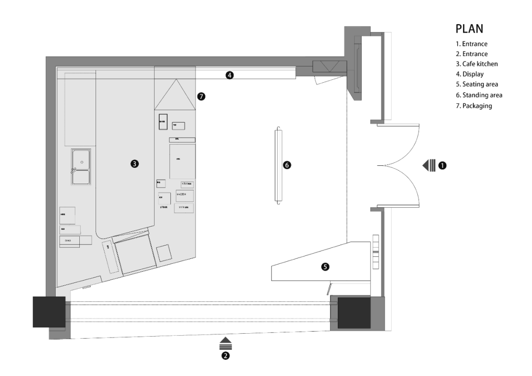
+trunk是一家开在深圳市中心咖啡店,是日本手冲咖啡大师铃木康夫在中国的全新定制店。希望在钢筋水泥的都市,+trunk望带给大家一种原始的温暖,我们将室内空间设计成几何形洞穴,吧台、柜子、墙面、天花组连接组合成一个整体,空间表面用具有泥土质感的环保材料夯土包...
- 项目名称:深圳+trunk咖啡店
- 项目地点:广东省 深圳市+trunk
- 开发商:+trunk咖啡店
- 设计参考价:¥100/㎡
- 项目类型:商业
- 形态:大区
- 建成时间:2020年
- 风格:现代
- 设计面积:36㎡
- 容积率:3
- 发布日期:2024-04-08
- 最近更新:2024-04-08 09:43

Origami滤杯的设计理念出自日本TRUNK的创始人之一铃木康夫先生。
2014 年,铃木先生在名古屋成立「TRUNK COFFEE BAR」;为了推广第三波咖啡衍生的生活风格,他结合故乡中部的「美浓烧」陶瓷产业文化,成立 Origami 品牌。
Origami日语翻译过来有“折纸”的意思。中国选手杜嘉宁用这款Origami滤杯来打比赛并拿到2019世界咖啡冲煮大赛冠军,一瞬间这款滤杯在咖啡界也狠狠的火了一把。















金盘网APP
金盘网公众号
金盘网小程序


