深圳-超有面-美容护肤体验中心
超有面SUPERFACEX,是综合型医疗投资管理集团四季木兰旗下新型美容护肤线下体验中心子品牌。项目坐落在深圳未来的金融科技中心的前海万象城。委托人想要塑造在实体店中体验新产品的一种新方式来支持品牌形象。具有煽动性与众不同的体验感的店铺。
- 项目名称:深圳-超有面-美容护肤体验中心
- 项目地点:广东省 深圳市超有面CHAOYOU...
- 开发商:超有面-美容护肤体验中心
- 设计参考价:¥100/㎡
- 项目类型:商业
- 形态:大区
- 建成时间:2021年
- 风格:现代
- 设计面积:110㎡
- 容积率:3
- 发布日期:2024-04-08
- 最近更新:2024-04-08 09:50


超有面SUPERFACE X 塑造全新生活方式:通过趣味科技且富有质感的场景并配合沙龙活动,打造理念相同人群的社交平台,探索提炼美好生活价值观,重新定义关于美的含义。
它是一个实验性的表达方式,主题是“变色龙的理想”。就像在阳光,温差,重力和年龄的影响下,人的皮肤会发生变化一样。变色龙的形象表达为多变的,神秘的,和色彩的,我们试着用现代的手法掀起一场关于“超有面SUPERFACE X”的文艺复兴的浪潮,与传统美容场所的迥异的空间形式,试图把神秘感,无规律,戏剧性,融合。亮眼的色彩与流动的线条。以空间的矛盾性与戏剧感阐述对当代年轻人表象与内在关联的表达。
The topic of its experimental expression is "chameleon's ideal". As if people's skin can change under the impacts of sunlight, temperature difference, gravity and age. The image of chameleon is characterized by fickle, mysterious and colorful. SuperFace X has attempted to launch a renaissance craze by the modern way. The space form which is wildly far from that in traditional beauty places, has tried to complete the integration of mystery, irregularity and theatricality. There are bright colors and flowing lines. Through space contradictoriness and theatricality the expression of young generations' representation and internal relation is elaborated.





这里有着丰富的人工光线。从结构上看,“侧躺”的简易柱体形状与流动弧形线条图像,被凹进去的一个半,底下散发着像是收集的光芒的视觉中心,绒布做成的休息区域,散发出一丝复古的气味,复杂的墙壁结构和光亮的墙面形成视觉冲击。大面积的马赛克的铺贴,倒角,转折,像是变色龙的皮肤。进门处一幅文艺复兴时期的画像是盯着某一个地方,灯光的照射,像变色龙皮肤的马赛克材质也给出了反射。马赛克做了特别的的变化,尺寸大小的几何体,相互交错,转变方向拼贴。
The center is full of various artificial light. Structurally, the shape of concave semicircle made by“lying”simple cylinder shape and flowing arc-shaped line image is reflected on the wall as an optical center collecting light. Rest areas made of lint represent a retro style. Complex wall structure and polished wall form a visual impact. A large scale of mosaic tiles paving, chamfering and turning are similar to chameleon’s skin. At the entrance, a renaissance portrait is glued to someplace. With the light, mosaic tiles which resemble chameleon’s skin also reflect light. Mosaic tiles have made a special change. Geometries in all sizes are interlaced, and collaged by turning direction.


空间里有着同一色系,不同颜色的暖橘色,橘色绒布地毯几乎覆盖了整个前厅。深咖色的琉璃圆形茶几。米白色的洞石展示层板。
我们认为零售体验是一个乌托邦式的构想——“在一个巨大宽敞的舞台中获得快乐”。看似对齐的天花和墙面线条,转折交错的马赛克几何体,三层木饰面的搭配不锈钢边的桌游桌,逼真的剧场感给人一种表演的感觉。一入场就神秘感和好奇心就会冲上心头,触发人们去探索的乐趣。
All things in the space belong to the same color system, but present different colors of warm orange. Orange lint carpet alomst cover the whole floor of lobby. There has a glass round table with deep coffee color. There has a off-white artstone display board.








穿过圆形剧场,背面有一个神秘有趣的镜子,这里是一个梳妆台。走道的镜头依稀可见两个简易的文艺复兴拱形柱,这里顾客的检测皮肤的区域,半包围的私密性。
Through the round theater, there is a interesting and mysterious mirror at the reverse side, where is a dressing table. At the end of the corridor, two simple renaissance arc-shaped column can be seen indistinctly. Customers skin can be detected here, and it represents the characteristic of half surrounded privacy.

不同的材料的组合,搭配也体现出了委托人想要打造。千人千面,不同的年龄阶段,不同的风格的服务场景向顾客传递出多元和变化神秘的感觉,扩展了社交圈。把个体从独立的技巧中拉出,建立在公众舞台上共享零售业的体验多元的变化的空间。
Different materials combination and match also show the entrusting party want to build service scenes suitable for all ages and styles. They also give diversified and mysterious feelings to customers, expanding social circle. They can make individuals separate from independent skills, and construct a platform that can experience a diversified and fickle shared retail industry based on the public stage.



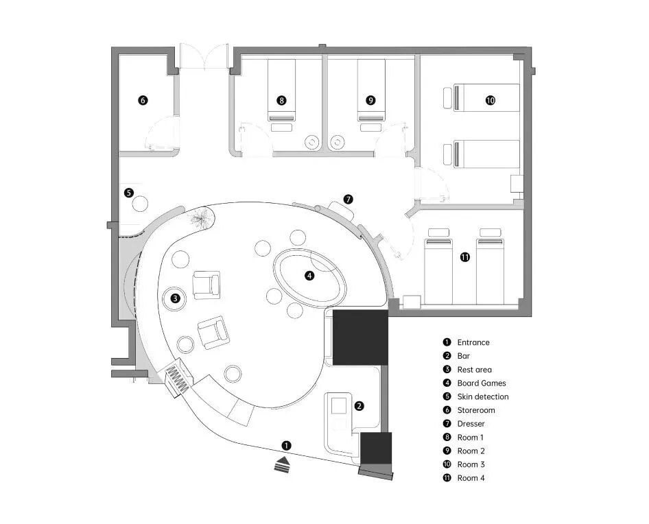
平面分析图

项目名称:超有面
Project Name: Super Face X
项目地址:中国深圳
Project Address: Shenzhen, China
空间设计:异规设计
Space Design: Informal Design
主案设计:王盛
Lead Designer: Wang Sheng
设计团队:马莉莉、陈子龙
Graphic Design: Ma Lili、Chen Zilong
竣工日期:2021年12月
Completion Date: 2021.12
建筑面积:110㎡
Construction Area: 110㎡
摄影:云眠摄影工作室
Photography: yuuuunstudio
主要材料:艺术涂料 微水泥 马赛克 不锈钢 洞石 亚克力
Key Materials: Art Coating, Micro Cement, Mosaic, Stainless Steel, Cave Stone, Acrylic
金盘网APP
金盘网公众号
金盘网小程序


