苏州-La Douce Patisserie烘焙体验厨房
LaDoucePatisserie是一家法式咖啡烘焙店,它不仅仅是一个只售卖甜品的单一行为场所。这里可以承载这个时代消费者更多的需求与可能性。顾客能在这里选购、拍照、享受美食、社交、制作体验等,力求从商业模式、空间设计等各方面来重新界定甜品店的概念。
- 项目名称:苏州-La Douce Patisserie烘焙体验厨房
- 项目地点:江苏省 苏州市江苏省苏州市工业园区...
- 开发商:La Douce Patisserie烘焙体验厨房
- 设计参考价:¥100/㎡
- 项目类型:商业
- 形态:示范区
- 建成时间:2021年
- 风格:现代
- 设计面积:134㎡
- 容积率:3
- 发布日期:2024-04-08
- 最近更新:2024-04-08 15:15
呼吸到你灵魂里温柔的气息,
那是种沉埋在暗影里的芬芳; ---雨果
设计理念:“蒸发与升华”
设计概念缘起烘焙加热过程中水蒸气的不断“蒸发与升华”这一过程,从而推导出一系列纯粹而有趣的造型。
▼ 项目外观(摄影版权 徐英达)

关于La Douce Patisserie
La Douce Patisserie是一家法式咖啡烘焙店,它不仅仅是一个只售卖甜品的单一行为场所。这里可以承载这个时代消费者更多的需求与可能性。顾客能在这里选购、拍照、享受美食、社交、制作体验等,力求从商业模式、空间设计等各方面来重新界定甜品店的概念。
▼轴测图(©平介设计)

随着近几年来体验式经济的渗入与人们对它的理解,一个时期的“所谓风格”似乎在逐渐更迭。最初,在与店主的交流中,我们希望听到并复刻出她想要的东西。然而倾听的过程中,我们在惊讶于店主理性的同时,也渐渐懂得和理解了她的需求-即希望用最纯粹的环境来承载烘焙与咖啡。她希望这个环境不盲从、不浮躁,有足够的空间去遐想和给予、去引领最前沿的精品体验。不论是奔着咖啡的醇香,亦或是制作醇香的机器,甜品亦或是蒙德里安艺术,还是在闲适的午后突如其来的创作灵感,人们可以暂栖此处,各取所需。
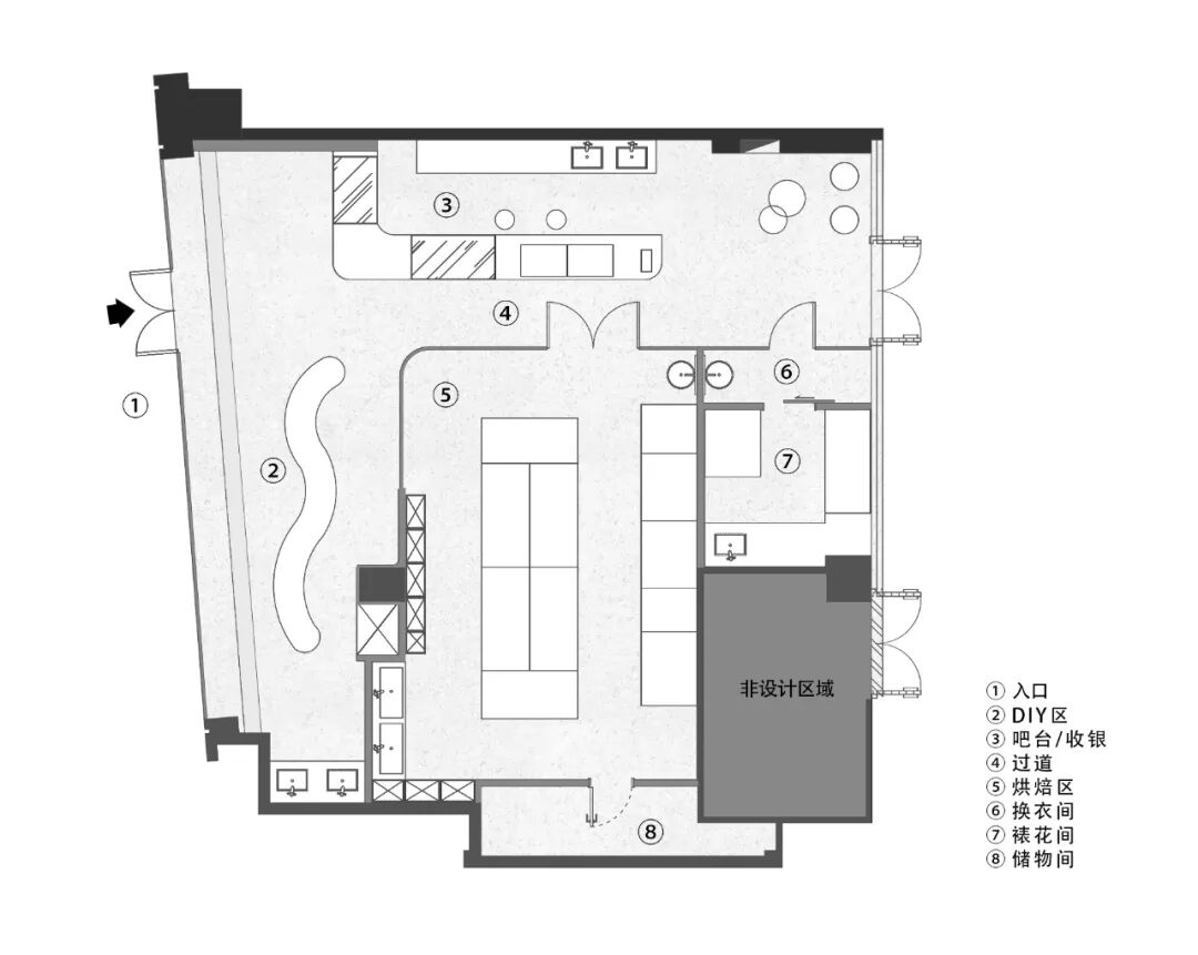
▼ 平面布置图(©平介设计)
▼ 店铺概览(©徐英达)

店铺是“以体验制作为主,甜品与咖啡为辅”的零售式体验店,我们希望以此概念营造空间特质,塑造独特的空间氛围, 以此延展店铺设计的可能性,并且将此作为法式浪漫含义的延伸,塑造其独特的空间氛围并延展整个店铺设计的可能性。
迈进店后,顾客们会立即感慨于空间的整体性。这种整体性不仅仅使产品特性的制作过程变成了一种生动的视觉体验。
▼ 入口(©徐英达)


入口与烘焙理念共同利用“蒸发与升华”这一理念,为这个从白天持续到夜晚的惬意体验空间带来了舒适、吸引人的氛围感。烘焙师在为客人制作甜品之时食品满溢而出的醇然香气,定会激起往来路人的兴趣,使之驻足,无形之间让人解释了店铺属性。
▼ 入口收银区(©徐英达)



吧台区担负着多种功能需求,包括人员调度,收银,音控,最主要的功能是咖啡制作和甜品的展示销售。
金色的亮点的设计,为整个室内空间增添一分高级感。设计师将甜品这个核心的产品通过扁平化手法结合拉丝金属沿着墙面一直延伸到顶面,使一系列的金属块面扣入墙体,覆盖整个吧台,圆角。材质触感舒适,方便打理,同时也满足了食药监的吊顶要求。此外,设计令人联想到烘焙特有的形状与柔和的香气,与主题相互呼应,为空间增添色彩与肌理,营造出整个空间的点睛之笔。
▼ 弧形顶面(©徐英达)

▼ 结构示意(图纸版权:平介设计)

▼ 施工过程(©陈磊)


顶面弯曲动感的形态源于烘焙加热的过程中香浓气息不断“蒸发与升华”的过程,以及水珠滴落之前的瞬间。设计将这种奇特的动态演绎于整个空间,同时增加了空间的主题性和氛围感。弧形顶面的实现过程非常有趣,由于考虑到施工成本原因,我们没有选择工厂预制的GRG模块吊挂,而是先在三维软件中确定每一个穹顶的中心点和它们的相交点;再根据不同的弧长做骨架券;之后将骨架券联系成空间网格;最后用薄木板形成一个个连续的穹顶表面,这些全部是由现场工人手动完成。
▼烘焙区域(©徐英达)


烘焙区域与吧台相对。透过弧形长虹玻璃, 顾客在等待品尝新鲜甜品的同时,还可隐约看到烘培师们的制作过程。
进入内部,顾客可以看到烘焙师所有的操作。这里犹如剧院的镜框式舞台。烘焙师那精湛的手艺,可以将甜品制作过程展示得如同一场表演,让顾客对烘焙的了解更进一步。
▼ DIY区(©徐英达)


▼ DIY区细节(©徐英达)


形态弯曲流动的diy桌子,与整个空间相融合。
在这个洋溢着轻松氛围的同时,还充满咖啡醇厚香气的区域,每个人都可以全然放松自我,沉浸于自我的烘焙创作中去。同时,还有音乐与咖啡相伴,也有素不相识的邂逅,为热爱烘焙与精致设计的人们提供了一个理想场所。
空间中多处运用弧线造型,且对原空间里不规整且生硬的转角进行了弧形处理,使之更为柔和,触感舒适。让喜欢烘焙体验的朋友们在这样的氛围里停下来,暂离喧嚣,享受此刻的生活。
项目信息
项目名称:La Douce Patisserie烘焙体验厨房
项目设计&完成年份:2021.11
设计团队:陈磊,李文靖,杨波,肖湘东
合作方:苏州再造设计
项目地址:江苏省苏州市工业园区中衡设计大厦一楼
建筑面积:134㎡
摄影版权:徐英达
金盘网APP
金盘网公众号
金盘网小程序


