上海海上溪云私宅
本案320㎡,业主是一对年轻夫妇,儿女双全,和两个长辈同住,三代同堂其乐融融。风格上以年轻小众的美式中古风为主,用温柔静谧的颜色和各类材质丰富的家具、装饰等打造整体复古典雅而又满是温柔的浪漫慵懒氛围感。
- 项目名称:上海海上溪云私宅
- 项目地点:上海市 上海市海上溪云
- 设计参考价:¥1000/㎡
- 项目类型:私宅
- 建成时间:2023年
- 风格:现代
- 设计面积:320㎡
- 发布日期:2024-05-07
- 最近更新:2024-05-07 14:41

SIN GO DESIGN 法式中古 & 案例赏析 

面积:320㎡ 风格:法式中古 楼盘:海上溪云
设计可以是艺术。设计可以是美学。 设计是如此简单,又如此复杂
本案320㎡,业主是一对年轻夫妇,儿女双全,和两个长辈同住,三代同堂其乐融融。
风格上以年轻小众的美式中古风为主,用温柔静谧的颜色和各类材质丰富的家具、装饰等打造整体复古典雅而又满是温柔的浪漫慵懒氛围感。

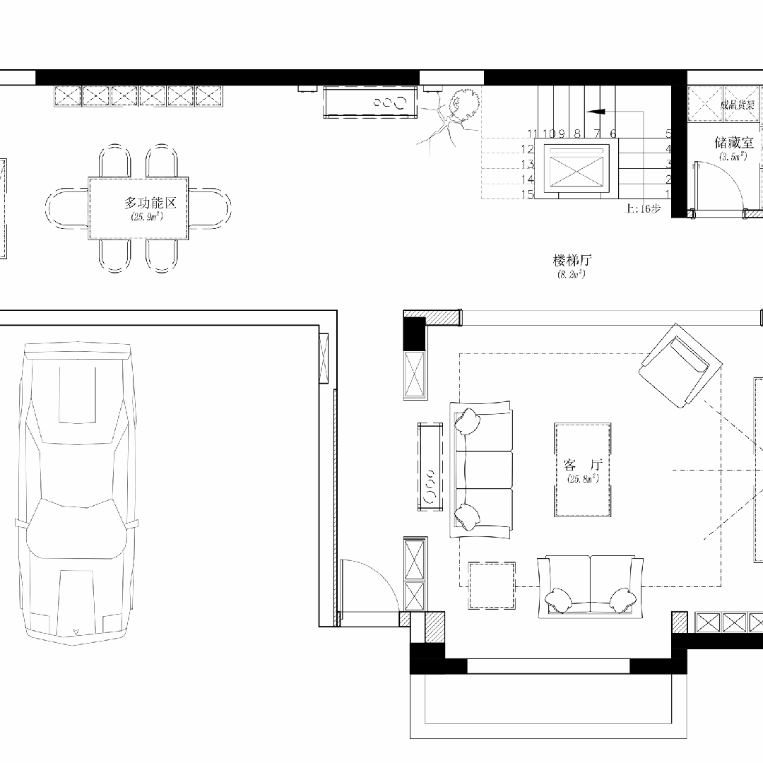
户型分析与设计理念
面对采光相对较弱、空间不够通透的难题,通过充分利用阳台的优势,为室内空间注入亮点。在整体考虑主体空间的基础上,巧妙配置各个功能区域,以合理的方式充分利用有限的空间资源。

经典静谧灰的沙发与或调色或艺术造型的休闲椅,大面积奶油色调的墙面用古典温柔的石膏线浮雕装饰,配与温柔舒适的地毯,在不经意间勾勒出内敛优雅的中古风氛围感,透露着屋主不凡的品味。

餐厨采用餐岛一体的设计,让入户玄关与餐厅相结合,餐桌与岛台之间形成洄游动线,延展了入户视野,让空间更加开阔敞亮。

大理石作岛台和餐桌面,让自然的纹理成为最好不过的装饰,藤制木椅天然材质带来浓郁的复古质感,再添以通透的玻璃和温柔恬静的奶油质感橱柜,强烈的美学质感呈现出古典和现代美相融合的温柔力量。

精致的三餐四时,归于对细节的布设。在剔透玻璃的勾勒下,沉淀着淡雅的文化气息,日常的就餐仪式一寸寸地落于其间。

宁静独属于休憩的卧室空间,整体以木地板铺就,温馨简洁的材质与色调,提供安静的休息氛围。
古典木质的吊灯,更添一抹复古自然质感。


主卧室增加阅读办公区域,一盏温柔灯,沉静的木质调传递自然质感,营造出温馨质朴的静谧温柔氛围。


金盘网APP
金盘网公众号
金盘网小程序


