杭州景海湾私宅
全宅整体将现代的简约质感与精致相融合,每一个角落都弥漫着纯粹的美。这里的生活,就是如此简单而美好,没有过多的繁琐,只有轻松自在的心情在家中自由释放。
- 项目名称:杭州景海湾私宅
- 项目地点:浙江省 杭州市景海湾
- 设计参考价:¥1000/㎡
- 项目类型:私宅
- 建成时间:2023年
- 风格:现代
- 设计面积:415㎡
- 发布日期:2024-05-07
- 最近更新:2024-05-07 16:13

SIN GO DESIGN 现代简约 & 案例赏析 

面积:415㎡ 楼盘:景海湾 风格:现代简约
"最好的室内设计是那种无需过多解释, 让人一眼就能感受到其美的设计。" The finest interior design is one that requires no elaborate explanations, but allows one to feel its beauty at a glance.
全宅整体将现代的简约质感与精致相融合,每一个角落都弥漫着纯粹的美。这里的生活,就是如此简单而美好,没有过多的繁琐,只有轻松自在的心情在家中自由释放。

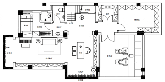
户型改动
增加电梯功能,让动线和生活更便利; 原始墙体过多,设计拆除多余墙体,还原空间完整性; 地下室打通不设分界,开放式一体化设计增加互动性; 增加独立的藏储空间,增加收纳。

全宅以黑与白为主要基调,如同钢琴键盘,贯穿了整个室内设计。同时引入了柔和的元素,创造出一种和谐的空间氛围,线条的简洁与规整,以凸显出艺术美感。

公共区域宽敞而明快,根据功能划分区域,将黑白主题贯穿始终。搭配白色石材,创造出硬朗而精致、错落有致的陈设。餐厅和客厅在功能上得以完美区分。
宽敞的公共空间被精心设计,经过功能性的划分,各区域相互独立,但又完美融合。


黑白两色主题贯穿始终,辅以白色石材的点缀,创造出硬朗而精致、错落有致的陈设,餐厅和客厅得以完全区分,功能鲜明。
在这个现代简约的设计中,一切都回归至本质,没有多余的装饰,只留下了黑与白的对比。

黑色元素赋予了空间现代感和深度,而白色则带来了明亮和通透。这种鲜明的对比创造出一种纯粹而清新的室内氛围。
极简主义的美学贯穿于整个室内设计,线条简洁而准确,让人感受到空间的整洁和舒适。

墙壁和地板的选择也体现出对质感的关注,带来了触感和视觉上的愉悦。 设计充分展示了黑白的经典组合如何创造出一种独特的魅力,使空间变得富有层次感。
室内布局充分体现了功能性的理念,每个区域都经过深思熟虑的设计。餐厅和客厅之间明确分隔,吊顶的设计使空间更加连贯和完美。 黑白主题也巧妙地延伸至各个区域,创造出和谐而一致的室内氛围。


卧室的设计尤为注重细节。床头墙的灰色艺术处理为房间带来了独特的质感,吊顶的线条设计使人视觉上得到舒缓,成为一个逃离繁忙生活的理想之地。 这是一个安静和放松的角落,一个藏身于白天喧闹中的避风港。

在这里,生活变得更加轻松和美好,每一个细节都体现出艺术美感和简约之美。

金盘网APP
金盘网公众号
金盘网小程序


