济南德赛斯岩板展厅
身处同品类繁多的家居卖场中,如何让德赛斯岩板展厅脱颖而出,快速吸引、识别、沉浸,一厅可极尽绽放契合的品牌型格,成为半舍设计对空间价值赋能的思考。
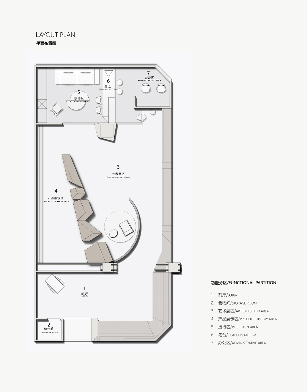
- 项目名称:济南德赛斯岩板展厅
- 项目地点:山东省 济南市德赛斯岩板展厅
- 开发商:济南德赛斯岩板展厅
- 设计参考价:¥500/㎡
- 项目类型:商业
- 形态:示范区
- 建成时间:2023年
- 风格:现代
- 设计面积:150㎡
- 容积率:3
- 发布日期:2024-05-08
- 最近更新:2024-05-08 13:53
开放&聚焦
Open&Focused
━━







有界&无界
Bounded&Unbounded
━━









本体&隐喻
Ontology&Metaphor
━━











项目名称 | 德赛斯岩板展厅
项目地点 | 山东济南
项目面积 | 150㎡
设计时间 | 2022年
完工时间 | 2023年
设计公司 | 半舍设计
主创团队 | 李珅 刘少伟
金盘网APP
金盘网公众号
金盘网小程序


