中南·新昌青云里售楼处
白居易的《与元九书》有一句话是“感人心者莫先乎情”,他认为情是诗歌的根本条件,而情感的产生又是有感于事而系于时政的。自古文人墨客都爱游历山水,以山水喻德,在天地悟道,无论古今我们都在依靠环境以景触情。 新昌,一处隐匿于山水中的城市,一处人文名片,一...
- 项目名称:中南·新昌青云里售楼处
- 项目地点:浙江省 绍兴市 新昌县中南青云里
- 开发商:中南地产
- 设计参考价:¥3000/㎡
- 项目类型:其他
- 形态:示范区
- 建成时间:2020年
- 风格:中式
- 设计面积:440㎡
- 容积率:1.1
- 发布日期:2024-11-01
- 最近更新:2024-11-01 10:17

“知者乐水,仁者乐山。知者动,仁者静。知者乐,仁者寿。”
——《论语·雍也》
白居易的《与元九书》有一句话是“感人心者莫先乎情”,他认为情是诗歌的根本条件,而情感的产生又是有感于事而系于时政的。自古文人墨客都爱游历山水,以山水喻德,在天地悟道,无论古今我们都在依靠环境以景触情。
新昌,一处隐匿于山水中的城市,一处人文名片,一处意蕴文脉。我们旨在将城市缩影与山水意境贯穿,观境由心,归逸叠峦。空间营造不单只是简单的平铺直叙,而是意境熏托。
游于山水,可得林泉之致;居于山水,更具天地之灵。


物形表象的渲染描摹,精神视像的化形延展,皆归于设计艺术笔法的融通与洞察。入门接待处将山脉水流的意象化形态直叙其中,言简意赅的表达,润物无声。




“横看成岭侧成峰,远近高低各不同”古人对山脉的描写是独到的,由全金属打造的沙盘吊灯曲线流转,层层叠加。每一处脉络的盘延曲折意蕴无穷。



平静中的一处热闹,洽谈区的一处秩序空间,矩阵式的饰品排布,立意营造,呈现了现代与传统交叠、人文与自然并置的隐逸场景,将空间的平面范式扬升至立体视像的高度。



王羲之一幅《兰亭序》将空间书香推至顶峰,静心聆听空间的每一处文脉之气,每一处细节散发着静谧质朴之美。缓缓流动着东方美学智慧。


感人心者莫先乎景, 是山水写意之景,也是心境交错之景。
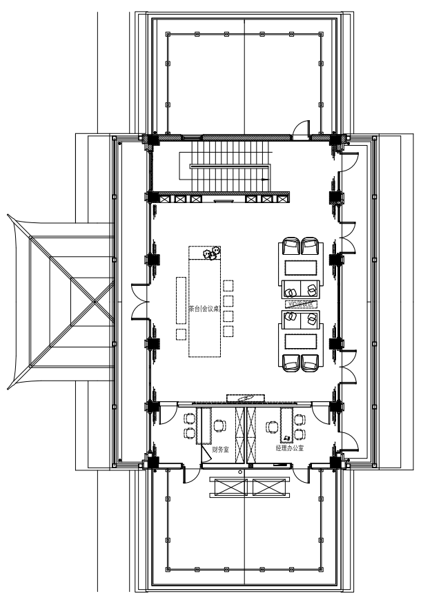
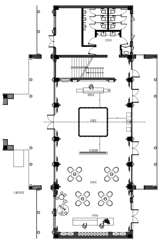
平面图

一层平面图

二层平面图
项目名称:中南·新昌青云里售楼处
项目地点:浙江·绍兴
项目面积:440m²
设计机构:GLD绿檀设计
设计团队:徐帆、陈小芹
联系方式:徐先生 18758569909
公司创始人介绍:
徐帆,GLD绿檀公司创始人,为浙江大学硕士研究生,曾赴英国伦敦作交换留学,有着多国游历经验。毕业后在绿城房产集团任职多年,不但具有丰富的甲方管理经验,而且有优质的乙方设计经验,在设计领域中对国际时尚文化有着极为敏锐和独到的领悟,极具国际设计视野。

GLD绿檀设计
浙江绿檀装饰工程设计有限公司为多种类型的项目提供优质的室内设计和软装陈设服务,包括住宅项目,如样板房、售楼处、会所等;私人住宅如公寓及别墅;餐厅、酒店、服务公寓及商场等酒店、餐饮项目。我们秉承设计无界限的理念,通过文化融合、品牌整合、产品及设计师合作等协作方式得以充分体现并进一步加强。同时,通过和美国、欧洲的顶级品牌和设计师多年的紧密合作,将欧美最顶级的品牌引进中国。
ZheJiang lvtan decoration engineering design co., ltd. provides quality interior design and soft furnishings services for various types of projects, including residential projects, such as model houses, sales offices, clubs, etc. Private residences such as apartments and villas; Restaurant hotel service apartments and shopping malls such as the hotel catering project, we uphold the concept of design has no boundaries, brand integration and product designers through cultural fusion and collaborative approaches to cooperate fully embody and further strengthen at the same time, through and the United States, Europe's top brands and designers work closely together for many years, will be Europe and the United States's top brand into China
END
金盘网APP
金盘网公众号
金盘网小程序


