银泰城售楼处
当空间有了可以为之所用的价值的时候,当一切都准备就绪的时候,人们最初对美好生活的愿望逐渐萌发,于是乎生活有了美学、有了艺术。售楼处在空间叙事中,始终以水为线索,串联出生动的空间的起伏,不仅满足了当下的审美需求,同样传达出品质感和多样化的价值观。
- 项目名称:银泰城售楼处
- 项目地点:浙江省 杭州市 淳安县银泰城售楼处
- 开发商:淳安银泰置地有限公司
- 设计参考价:¥3000/㎡
- 项目类型:其他
- 形态:示范区
- 建成时间:2020年
- 风格:现代
- 设计面积:850㎡
- 容积率:0.94
- 发布日期:2024-11-01
- 最近更新:2024-11-01 10:20

当空间有了可以为之所用的价值的时候,当一切都准备就绪的时候,人们最初对美好生活的愿望逐渐萌发,于是乎生活有了美学、有了艺术。
售楼处在空间叙事中,始终以水为线索,串联出生动的空间的起伏,不仅满足了当下的审美需求,同样传达出品质感和多样化的价值观。




我司专门为银泰设计研发的装饰灯,以银泰城的LOGO为设计元素,进行艺术演变设计成具有企业文化的灯具,多维度的体现设感。空间承载着生活的想象力,而美的沉淀,源于生活营造的延续性。



承载着沟通核心缓解的洽谈区,设计师有意模糊各空间边界,连续、均质的开放界面,营造出如美术馆空间般简约、舒适的环境氛围。高级感的交错相融的流动性,给人们带来视觉的冲击力与不期而遇的惊喜,进一步体现项目自身的包容性与共享性。“设计的艺术性来自对生活方式的独特理解,文化性则根植于生活经验自然而然的流露,并非刻意营造。”




设计师将高级艺术品的光影、空间色彩的相互影响,晶莹剔透的水晶球互相映照,耀眼的光線折射,多样的元素融合在一个场景中,碰撞出耐人寻味的独特光景。来宾行走其间,可以从中获得非常有视觉衝击力的动感画面。



英国有句谚语:“敲钟四下,一切为下午茶停下”。
颜值和味道都在线的下午茶提高整个空间的格调,也可以快速拉近人与人之间的距离,真正的生活味道生命真谛从来都存在于生活的细节之中。一个真正对生活生命有所追求的人,总是那些对细节之美有所察觉的人。


随物赋形,与物无争;延续湖水的波纹灵动,粼粼水波讲述了一个临湖美居的美好生活故事,每一处饰物,都各得其所,展现着美好生活应该具备的每一个细节元素。



色彩丰富、温柔的空间,柔软、充满童趣的儿童家具,童趣与艺术融为一体,活泼又不失整体的风格。空间有大量的书籍,智力玩具兼顾空间的美观实用性与儿童安全健康,旨在空间中创造出一个有别于的纯净小世界,在满足幼儿嬉戏的基础上,能够激发孩子们的阅读兴趣。

流淌的金属、高级的艺术品,在不断唤醒重塑着你的想象力。慢慢聆听,虽远去却依旧熟悉的倾诉、呓语,是关于生命的轻吟浅唱。



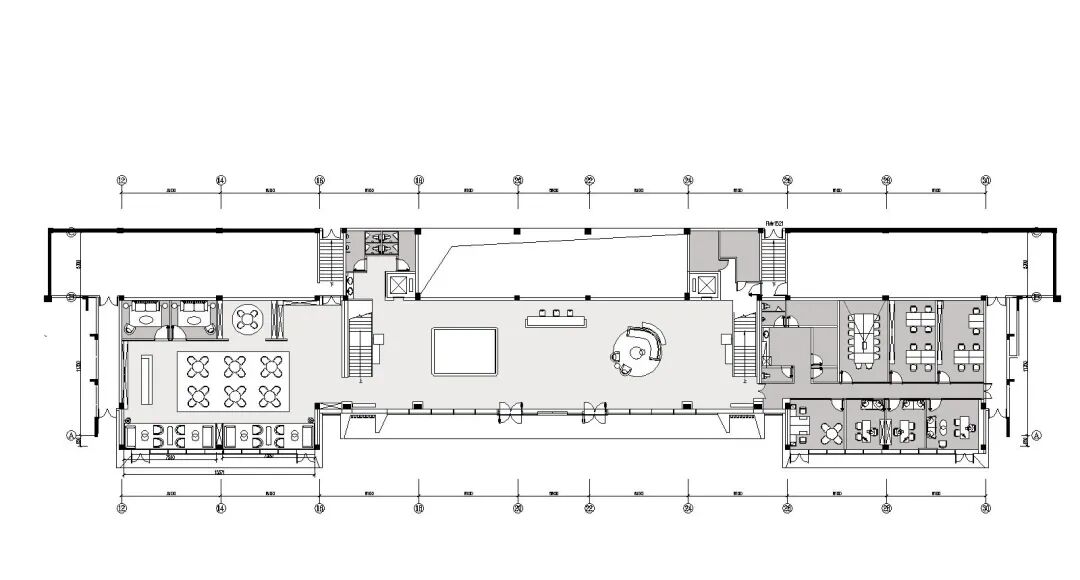
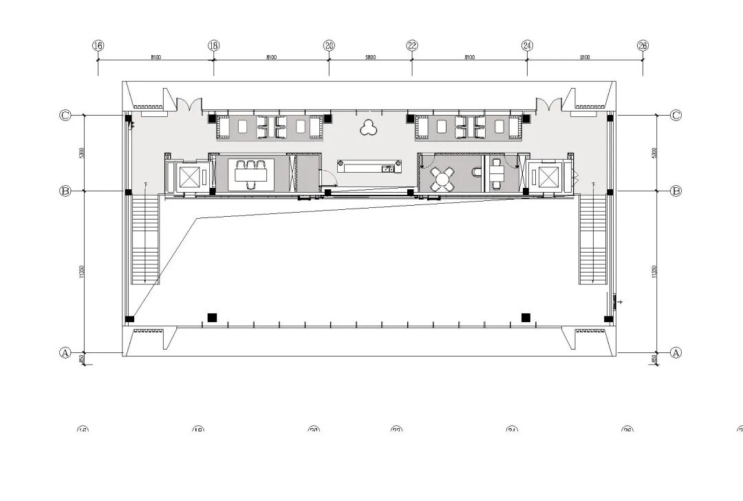
平面图


项目名称 | 银泰城售楼处
Project | Yintai City Sales Office
开发商 | 淳安银泰置地有限公司
Construction | Chun'an Yintai land Co., Ltd
项目地点 | 浙江·千岛湖
Project Location | Qiandaohu,zhejiang
项目面积 | 850㎡
Project Area |850㎡
设计机构 | GLD绿檀室内设计与软装
Design studio | zheJiang lvtan decoration engineering design co. ltd.
设计团队 | 徐帆、黄光南
Design team | Xu Fan、Huang Guangnan
联系方式 | 徐先生 18758569909
Contact Information | Mr.Xu 18758569909
公司创始人介绍:
徐帆,GLD绿檀公司创始人,为浙江大学硕士研究生,曾赴英国伦敦作交换留学,有着多国游历经验。毕业后在绿城房产集团任职多年,不但具有丰富的甲方管理经验,而且有优质的乙方设计经验,在设计领域中对国际时尚文化有着极为敏锐和独到的领悟,极具国际设计视野。

浙江绿檀装饰工程设计有限公司为多种类型的项目提供优质的室内设计和软装陈设服务,包括住宅项目,如样板房、售楼处、会所等;私人住宅如公寓及别墅;餐厅、酒店、服务公寓及商场等酒店、餐饮项目。我们秉承设计无界限的理念,通过文化融合、品牌整合、产品及设计师合作等协作方式得以充分体现并进一步加强。同时,通过和美国、欧洲的顶级品牌和设计师多年的紧密合作,将欧美最顶级的品牌引进中国。
ZheJiang lvtan decoration engineering design co. ltd. provides quality interior design and soft furnishings services for various types of projects, including residential projects, such as model houses, sales offices, clubs, etc. Private residences such as apartments and villas; Restaurant hotel service apartments and shopping malls such as the hotel catering project, we uphold the concept of design has no boundaries, brand integration and product designers through cultural fusion and collaborative approaches to cooperate fully embody and further strengthen at the same time, through and the United States, Europe's top brands and designers work closely together for many years, will be Europe and the United States's top brand into China.
金盘网APP
金盘网公众号
金盘网小程序


