巴夫洛小镇项目上叠样板间
都市人的居所是人的触须,人的故事是城市的血肉,我们怎么生活,城市怎么生长。生活方式是一种精神映照,在巴夫洛叠墅样板软装塑造中,GLD绿檀设计始终相信我们处理的不单单是空间关系,更多的则是时代与生活的关系,不刻意追求手法,还原生活本真的未来感,不遮蔽...
- 项目名称:巴夫洛小镇项目上叠样板间
- 项目地点:江西省 宜春市 高安市巴夫洛生态谷
- 开发商:蓝城集团,绿城中国
- 设计参考价:¥3000/㎡
- 项目类型:住宅
- 形态:示范区
- 市场定位:高端系
- 建成时间:2020年
- 风格:现代
- 主力户型:叠拼 120-144㎡ 3室 1厅 3卫
- 设计面积:130㎡
- 容积率:1.1
- 发布日期:2024-11-01
- 最近更新:2024-11-01 10:26

“科技到了最终阶段,便遇上了想象”
——雨果
都市人的居所是人的触须,人的故事是城市的血肉,我们怎么生活,城市怎么生长。生活方式是一种精神映照,在巴夫洛叠墅样板软装塑造中,GLD绿檀设计始终相信我们处理的不单单是空间关系,更多的则是时代与生活的关系,不刻意追求手法,还原生活本真的未来感,不遮蔽生活浸润人心的力量,在多变的时代环境中,制造多元生活的协调统一。
City residence is tentacles, the person's story is the flesh of the city, how do we live, how cities grow way of life is a kind of spirit, bargh los model soft outfit fold this shape, green wingceltis of GLD design always believe that we are dealing with not just the spatial relationships, more is the relationship between age and life, refraining from technique, restore true sense of the future of life, don't cover the power of life infiltrates the heart, in the era of changeful environment, the life of harmonious and unified diversity of manufacturing.





作为精神与物质并重的栖居之所,家不只需要单纯的形式美,更需要阐发着一种优雅的美学力量。相融而独立的艺术美感,才能予人无尽的生活想象。
客餐厅视野共生、明朗舒适,意式线条感十足的转角沙发配合前卫时尚的吧台餐桌,具备多功能使用的同时,让记忆多维度的存在。厚重的石材、舒适的面料融合在各区域间,达到共生统一的室内居所。
As a spiritual and material and the place of habitation, home not only need a simple form, need more power with an elegant aesthetic harmony and independent artistic aesthetic feeling, is the endless life ability to imagine restaurant guest view clear and comfortable, symbiosis of the Italian line feels dye-in-the-wood corner sofa cooperate the bar table of avant-garde fashion, has the multi-function use at the same time, let the memory of multidimensional existence massive stone fusion between various regions, comfortable fabrics to achieve symbiosis unified indoor place.


作为空间中的一处客房空间,整体调性打造出沉稳温暖的艺术气息,线条简单利落,空间格调优雅精致,流畅利落的结构线条呈现出一副工业设计的前卫感。
As a guest room space in the space, the overall tonality creates a calm and warm artistic atmosphere. The lines are simple and neat, the space style is elegant and delicate, and the smooth and neat structure lines present an avant-garde sense of industrial design.




"最好的空间是这样的,我们居住在其中,却感觉不到自然在哪里终了,艺术从哪里开始。”打开它,有千千万万的故事涌出,每个故事都承载着属于个人的独家记忆。主卧里无论是质感、肌理,或是细微到触摸的感受,都透露出层层递进的魅力。这种“层”并非空间的递进,也不是时间或是色彩关系上的递进,而是一种复合的存在形式,在精神与空间整体性上给人丰富的故事与画面感。
"Best space, in which we live, but can't feel where the natural end, where art began to open it, there are thousands of stories, each carrying personal sole advocate lie in whether texture texture memory, or a slight touch feeling, all show the charm of layer on the layer is not a progressive of space, is not the time or the progressive on the color relations, but the existence of a composite form, the person gives on the mental space and holistic rich stories and pictures.




儿童房,粉色,带来所有的甜美幻想。这该是女孩们梦境中最喜爱的颜色,粉红芭蕾主题的儿童房,守护粉色芭蕾梦。
Children's room, pink, bring all sweet fantasy this should be the girl's favorite color in the dream, pink ballet-themed children's room, guard pink ballet-themed dream.
城市生活给予了都市人多样生活的可能性。一个空间,不再是固化的单一模式,而是一个可商可住、能够跟随居住者的个性喜好不断变化、组合与再生长的多元场所。而这种可生长性,这种在流动中不断产生的新活力,正是这个时代、这个城市的生命力。
苏格拉底曾说过:“一种未经思考的生活是不值得过的。”以未来发展的思维来挖掘需求,从而引导生活体验。
City life offers the possibility of a diversity of urbanite life a space, is no longer the solidification mode of a single, but a can, can live is able to follow the personality of the residents preferences changing combination and regeneration of multiple sites and the growing, this have been born in the course of the flow of new energy, it is the vitality of the city of this age Socrates once said: a life is not worth living without thinking to tap demand in the future development of thinking, so as to guide the life experience.
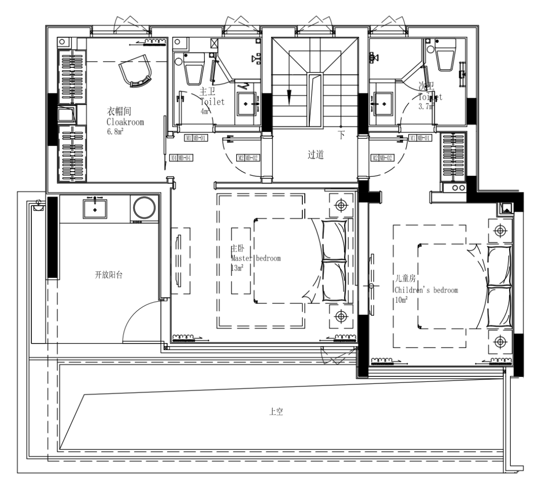
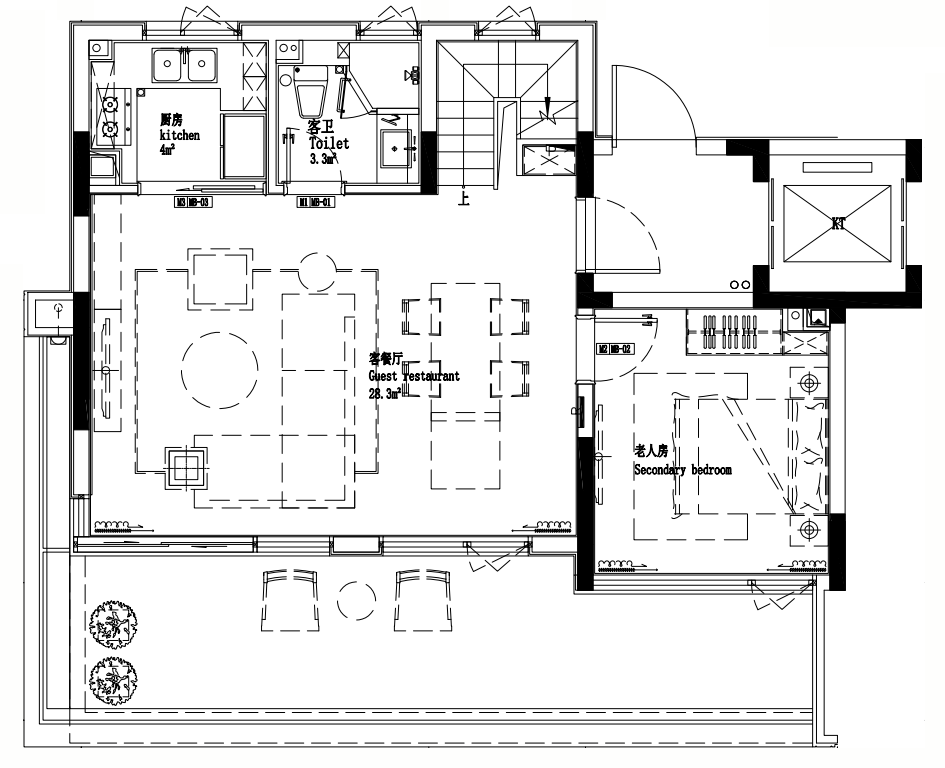
平面图

一层平面图

二层平面图
项目名称丨巴夫洛小镇项目上叠样板间
Project丨Pile up model rooms in the town of Bavlo
项目地点丨江西·宜春
Project Location丨 Jiangxi, Yichun
项目面积丨130㎡
Project Area丨130㎡
开发商| 绿城中国、蓝城集团
Developer | Greentown、Blue city group
开发商团队代表| 吴照琦、张雄杰、吴周虹、龚辉、蒋孝波、龚涛、聂赛群
PartyA'steam|Wuzhaoqi、Zhangxiongjie、Wuzhouhong、Gonghui、Jiangxiaobo、Gongtao、Niesaiqun
设计机构丨GLD绿檀室内设计和软装
Design studio |GLD green sandalwood interior design and soft decoration
设计团队丨徐帆、陈小芹、胡晨露
Design team |Xufan、Chenxiaoqin、Huchenlu
联系方式:徐先生 18758569909
Contact| Mr. Xu 18758569909
公司创始人介绍:
徐帆,GLD绿檀公司创始人,为浙江大学硕士研究生,曾赴英国伦敦作交换留学,有着多国游历经验。毕业后在绿城房产集团任职多年,不但具有丰富的甲方管理经验,而且有优质的乙方设计经验,在设计领域中对国际时尚文化有着极为敏锐和独到的领悟,极具国际设计视野。

GLD绿檀设计
浙江绿檀装饰工程设计有限公司为多种类型的项目提供优质的室内设计和软装陈设服务,包括住宅项目,如样板房、售楼处、会所等;私人住宅如公寓及别墅;餐厅、酒店、服务公寓及商场等酒店、餐饮项目。我们秉承设计无界限的理念,通过文化融合、品牌整合、产品及设计师合作等协作方式得以充分体现并进一步加强。同时,通过和美国、欧洲的顶级品牌和设计师多年的紧密合作,将欧美最顶级的品牌引进中国。
ZheJiang lvtan decoration engineering design co., ltd. provides quality interior design and soft furnishings services for various types of projects, including residential projects, such as model houses, sales offices, clubs, etc. Private residences such as apartments and villas; Restaurant hotel service apartments and shopping malls such as the hotel catering project, we uphold the concept of design has no boundaries, brand integration and product designers through cultural fusion and collaborative approaches to cooperate fully embody and further strengthen at the same time, through and the United States, Europe's top brands and designers work closely together for many years, will be Europe and the United States's top brand into China.
END
金盘网APP
金盘网公众号
金盘网小程序


