蓝城·桃李春风SD户型叠墅
我虽不是版纳人,却对版纳有种炽热的情感,我渴望回归山林,去感受自然的土,流动的风,燃烧的火,凝结的色,林中的木……我想去度假,想去推开城市的繁琐,带上我的家人、朋友一起去感受雨林静穆。当我得知GLD绿檀设计要在这片土地打造一处度假自然的栖所,我内心...
- 项目名称:蓝城·桃李春风SD户型叠墅
- 项目地点:云南省 西双版纳傣族自治州蓝城·西...
- 开发商:绿城中国,蓝城集团
- 设计参考价:¥3000/㎡
- 项目类型:住宅
- 形态:示范区
- 市场定位:高端系
- 建成时间:2020年
- 风格:现代
- 主力户型:合院 120-144㎡ 3室 1厅 3卫
- 设计面积:128㎡
- 容积率:1.1
- 发布日期:2024-11-01
- 最近更新:2024-11-01 10:50

"我们一切的情感,理智和意志上的追求或企图,不过是灵魂上的思乡病。想找一个人,一件事,一处地位,容许我们的身心在这个茫茫的世界有个安顿的归宿。"
——钱钟书
我虽不是版纳人,却对版纳有种炽热的情感,我渴望回归山林,去感受自然的土,流动的风,燃烧的火,凝结的色,林中的木……我想去度假,想去推开城市的繁琐,带上我的家人、朋友一起去感受雨林静穆。当我得知GLD绿檀设计要在这片土地打造一处度假自然的栖所,我内心欢喜雀跃,我知道这就是我所向往的人间天堂。
Though I am not a resemblance, but the resemblance is blazing emotion, I am eager to return to forest, to feel the nature of the soil, the flow of wind, fire, condensation of color, wood in the forest I want to go on holiday, want to go to the open city of trival, bring my family and friends together to feel serene when I learned that rainforest green wingceltis of GLD design for holiday in this piece of land to build a natural habitat, my heart is happy, I know this is what I desire a paradise on earth.





我想要极简自然,想要隽永内敛,想要在一片自在的空间内感受生活的价值。GLD绿檀设计给我带来了比例、层次、透视、更多了拉近了我们和空间之间的亲密关系。原木、藤编、麻草,客厅软饰间的沉稳明亮,与阳光、微风映衬,一种迎新的喜悦感油然而生。
I want natural, minimalist meaningful inside collect, want to want to experience life in a free space green wingceltis of GLD design brings me the value of ratio level perspective more closer to our room and the close relationship between log the cane makes up hemp grass, composed between soft act the role of the sitting room bright, and sunshine breeze set off, a new happiness arises spontaneously.


意于生态的汲取与植入,温润流畅的线条在空间里流动和穿透。我眼下的餐厅不仅使我满足果腹所需,事实上,一家人团聚的不仅在于饭餐,而是内心的一股惬意的满足。我爱我的家人,就如同爱这片暖心的居所。
It means the absorption and implantation of ecology. The warm and smooth lines flow in the space and penetrate my current restaurant, which not only satisfies the needs of my stomach. In fact, the reunion of a family is not only about meals, but also a comfortable satisfaction in my heart.


一寸寸的自然蔓延在我每个空间中,细致的工艺和舒适的色调使我触发昨日的回忆以及未来的憧憬。GLD绿檀设计所勾勒出来的简单不单单只是表象元素的明了,而是现今所谓“去风格”的空间理念。我被之理念所动容,也相信居所的一切可能性。
Inching natural spread in my every space, meticulous process and comfortable tonal make me trigger memories of yesterday and dreams of the future green wingceltis of GLD design sketch elements not only representation of simple and clear, but nowadays the so-called style space concept I was deeply moved by the idea of also believe that the home of all possibilities.





在主卧我看到了理性克制的距离感与舒适惬意的松弛感之间寻得了平衡,温暖的意味不断蔓延开来,内敛且沉稳的色彩拥有安定人心的力量,让我所有的情绪都在这里得到舒缓,我找到了自我的归属感,我相信这就是我理想中的卧室。
In the master bedroom I see the distance of the rational restraint and find a balance between comfortable sense of relaxation, warm meaning constantly spread, inside collect, composed of colors have the power to restore calm, let all my feelings get slow here, I found myself a sense of belonging, I believe that this is my ideal bedroom.



未来的日子里,我渴望拥有一位小公主,我渴望在这一处居所给她创造出一段美好的浪漫梦境,无论她是古灵精怪的小妞,还是文静的乖乖女,亦或是大大咧咧的女汉子,无论她是哪种女孩,当她提起裙摆在我面前舞蹈时,我知道她永远都是我们心中最珍贵的家人。
In the future days, I am eager to have a little princess, I am eager to in this place for her to create a beautiful romantic dreams, no matter she is mischievous little girl, or a quiet quiet, or careless man, no matter what kind of girl is she, when she filed a skirt dancing before me, I know she will always be in our heart the most precious family.
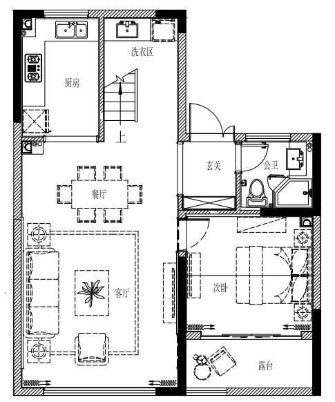
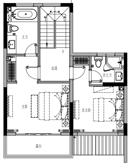
平面图

一层平面图

二层平面图
项目名称丨蓝城·桃李春风SD户型叠墅
Project丨Bluetown Taoli Chunfeng type SD
项目地点丨云南·西双版纳自治州
Project Location丨Xishuangbanna, Yunnan
项目面积丨128㎡
Project Area丨128㎡
开发商| 俊都集团、蓝城集团
Developer| Jundu group、Blue city group
甲方团队| 郭克绣、唐超、王金迪、张进波、韩少杰
Party A's team| Guokexiu、Tangchao、Wang Jindi、Zhang Jinbo、Han Shaojie
设计机构丨GLD绿檀室内设计和软装
Design studio|GLD green sandalwood interior design and soft decoration
设计团队丨徐帆、陈小芹
Design team | Xufan、Chenxiaoqin
联系方式|徐先生 18758569909
ContactInformation| Mr. Xu 18758569909
公司创始人介绍:
徐帆,GLD绿檀公司创始人,为浙江大学硕士研究生,曾赴英国伦敦作交换留学,有着多国游历经验。毕业后在绿城房产集团任职多年,不但具有丰富的甲方管理经验,而且有优质的乙方设计经验,在设计领域中对国际时尚文化有着极为敏锐和独到的领悟,极具国际设计视野。

GLD绿檀设计
浙江绿檀装饰工程设计有限公司为多种类型的项目提供优质的室内设计和软装陈设服务,包括住宅项目,如样板房、售楼处、会所等;私人住宅如公寓及别墅;餐厅、酒店、服务公寓及商场等酒店、餐饮项目。我们秉承设计无界限的理念,通过文化融合、品牌整合、产品及设计师合作等协作方式得以充分体现并进一步加强。同时,通过和美国、欧洲的顶级品牌和设计师多年的紧密合作,将欧美最顶级的品牌引进中国。
ZheJiang lvtan decoration engineering design co., ltd. provides quality interior design and soft furnishings services for various types of projects, including residential projects, such as model houses, sales offices, clubs, etc. Private residences such as apartments and villas; Restaurant hotel service apartments and shopping malls such as the hotel catering project, we uphold the concept of design has no boundaries, brand integration and product designers through cultural fusion and collaborative approaches to cooperate fully embody and further strengthen at the same time, through and the United States, Europe's top brands and designers work closely together for many years, will be Europe and the United States's top brand into China
END
金盘网APP
金盘网公众号
金盘网小程序


