广州·万科·瑧山府
外有云山,内用归家礼序,以“外庭落客、中堂门户、内庭对景”的三进空间结构,深隐于繁华闹市中。入口以米白色云纹石材与高绿篱模块围合,形成隐贵雅奢的入口空间。通过规整的景墙、绿篱行程内外区隔,结合水景、灯具、组合花钵等共同打造高级场域,实现从容、舒缓的...
服务范围:地产开发-住宅
销售参考价: 66000 元/平方米- 项目名称:广州·万科·瑧山府
- 项目地点:广东省 广州市 白云区白云白云大道7...
- 开发商:万科集团
- 销售参考价:¥66000/㎡
- 项目类型:住宅
- 形态:示范区
- 市场定位:改善系
- 建成时间:2025年
- 风格:现代
- 主力户型:高层 平层 120-144㎡ 4室 2厅 2卫
- 占地面积:8691㎡
- 建筑面积: 49712㎡
- 容积率:3.47
- 发布日期:2025-04-23
- 最近更新:2025-04-23 11:52
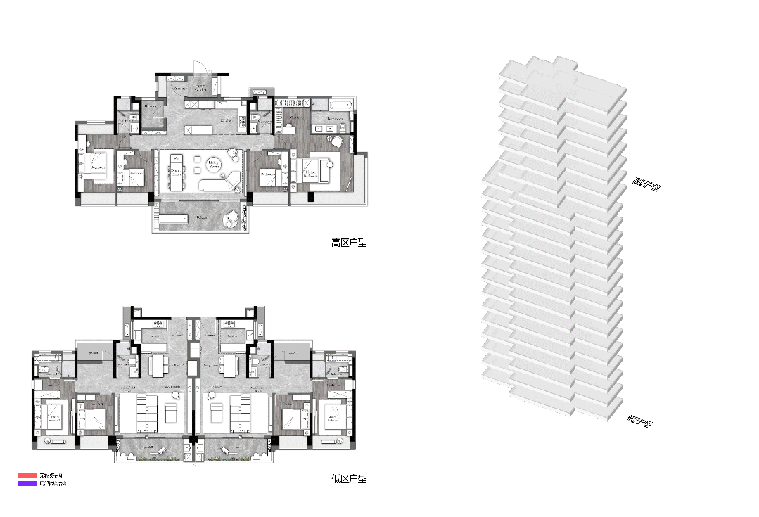
随着城市化进程的加快和人口的增长,土地资源日益紧缺,城市建设面临着巨大的压力和挑战。如何在有限的空间内提供足够多、舒适优质的住宅,成为了城市规划和建筑设计的重要课题。传统的住宅设计往往采用平面布局,将空间划分为单一的功能区域,这种方式虽然简单明了,但也存在着一些缺点,如空间利用率低、功能单一、缺乏变化、视野受限等。为了克服这些问题,一种新的住宅设计方法——高低分区设计应运而生,我们将以万科·瑧山府为例,来阐述如何在不设置转换层的条件下实现高低分区设计。


▲万科·瑧山府效果图©日清设计


万科·瑧山府位于广州市白云新城,毗邻白云山风景区,是白云山西侧景观视线的重要组成部分。项目周边配套成熟,交通极为便利。

▲项目区位
用地原为广信金兰花园二期,属于万科接手的广信资产包的一部分。项目功能涵盖住宅、商业及公建配套。为充分考虑主干道云城东路城市界面与白云山界面的关系,经过建筑师多轮方案讨论及推敲,提出了3栋点式高层的方案。



▲2栋高区一线云山视野


项目整体定位为高端社区,打造白云新城高品质舒适人居。在有限的用地范围内,户型产品根据高低区景观资源差异在竖向上使用分区策略。

▲视线分析
因项目建筑限高80m,单体塔楼不具备类似超高层建筑的避难层作为转换层;在没有转换层的前提下,通过建筑、结构、设备等多专业的配合实现高低区户型变化,使得户型分布实现竖向分区,户型与景观资源完美适配,打破了垂直方向上户型大小只能依赖于转换层的传统设计方式。可以让更加多元的用户群体共处同一立体社区,增加了整个社区的丰富性与多样性。

低区以朝向为主导,布置110、134 m²轻奢产品;高区以景观为主导,拥有较好山景资源的位置则打造186m²奢华大户型。

▲户型分布图
高低区建筑关系处理:高区建筑轮廓在控制户型面积基础上尽量维持低区的外轮廓关系,开间原则上尽量对位;主卧及餐客厅等通过内部隔墙调整以匹配大户型的级差。

高低区结构关系处理:高区结构在匹配户型格局基础上尽量维持低区的结构关系,客厅位置结构进行局部转换以实现高区户型的LDKB大方厅效果。

高低区设备关系处理:高区及低区户型厨房烟井分设并直通屋顶、卫生间降板范围及水管井对位,高区主卫通过局部外挑实现主卫四件套。












外有云山,内用归家礼序,以“外庭落客、中堂门户、内庭对景”的三进空间结构,深隐于繁华闹市中。入口以米白色云纹石材与高绿篱模块围合,形成隐贵雅奢的入口空间。通过规整的景墙、绿篱行程内外区隔,结合水景、灯具、组合花钵等共同打造高级场域,实现从容、舒缓的归家心境变化,内部私家领域感更强。

▲小区主入口实景©九里建筑摄影
本项目并非规则性地块,高层依次排开,以风雨连廊形成主要的归家庇护动线。连廊全长约120米,将原有的社区长方形庭院在连廊之内被有意分隔为大小不同的空间,犹如手卷一般的画卷展开,透过每一个连廊的框景看出去,都像是被定格的山水画面。人们在步行期间,又能感受到画面的场景丰富层次。

9米挑高接待大堂采用中轴对称的布局手法将人们的视线聚焦于空间尽头,沿用岭南独特元素符号及建筑表现手法,为空间营造出强烈的独具岭南韵味的秩序感与仪式感。

▲小区接待大堂实景图


项目名称:万科·瑧山府(广州)
设计时间:2021年8月
工程地址:广州市白云区
用地面积:10357.88 m²
建筑面积:30182.13 m²
容积率:2.91
规划及单体方案设计:XAA冼剑雄联合建筑设计事务所詹涛工作室
XAA主创建筑师:田望
XAA建筑方案团队:洪怀杰、丁翼、杨涛、李欣健、方贵民、苏诗茹、范明锋、王琰、唐安渊、林伟杰
业主单位:广州市溪泰房地产有限公司
业主团队:杨凯、李智、张佳文、朱晓涵、周芳、黄智杰、余建
建筑单体外立面方案设计:上海日清建筑设计有限公司
施工图设计:深圳市华阳国际工程设计股份有限公司
室内设计:广州燕语堂装饰设计有限公司、深圳市艾斯蒂设计有限公司
景观设计:北京创翌善策景观设计有限公司、广州普邦园林股份有限公司
金盘网APP
金盘网公众号
金盘网小程序





