南宁北投·上境
北投上境项目位于风景如画的南宁市青秀区,紧邻清厢快速路,交通便利,区位优势显著。建设单位北投产城集团同步推进多个地块的开发,包括商业和教育设施,不仅展现出其卓越的开发实力,更是体现了其对教育的重视。
- 项目名称:南宁北投·上境
- 项目地点:广西壮族自治区 南宁市 青秀区厢竹大...
- 开发商:广西北投产城投资集团有限公司
- 设计参考价:¥18/㎡
- 销售参考价:¥10500/㎡
- 项目类型:住宅
- 形态:大区
- 市场定位:改善系
- 建成时间:2024年
- 风格:现代
- 主力户型:高层 平层 120-144㎡ 4室 2厅 2卫
- 占地面积:45735.73㎡
- 建筑面积: 166300.04㎡
- 设计面积:166300.04㎡
- 容积率:2.8
- 绿化率:35%
- 发布日期:2025-05-07
- 最近更新:2025-05-07 17:21


设计团队在项目现场

简洁大气的立面设计(效果图)
屋顶起翘的处理方式,不仅象征性地展示了建筑所在区域的山地风貌,重塑其“在地性”,也是通过现代设计手法,对经典岭南传统建筑元素——“镬耳”的再次演绎。

为了确保建筑形象的整洁统一,通过优化平面设计,运用设备板与竖向装饰构建弱化建筑凹槽,规整建筑形体,形成一体化遮罩。

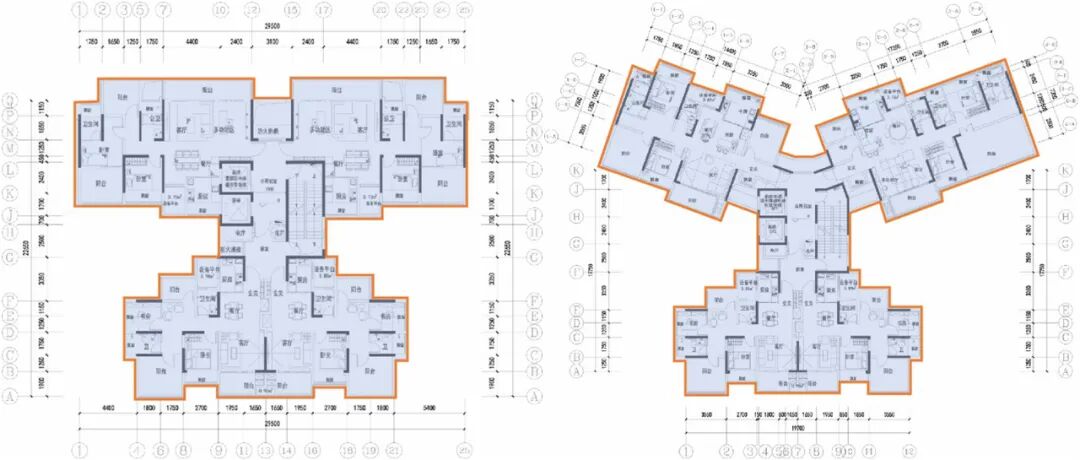
标准层平面

...
中泰设计始终相信,通过不懈努力和对客户需求的深刻理解,我们能够继续为客户提供更多价值,共同打造更多成功作品。也期待在未来,中泰与更多客户携手,以我们的专业服务,铸就更多信任与合作的桥梁。










金盘网APP
金盘网公众号
金盘网小程序


