天安星河广场一期天安中心办公楼
天安星河广场南区,坐落于惠州市惠阳区的心脏地带。项目西面紧邻人民四路,北侧则依傍淡水河,不仅拥有了得天独厚的滨河景观,更成为淡水河中游的一处亮丽风景。距离惠阳区政府及市政广场仅900米之遥,无论是政务办理还是公共活动,均可轻松抵达。而距惠阳商务中心约...
服务范围:地产开发-商业
销售参考价: 价格待定华南地区写字楼
入围项目
- 项目名称:天安星河广场一期天安中心办公楼
- 项目地点:广东省 惠州市 惠阳区淡水人民四路
- 开发商:天安中国
- 项目类型:商业
- 形态:大区
- 建成时间:2024年
- 风格:现代
- 占地面积:4302.6㎡
- 建筑面积: 23391㎡
- 容积率:4.85
- 绿化率:13%
- 发布日期:2025-10-17
- 最近更新:2025-10-17 15:11
前 言

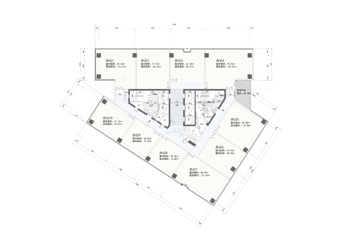
懵懂的幼童用积木进行搭接,垒造出他们心中幻想的高楼大厦与繁华城市。那些简单摞起的盒子,我们可以看做建筑的初始形态。随着时间的推移,现代建筑技术日新月异,钢筋水泥逐渐取代了古老的砖瓦木石。城市的轮廓越来越宏伟,一座座摩天大楼拔地而起,傲然矗立,直指苍穹。这些现代建筑,更像是为了彰显城市的繁华与力量而生,成为了都市中不可或缺的标志性符号。 然而,当我们从对“现代化”的狂热追求中冷静下来,以更为理智的目光去审视城市、建筑与居民之间的关系时,却不难发现一个令人深思的问题:在设计和建造这些宏伟建筑的过程中,人的实际需求和使用体验似乎经常被忽视。我们是否应该反思,真正的建筑之美,究竟应该体现在哪些方面? 我们更加憧憬一种理想的建筑状态,那就是建筑不仅仅是城市形象的展示面,更应该成为每一个生活在城市里居民的温馨港湾。在追求宏伟与气派的背后,我们希望再次回归建筑最本质的意义——服务于人。将空间还给居民,让建筑重新回归人性尺度。这并不意味着要摒弃高楼大厦,而是要在设计中更多地考虑人的感受和需求。建筑不应只是冷冰冰的混凝土堆砌,而应成为有温度、有情感的生活空间。它应该与人们的日常生活紧密相连,满足人们的实际需求,提供舒适、便捷、安全的生活环境。 为了实现这一愿景,我们需要将那些高耸入云的“巨碑”式建筑,转变为更加灵活、多元的“积木”式建筑。这样的建筑不仅可以根据居民的实际需求进行自由组合和变化,还能够更好地融入城市肌理,与周边环境和谐共生。这将是我们将面对城市界面展示的建筑,转换为面向居民生活友好的建筑的重要一步,也是未来城市建筑发展的必然趋势。 项 目 概 况 —— ◎区位分析图 天安星河广场南区,坐落于惠州市惠阳区的心脏地带。项目西面紧邻人民四路,北侧则依傍淡水河,不仅拥有了得天独厚的滨河景观,更成为淡水河中游的一处亮丽风景。距离惠阳区政府及市政广场仅900米之遥,无论是政务办理还是公共活动,均可轻松抵达。而距惠阳商务中心约1.6公里,购物休闲同样便捷。天安星河广场南区,无疑是惠阳-大亚湾次区域的中心焦点。 ◎场地分析 该项目用地大致呈三角形,东西长113米,南北宽62米,总面积达4302.6平方米。建筑控制线北侧沿用建筑红线退线5米,南侧东侧为原用地界线。北侧紧邻淡水河,这得天独厚的自然条件使得该区域的建筑可紧贴建筑控制线建,日照条件复杂。南侧则为商业建筑区域,建筑按照用地界线精确布置,确保了充足的建筑间距,使得退界线内的空间得以充分利用,为项目的多样性和功能性提供了坚实的基础。 平 面 衍 变 与 立 面 设 计 语 言 —— 01.蔓-设计是一种自然生长: 设计像藤蔓一样,从某个初始点悄然萌发,然后有序且自然地向外延伸、拓展。在设计之初,我们秉持“化繁为简”的原则,运用简洁至极的矩形元素来呼应场地已有建筑、顺应城市肌理,同时最大程度确保室内空间功能的实用性。 ◎总图布局 当我们把视角拉高到天空,可以看到本案地块位于城市道路交叉口,北面是淡水河丰富的河岸景观,南面紧邻已建成的一期A区弧线型住宅区,和呈新月状规划中的B区商业。东面的二期三期是以居住为主的商住社区。此外,B区商业靠近本案的位置是一 个放大的圆形空间节点,这里便自然形成一个标志性的广场与出入口。天安星河广场全三期建设是一个集商业,居住,教育,休闲于一体的生活化区域。 ◎体块分析 三角形核心筒的引入,不仅有效地消解了异形空间带来的布局难题,优化了空间布局,更确保了办公空间的矩形比例与舒适度。而平面柱网的设计,则基于1500mm的模块化理念,构建了整体为8500mm的平面柱网,并在转交交接处进行了灵活的尺寸调整。 ◎标准层平面图 02.隐-设计是一种内敛的美学: "Less is more"不仅仅是一种设计理念,更是一种深入骨髓的逻辑美学。它倡导用克制、简约的设计语言,摒弃繁琐,以少胜多,从而营造出层次丰富、感受深沉的空间体验。 这种设计理念注重每一个细节与节点的精雕细琢,高要求与精准把控无处不在,每一处都流露出对品质的极致追求。正是这种对细节的执着与热爱,才能赋予作品高端的品质感,让人在静谧中感受到设计的力量,体验到简约背后的丰富与深刻。修长的竖向开窗比例强化了整栋楼高耸的感觉,姿态更加优美轻盈。竖向的铝材格栅在隐藏设备的同时,打破连续的大面积的玻璃幕墙带来沉闷感。 ◎半鸟瞰实景图 ◎项目沿人民四路实景图 03.造-设计是一种从无到有的建构: ◎入口广场 比较起常见的摩天大楼直接落地,天安中心办公楼项目里,地面与苍穹之间,并非简单的直线连接,而是巧妙地通过错落有致的体块,编织出一个个富有特色的空间情境。这种设计手法不仅巧妙地消解了百米巨塔的庞大与沉重,更在面向城市河流的街角,为行人营造了一种温馨而亲切的空间体验。行走其间,人们不再感受到高楼大厦带来的压迫与疏离,反而能在繁华都市中找到一丝宁静与归属。这不仅是为城市增色的建筑,更是为市民生活而设计。 ◎项目远景图 ◎室内实景图 在惠州天安中心办公楼的设计探索中,我们深刻体会到,未来的建筑不应仅是城市天际线上的“巨碑”,而应是灵活多变的“积木”,能够随居民需求自由组合,融入城市肌理,实现与环境的和谐共生。 通过“蔓”的设计理念,我们让建筑如藤蔓般自然生长,与城市共呼吸;以“隐”的美学追求,赋予建筑内敛而深邃的品质,让空间充满诗意;而“造”的匠心独运,则巧妙地从无到有,将生硬冰冷的建筑转化为富有生命力的生活空间。 天安中心办公楼,正是这一愿景的生动实践,它不仅是一座建筑,更是对未来城市生活方式的深刻洞察与美好期许。在这里,建筑不再是冰冷的混凝土堆砌,而是有温度、有情感的生活空间,引领我们走向更加人性化、和谐共生的城市未来。 ◎首层平面图 ◎标准层平面图













◎项目立面图1-2

金盘网APP
金盘网公众号
金盘网小程序


