- 项目名称:南京卓越栖霞·栖樾府
- 项目地点:江苏省 南京市 浦口区江苏省南京市浦...
- 开发商:卓越集团
- 设计参考价:¥4000/㎡
- 销售参考价:¥33732/㎡
- 项目类型:综合楼盘
- 形态:示范区
- 市场定位:高端系
- 建成时间:2020年
- 风格:现代
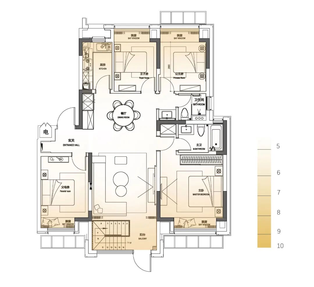
- 主力户型:叠拼 210㎡以上 4室 3厅 4卫
- 设计面积:228㎡
- 容积率:3
- 发布日期:2020-09-08
- 最近更新:2021-09-15 17:27

以 “无 界”为主题
意在引导人们用更大胆的视角
去发现“界限”之外更奇妙的空间
以艺术为契机
开启对美、对生命新的观察和思考
赋予此都会住宅闲静的「居心之所」样貌


栖樾府是卓越首进南京江北核心区的品居产品体系,本案项目组在对目标客群进行深度访谈和大数据调研后,描摹出未来社区生活的人群画像,从家庭、艺术、时尚、社交与沟通五个维度上进行目标人群透析,结合当下人居生活模式进行打造高端品质人居人说;作为江北核心区首个纯低密住区,紧邻青龙绿带与七里河风光带,居住条件优越,容积率低至1.5,打造以洋房和小高层为主的纯低密住区,是繁华的核心区里难得的低密之地,引领江北核心区进入全新居住时代。


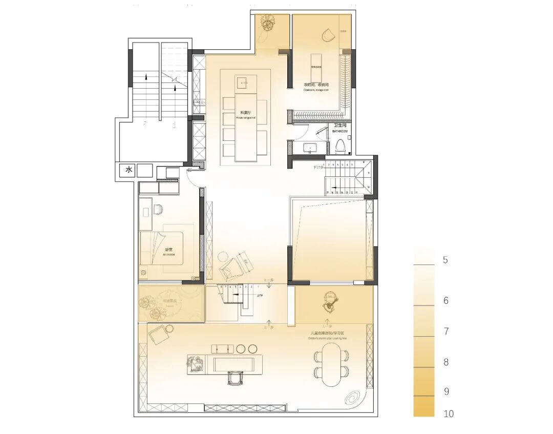
△ 夹层平面图

△ 负一层平面图









主人的日常





一层收纳 丨在传统收纳量的基础上,针对需要结合设计,最大程度的增加房屋内的收纳空间,装下关于‘家’ 的一切,巧妙运用各种收纳格子,把日常肉眼可以看见的“杂物”放置在其中,避免了眼前的杂乱,同时,也避免了物品到处找不到的尴尬,让生活日常更加简单方便。

一层光照 丨通透的结构使住宅的每个空间能够充分享受阳光,感受自然又富有诗意的生活日常,充足日光一方面保证了室内的光照与温度,另一方面也展现了人文与美学的收益,在高峰时段减少用电量,从而减弱环境影响,生活、自然、环保与健康的和谐,便是家人与宅运的和谐。



爷爷和奶奶没有其他的爱好,就好一口茶,茶室是他们除了房间待的时间最长的地方,有的时候隔壁的爷爷也过来一起喝茶聊天,再满目同样不同质的茶壶面前,挑选最适合当天泡茶的茶壶,喝下最香的茶,追述过往时间里的高光时刻。

茶室中还缘着茶室氛围和采光井光照设计了一个‘万能空间’,爷爷会在这儿茗茶聊天,爸爸会在这儿捧书就咖啡,姐姐在这儿数着日光遐想,它的可能因每个人而丰富。






客卧虽然在底下,但是采光井的存在让它一点也不逊色于一层空间的采光,以高品质、设计感、舒适、简约为设计基点。而这少不了素雅白的参与,干净、纯粹的色调,直指人心,带来超凡的居住享受。
让每一位到来的‘家人’不用担心回家的路,这里就是你家,让每份“爱”都有归宿,只用关心今晚的月色和梦。

夹层收纳 丨无处不在的收纳空间装得下每一位家人的兴趣爱好,创造更懂‘家’的空间,不用纠结‘丢’或‘买’的问题,将器物留住,便是珍藏记忆的一种方式,让生活日常更加享受和自然。

夹层光照 丨夹层利用采光井和室内天井将阳光引进来,这巧妙的设计让夹层空间明朗且不阴暗,并能使空间充分吸收阳光的热量,感受与一层自然光一样的温暖,日光点亮空间内家人的小幸福,与空间话着不停歇的自由与轻盈。









爸爸和妈妈当时毫不犹豫买下了‘储藏室’的空间,部分改造成了现在影音室,它就像饭后甜点一般的存在,让满足更满足,让幸福更幸福,在周五或者周六的晚上,一家六口窝在一起看一部电影,就是‘家’的意义。

负一层收纳 丨在负一层的空间里充分展示了空间的收纳美学,将收纳与装饰结合于各面墙面中,创造高效能收纳,却不显突兀,轻松打造大器住宅的收纳美学,你居住的房间,就是你生活的样子,懂得生活之美,也会在生活中打造收纳之美。

负一层光照 丨 虽处负一层,但是最大限度地利用了夹层的采光天井,让此空间也能享受到自然光线的那份和煦,结合通过各种光照来制造空间氛围,形成层次,从顶灯到柜灯处处关照居家的每一个小细节,打造奢华静雅之所,捕捉动人自然之美。
GND 恩嘉设计:
以当下的流行元素,用意式、现代和品质奢华进行重组来表达“无界”不受固有思想的束缚,呈现出新的自由之态,意在引导人们用更大胆的视角去发现“界限”之外更奇妙的空间。在亲切舒适的空间里,一起探讨包容、创新和突破的生命话题。
空间中流动着的是着时光中的经典,糅杂着对每一位家人的爱,包容着每一位的需要,你定位你的角色, 当你走进来,就有为你准备好的空间。
项目名称:南京·栖樾府
开 发 商 :卓越集团、栖霞建设
硬装设计:GND设计集团 恩嘉设计
软装设计:GND设计集团 恩嘉设计
软装执行:GND设计集团 恩嘉设计
设计总监:宁睿
设计团队:徐珊珊、胡旭婷
甲方管理团队:代成伟、杨翔、苏裕、祝凯、王昌龙、李卉、王萌
项目地址:南京
设计面积:282㎡
竣工时间:2020年08月
摄影机构:ingallery
工程资料(含设计、工程、材料)
金盘网APP
金盘网公众号
金盘网小程序




