梁平·泽科大河悦府售楼处
本案用地位于重庆市梁平旧城区。南侧为城市主干路大河路,左侧紧邻梁平中心汽车站,北侧为规划城市公园,视野宽广,环境优美。我们采用了现代东方的设计手法,使其与环境相融合,敞迎的绿意,愈发静美,幽静而深远,心境也自然地褪去凡尘,被这沉静、无华所触动。
- 项目名称:梁平·泽科大河悦府售楼处
- 项目地点:重庆市 重庆市 梁平县大河路
- 开发商:泽科集团
- 设计参考价:¥3000/㎡
- 项目类型:商业
- 形态:示范区
- 建成时间:2020年
- 风格:现代
- 占地面积:52000㎡
- 建筑面积: 150000㎡
- 设计面积:800㎡
- 容积率:2
- 绿化率:30%
- 总户数:1062
- 装修类别:毛坯
- 发布日期:2021-01-29
- 最近更新:2021-06-17 11:28
敞迎的自然 幽静而深远
本案用地位于重庆市梁平旧城区。南侧为城市主干路大河路,左侧紧邻梁平中心汽车站,北侧为规划城市公园,视野宽广,环境优美。我们采用了现代东方的设计手法,使其与环境相融合,敞迎的绿意,愈发静美,幽静而深远,心境也自然地褪去凡尘,被这沉静、无华所触动。


整体以现代简约、硬朗的线条中追求细致、和谐的空间平衡感。完整地彰显出东方人最本质的冷静、沉稳、朴实又不断求新求变的性格特点。

/
前厅
RECEPTION AREA
/

△ 印象派和立体主义的结合
借鉴洛朗·马丁(Lonet Martin)MRBS的艺术装置在平衡和悬吊中克服了重力,创造出张力、重量和动感。这些平衡的方式让人印象深刻,展示出空间力量。

阿尔贝托·贾科梅蒂(Alberto Giacometti)最著名的是雕塑形式的人形雕塑,四肢细长。引用他雕塑的艺术形式以极大的强度和感性描绘了在空虚的空间中迷失的人类,在留白的空间中升华,予以观者思考的空间,你在这样的强化主观表示中又看见了怎样的精神世界呢?
/
回廊
CORRIDOR
/

/
销控区
SALES CONTROL AREA
/


△ 敞迎的自然
顺着回廊阶梯回旋而上便看见引用珍妮·奥普哈芬(Jeanne Opgenhaffen)作品主要表达内部和外部体验之间的张力, 独特的材料、颜色纹理和成分,以寻求了谐音和张力的精妙平衡。
装饰画将大自然的配色引入,呈现出壮丽山河引人遐想,奠定售楼处贴近自然的基调。
/
洽谈区
NEGOTIATION AREA
/



Hay Uchiwa扶手椅开放的形状和高靠背和落地灯呼应,为这个空间增加了独特的气质。
/
散座洽谈区
SEAT TO DISCUSS AREA
/



线性吊灯为整个雅致空间增加动感,光影和空间发生反应,波光粼粼。
/
水吧
WATER BAR AREA
/


特色的扁圆形吊灯与洽谈区呼应,点亮空间,极具自然意味的花艺,通透的吧柜艺术摆件为为驻足者营造出透气轻松的休息空间。
/
儿童活动区
KID'S AREA
/



圆润的造型,丰富的色彩,趣味的兔子雕塑将童趣放大,顶部的泡泡吊灯制造出梦幻光影效果。
/
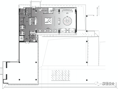
设计图纸
Design drawings
/





△ 效果图
项目名称 | 重庆泽科·大河悦府售楼处
项目地点 | 重庆市梁平旧城区
业主单位 | 泽科集团有限公司
甲方设计团队 | 贺文鑫、刘斐
甲方工程团队 | 朱洪、杜泽川、冉勇、李波
项目摄影 | 一千度视觉


金盘网APP
金盘网公众号
金盘网小程序



