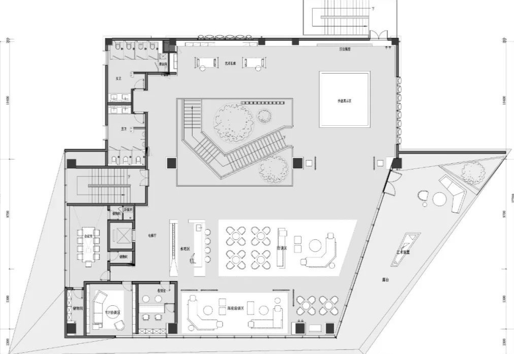
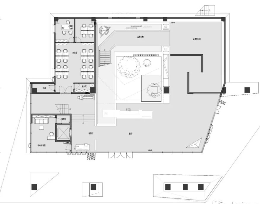
常州阳光城宸悦销售中心
阳光城·常州宸悦销售中心位于城市自然生态区,以简洁、灵活、开敞的语言,表达“城市自然”的设计意象。结合山水自然元素,将光与影引入空间,呈现自然律动之美,打造具有东方诗意与美学态度的品质空间。
- 项目名称:常州阳光城宸悦销售中心
- 项目地点:江苏省 常州市紫荆公园旁
- 开发商:阳光城
- 设计参考价:¥2500/㎡
- 销售参考价:¥28000/㎡
- 项目类型:住宅
- 形态:示范区
- 市场定位:改善系
- 建成时间:2020年
- 风格:现代
- 设计面积:920㎡
- 容积率:1.8
- 发布日期:2021-04-25
- 最近更新:2021-09-14 17:14
《人,诗意地栖居》是德国19世纪浪漫派诗人荷尔德林的一首诗,后经海德格尔的哲学阐发,“诗意地栖居在大地上”,就成为几乎所有人的共同向往。

































工程资料(含设计、工程、材料)
材料及其应用场景
地砖
地砖
地砖
地砖
墙纸
墙纸
墙纸
墙纸
洁具
洁具
洁具
洁具
灯具
灯具
灯具
灯具
金盘网APP
金盘网公众号
金盘网小程序





