无锡·新城·天一府
置身车来车往的闹市之中,我们想要的展示区不是以往将空间封闭起来的闭塞场所,而是将场地打开,为来往的人们提供一处休息娱乐的灵动空间,展示景观特点的同时,为展示区注入源源不断的生机与活力,烘托新生与温暖的氛围。映射自然的美好,汇集生活品质,承载健康生态...
- 项目名称:无锡·新城·天一府
- 项目地点:江苏省 无锡市 锡山区新明路和友谊路...
- 开发商:新城控股
- 设计参考价:¥40/㎡
- 销售参考价:¥26000/㎡
- 项目类型:住宅
- 形态:示范区
- 市场定位:刚改系
- 建成时间:2021年
- 风格:现代
- 主力户型:小高层(7-11层)
- 设计面积:62110㎡
- 容积率:2
- 发布日期:2021-05-25
- 最近更新:2021-09-03 12:34




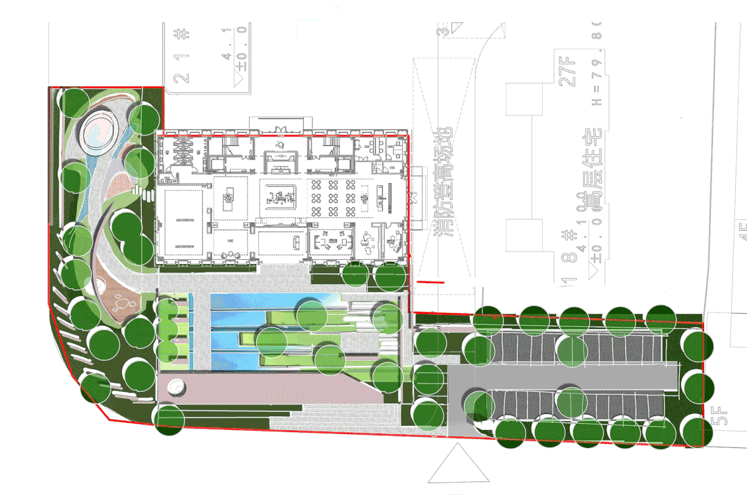
天一府展示区设于新明路和友谊路的转角交界处,整体大致呈L形,沿街南北走向。



| 园区景观 |
展示区沿街是一片较长的组合水景墙,从路口转角处一直延伸到南侧的主入口。
南侧主入口处,景墙上嵌着的是泛着古铜色光泽的镂空板,灯光从镂空处缓缓溢出,仿佛是那蝴蝶振翅的影迹。







转向步道的左手边,所见是展示区的中心水景。参差条带状的绿植带上,嫩黄的佛甲草悠然的伸展着枝叶,在几个绿植条带的中心位置,是一组以抽丝化蝶为主题的现代雕塑,绵延的蚕丝翻卷、起伏,丝丝缕缕,轻盈而又蕴含着力量;几只蝴蝶蹁跹于丝环之上,仿佛,下一刻将要扑闪着它绚丽的羽翼,振翅飞翔。在条带绿植的端头,一束束的跌水落下,与周围的涌泉和一排排波光泉一同喷薄、跌落,飞溅起层层晶莹的水花,这是它们在为蝴蝶的新生合奏一曲婉转曼妙的动人乐章。











至| 转角对景空间
为突出售楼处的空间主体感,售楼建筑在标高上与市政道路间设有0.7m的高差,景观利用条带种植将高差消化于道路和种植带的交接处,将空间的落差完美融合于景观营造之中。伴着右侧涌泉跌水的自然之乐,拾级而上,踏步于树影斑驳的步道,享受光影与声乐的交响。

行至平台,映入眼帘的是一主题对景墙。镂空的银色蝴蝶轻轻闪动着双翼,挥洒着闪闪荧光,静谧而又灵动,场景浸润着清新与愉悦的氛围,沐蝶——栉风而清心。

站在前场空间的另一入口处向内看去,正对的是与主水景相似的条带种植,种植带上参差阵列着迎宾士一样的高大乔木,好似正向前来参观的人们列队迎接,树阵间散置了几块造型别致的长片状置石,片石高低起伏,为这处空间增添了一丝韵律感。



悦| 儿童体验空间
售楼处的北面是一块由植物景观围合的小空间,在这里设置了一个小型的儿童游戏体验区,多彩的条带塑胶场地与亮丽的游乐器械相结合,将空间赋予了儿童眼中的缤纷颜色,给予孩童攀爬、穿越等游戏的空间。



| 结语 |
置身车来车往的闹市之中,我们想要的展示区不是以往将空间封闭起来的闭塞场所,而是将场地打开,为来往的人们提供一处休息娱乐的灵动空间,展示景观特点的同时,为展示区注入源源不断的生机与活力,烘托新生与温暖的氛围。映射自然的美好,汇集生活品质,承载健康生态的生活方式,蝶变生活,让高端的未来居住场景不再是梦想。




工程资料(含设计、工程、材料)
材料及其应用场景
石材
石材
石材
石材
仿石类
仿石类
仿石类
玻璃砖
玻璃砖
玻璃砖
玻璃砖
金盘网APP
金盘网公众号
金盘网小程序


