宁波涌潮印销售中心
元禾大千软装设计团队考究宁波历史文化的变迁,以经典的大都会风格,折射出东西方文化融合的烙印。
- 项目名称:宁波涌潮印销售中心
- 项目地点:浙江省 宁波市 鄞州区钱湖南路与金娥...
- 开发商:弘阳集团
- 设计参考价:¥2350/㎡
- 销售参考价:¥31800/㎡
- 项目类型:住宅
- 形态:示范区
- 市场定位:刚改系
- 建成时间:2020年
- 风格:中式
- 设计面积:524㎡
- 容积率:1.8
- 发布日期:2021-05-26
- 最近更新:2021-09-23 18:24

空间和时间相互依存
表达着事物的演化
美妙的空间经过岁月的洗礼
才有了厚度,有了包浆
涌潮印售楼处的前身
是国人创办的第一家商业银行——中国通商银行
也是我国首家获准发行钞票的银行
这座建成于上个世纪30年代的装饰主义建筑
曾在宁波独领风骚数十年
如今带着过往的荣光原址重生
愈加优雅从容
元禾大千软装设计团队
考究宁波历史文化的变迁
以经典的大都会风格
折射出东西方文化融合的烙印






时光·印记
受19世纪60年代的“洋务运动”影响
工商业兴盛的成果,深深地烙印在这座城
整个空间以“流金岁月、传承经典”的设计概念
工业装饰艺术作为介入点
古典亦摩登
装饰柜上重复对称的几何图形
是经典的大都会风格元素
艺术品设计提取金库大门的机械结构
通过归纳、简化、重组的手法进行艺术表达
寓意推开财富之门
宁波金融业的历史脉络跨越时空得到延续
吊灯提炼出大都会风格代表性的纹样线条
晶莹璀璨的琉璃片组合富丽堂皇
为空间注入韵律感和节奏感







延续·经典
中学为体,西学为用
中魂西技在设计中展现得淋漓尽致
接待台材质奢华,色彩精致闪耀
圆形浮雕LOGO不显山露水
有一种钱庄宝号般的大气沉稳
彰显了宁波儒商文化的厚蕴
吧台设计带来爵士时代的复古腔调
为空间镀上了浓浓的时代印记
家具、灯具和饰品的空间陈列
表现出古典的秩序感




黑、白、米、金的色彩搭配
彰显典雅风范
金属材质点亮整个空间
熠熠生辉充满时代感






探索·未知
从空间立面到家具地毯
经典的几何纹饰贯穿始终
具有恰到好处的存在感
恰为风格点题
挂画延续了大都会设计风格
并凸显建筑本身的金融属性
以线条提炼或具象建筑来呈现
雕塑以平面剪影的艺术手法
对世界金融中心华尔街的古典建筑进行全新演绎
采用3D打印,细节丰富逼真
融合科技酷感与装饰主义于一体
寓意新都会寻梦的全新探索


多彩人字纹的大面积应用
让整个空间顿时跃动起来
设计师用经典符号串联起整个空间
既有对过往岁月的追溯
又呈现出探寻新旅程的活力
引发强烈的情感共鸣

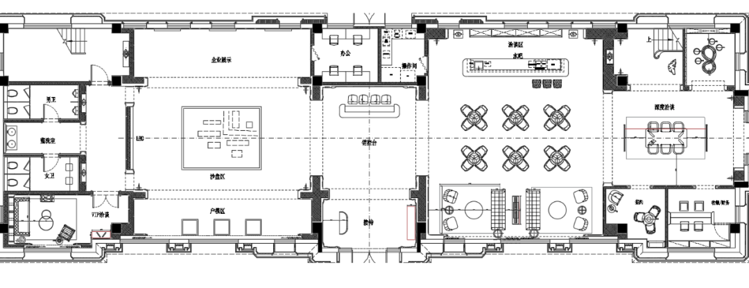
△项目平面图
项目信息
项目全名:宁波涌潮印销售中心
项目地址:浙江省宁波市鄞州区钱湖南路与金娥东路交叉口
软装设计:元禾大千
硬装设计:上海大研室内设计工程有限公司
设计时间:2020.7.31
完工时间:2020.10.2
空间面积:524 ㎡
甲方单位:弘阳集团
摄影团队:元禾大千——张浩

工程资料(含设计、工程、材料)
材料及其应用场景
地砖
地砖
地砖
地砖
墙纸
墙纸
墙纸
墙纸
洁具
洁具
洁具
洁具
布艺
布艺
布艺
布艺
金盘网APP
金盘网公众号
金盘网小程序





