西房万科·良语久园售楼处
项目名称|西房万科·良语久园 开发商|杭州嘉玥房地产开发有限公司 室内设计|杭州堂朝天意室内设计有限公司 软装设计|杭州堂朝天意室内设计有限公司 空间性质|售楼处 建筑面积|700㎡ 坐落位置|中国杭州 摄影公司|三像摄
- 项目名称:西房万科·良语久园售楼处
- 项目地点:浙江省 杭州市 余杭区104国道与华兴...
- 开发商:杭州嘉玥房地产开发有限公司
- 设计参考价:¥2000/㎡
- 项目类型:其他
- 形态:示范区
- 建成时间:2020年
- 风格:现代
- 设计面积:700㎡
- 容积率:1.8
- 发布日期:2021-06-11
- 最近更新:2021-06-11 14:29

良渚古城遗址,着实华夏版图的一枚胎记, 在五千年时光等高线上,格外光鲜和醒目。 低吟古韵的良渚古城,与山明水秀的江南韵味,共同赋予了瓶窑镇秀丽而又浑厚的独特气质。此建筑依山而立,三面环水,我们借助项目优越的地理坐标,在空间中呈现原生态景观、浓厚的人文与古城的情怀,与自然构成一种诗意的连结。 01 自然交融 · Mingle 三面被水包围的陆地——良渚文脉的连接 项目所在地良渚羊山所在地势一面靠山三面有水,赋有半岛地势的特质。本案借用半岛的特质为设计出发点,让售楼部赋有半岛地势独有的「氛围感·度假感·场所感」。用水域将建筑包围,让建筑充分和水域接触,使其拥有伸进水域中又凌驾在水面上的「半岛气质」。 璧圆象天,琮方象地。 亘古遥远的星空下,良渚于历史中熠熠生辉。镜面的天花板倒映着星星点点的夜空,纵横交错的方,缓缓滴落的圆,在光影中折射出「玉琮」所蕴含的「天圆地方」的信仰。富有年代感的锈铁诉说着属于良渚的痕迹,在水纹玻璃盒子的映衬下,空间通透而又充满了神秘感。 02 现代简约 · Simplicity 飞流直下的球灯穿梭于几何线条交织的楼梯间,光与影流转于金属块面之上,上与下,明与暗,勾勒出朦胧虚幻的一隅。 03 气质卓然 · Temperament 一半是大面积落地玻璃幕墙,与外景相融,营造广阔的空间感;一半是雅致的格栅屏风,与内庭院结合,压低视线,体现虚掩的含蓄美感。空间在浅咖与深褐之中呈现出淡淡的诗意。 抽离于城市喧嚣之外,享受这一处的宁静淡泊。或是琳琅满目的艺术品静静端坐;抑或是对自然与生活的淡淡描摹;意境斐然,清逸成趣。 04 东方美学 · Oriental 东方的自然质朴与现代的艺术风潮碰撞出独特的视觉体验。将玉琮所代表的「方圆」特性一以贯之,十字交错的元素贯穿着设计的始终,将文化凝聚于时间与空间之中。 不拘泥于形式上的东方印象,西房万科·良语久园售楼处以简约,现代的线条变化,寻找建筑与空间的互融互动,并赋予场地独有的良渚文化。



















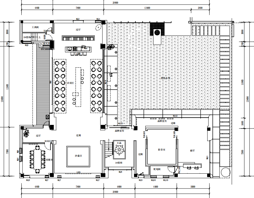
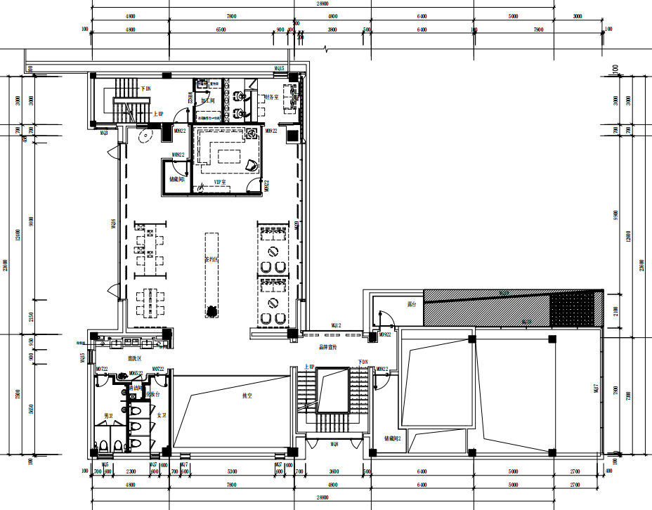
一层 二层
金盘网APP
金盘网公众号
金盘网小程序


