GGC韦格斯杨 丨佳兆业白云城市广场125户型
摩登东方,大象无形,大音希声。追溯东方的纹理与艺术气息,交融抽象艺术的感性与自然诗意。从都市的繁嚣中回归生活的本真与美好,优雅宁静,释放灵魂自由。
- 项目名称:GGC韦格斯杨 丨佳兆业白云城市广场125户型
- 项目地点:广东省 广州市 白云区石槎路
- 开发商:佳兆业
- 设计参考价:¥1000/㎡
- 销售参考价:¥41772/㎡
- 项目类型:综合楼盘
- 形态:示范区
- 市场定位:刚需系
- 建成时间:2020年
- 风格:现代
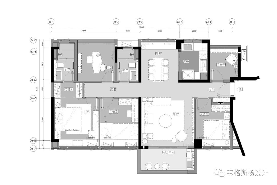
- 主力户型:高层 平层 120-144㎡ 3室 2厅 2卫
- 设计面积:125㎡
- 容积率:80
- 装修类别:精装修
- 发布日期:2021-06-15
- 最近更新:2021-06-15 09:41

摩登东方,大象无形,大音希声。追溯东方的纹理与艺术气息,交融抽象艺术的感性与自然诗意。从都市的繁嚣中回归生活的本真与美好,优雅宁静,释放灵魂自由。






本户型提取映月东方的时空意境,客厅以”圆月“为引,置入提炼的陈设艺术 ,揉合主题色彩与肌理,为空间注入灵魂和气质,融合西方纯粹与东方神韵,反映现代都市人对品质生活的不羁追求。





开敞的餐厅具有东方韵味,窗边晶透的玻璃展柜体现主人对茶酒文化收藏喜好,以增添空间摩登品质气度。而书房与老人卧室则被赋予了现代东方的美学观感,温和细腻。诚如《书斋》有云:书斋宜明朗、清净。以木香、茶香、书香沐浴心灵,日中沉思,静中安悟。



主卧延续整体概念的设计语汇,以简约的线条,在朦胧的玻璃光影在灯光的渲染下,勾勒出东方的朦胧之美;圆形挂饰对半设计的调性氛围,营造出“海上明月共潮生”的空间意境,表达主人诗情画意的生活情怀。



跟着小提琴人物Icon,以“音乐(月)”为引,以乐弦为设计元素,形成空间构成语言,营造柔美、精致及纯粹的包容区域,为女孩打造旋律独特的爱心屋。


结合东西方的标准与品质诉求,空间细部的贴心配置,气质的尊贵典雅,这也同时造就了在整体沉稳睿智的体验空间,打造出素雅简净、安逸闲适、摩登东方的理想居所。
金盘网APP
金盘网公众号
金盘网小程序





