奥园成都公园府邸别墅
项目名称|成都·奥园公园府邸42#别墅 空间陈设|亦境空间设计/设计二组 摄影|郭新新 风格|新中式风格
- 项目名称:奥园成都公园府邸别墅
- 项目地点:四川省 成都市 高新区奥园公园府邸
- 开发商:奥园集团
- 设计参考价:¥3500/㎡
- 销售参考价:¥24000/㎡
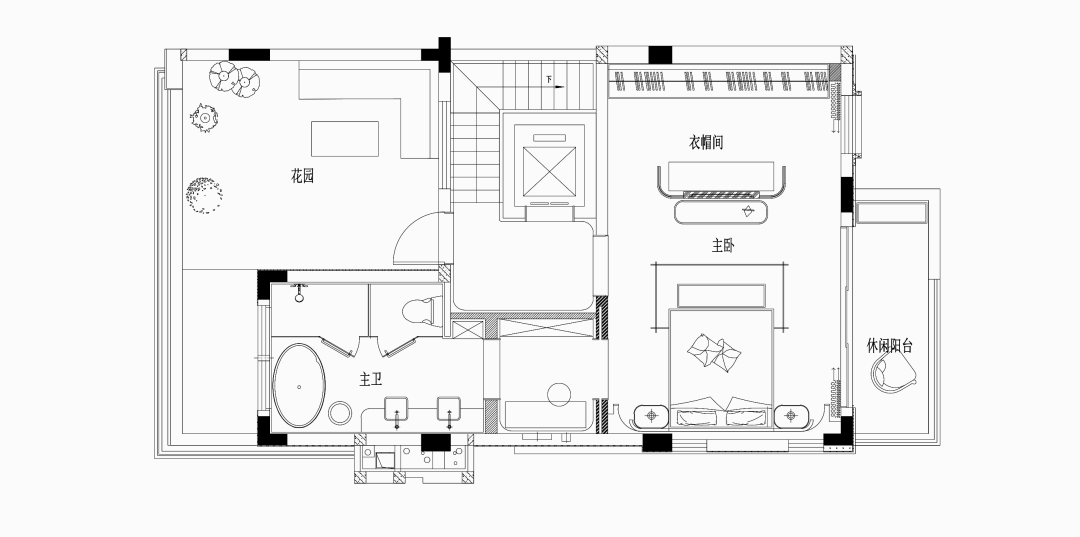
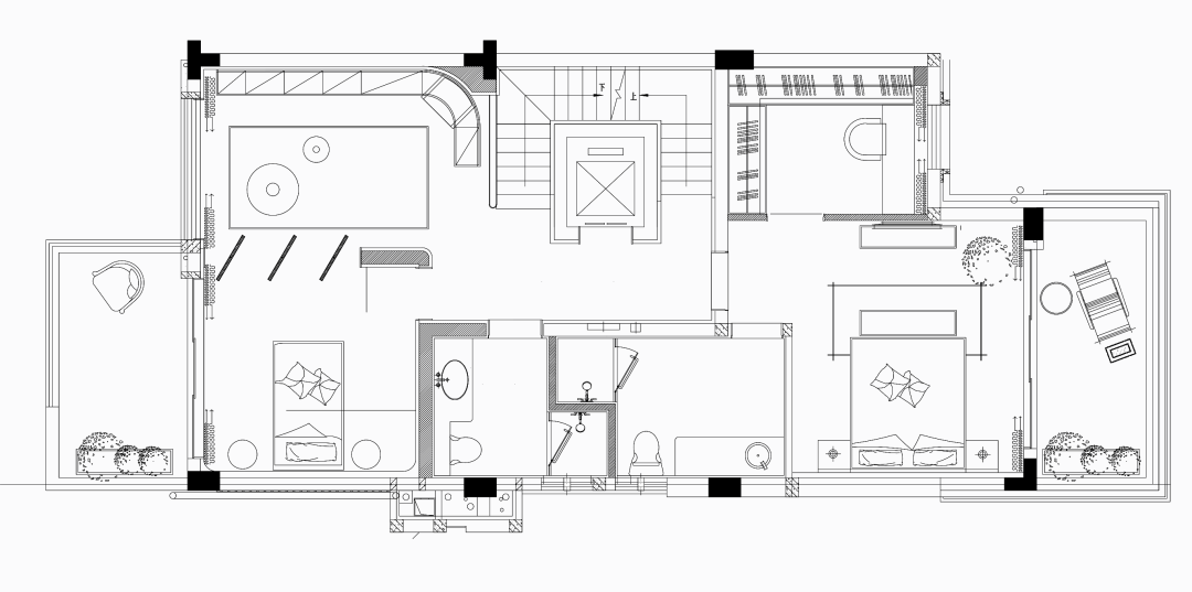
- 项目类型:别墅
- 形态:示范区
- 市场定位:改善系
- 建成时间:2020年
- 风格:中式
- 主力户型:高层 跃层 210㎡以上 4室 2厅 3卫
- 设计面积:300㎡
- 容积率:3
- 装修类别:精装修
- 发布日期:2021-06-22
- 最近更新:2021-07-15 15:42
远与近的边界,找寻一个相交城市与自然的平衡点。人居回归自然,在山水间感知城市脉络,让艺术情境萦绕其间。

纳天地之灵气
藏山水之秀美













|| 多 功 能 室 ||






金盘网APP
金盘网公众号
金盘网小程序




