重庆五桂堂2022销售中心
好的城市更新,往往不是盲目复制,而是在创新中找到城市文化、生活的情感归宿。位于重庆涪陵老城区的五桂堂2022销售中心,就承载着这些期许。
- 项目名称:重庆五桂堂2022销售中心
- 项目地点:重庆市 重庆市 涪陵区涪陵
- 开发商:重庆天仁置业有限公司
- 设计参考价:¥2710/㎡
- 项目类型:住宅
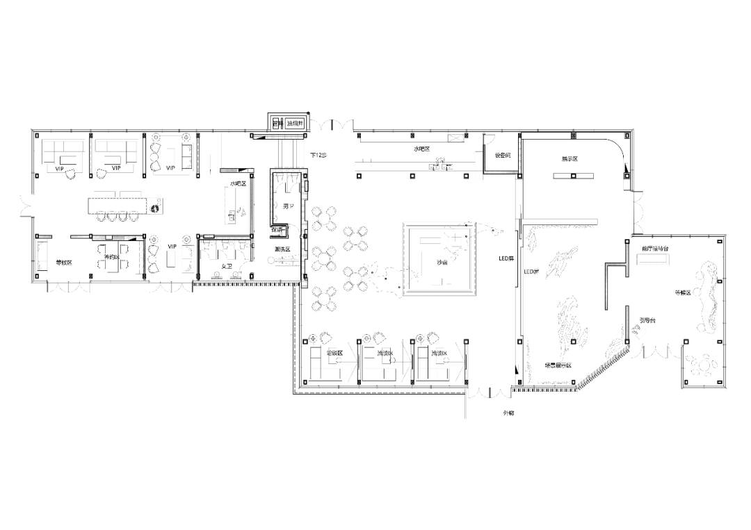
- 形态:示范区
- 市场定位:改善系
- 建成时间:2020年
- 风格:现代
- 设计面积:761㎡
- 容积率:1.4
- 发布日期:2021-06-29
- 最近更新:2021-07-19 17:00
好的城市更新,往往不是盲目复制,而是在创新中找到城市文化、生活的情感归宿。位于重庆涪陵老城区的五桂堂2022销售中心,就承载着这些期许。


涪陵生活放映室
描绘城市未来生活景象
未来城市的更新不只是空间,而是形态与内容。元禾大千融合视觉传达媒介,与樂饭文化、签约艺术家胡鑫共同制作的影像艺术,还原涪陵生活的多元化场景,是对打造复合型城市的憧憬,也是对理想生活产生新的记忆与联想。



回归自然的场所精神
山、石、水格局的沉浸式体验
我们融触自然的细节,由意境递进至心境。前厅一江石造型的艺术装置,将中国传统的竹编技艺再创作,其独特的形式语言塑造空间艺术氛围,勾起江边生活记忆。



江边生长的芦苇
在自然光下、风中摇曳
激活了整个空间生机
也激活了城市文化基因
用设计对话自然,融自然于空间内核。
长江石、芦苇、自然光线的组合犹如涪陵江边自然生态的缩影,与LED视频中江城人的生活百态,共同创造出新的文化景观符号,让人沉浸于情景化的场景体验。




作为涪陵的独特自然奇观,白鹤梁承载着千百年来城市人文记忆。从提炼地域文化符号的角度出发,元禾大千取双鲤鱼为形象IP,以中国传统花灯技艺为形式依托,艺术化处理,是对手工艺的传承,也是对传统文化的再创作。




大千治造手工制作过程











艺术于生活环境,就像灵魂之于躯壳。
/
城市不断更新,继而蜕发新的记忆,而空间之美,便扎根与城市历史人文生活之中。元禾大千相信有趣的设计源于城市“烟火气”,用文化创新的方式将过去的生活记忆串联起,保留在空间肌体里,每一处都如同老式电影一般,放映在眼前。


1. 老式民楼 地道生活





《巴人汲水图》截取















工程资料(含设计、工程、材料)
金盘网APP
金盘网公众号
金盘网小程序





